미쓰비시 줄사택 _ 가로주택 정비
with 부평 줄사택 역사 기념관
한수빈 / Lee Kang Jun Studio
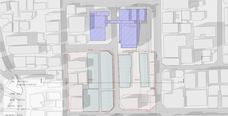
가로주택정비를 통해 인천 부평구에 위치한 줄사택 site에서 부평 역사기념관과 공동주택을 제안한다.
1899년 인천 부평구에 경인철도 개통 및 부평역이 설립되었다. 1930년대 교통지였던 부평구에 일본은 병참기지화를 위해 부평 일대의 민가를 강제 철거한 후 군수공장을 건설했다. 준공된 공장에서 강제 징용 조선 노동자들의 합숙소도 건설되었는데, 협소한 주택으로 줄 형태를 띠며 현재까지 남아있는 ‘미쓰비시 줄사택’이다.
인천 부평구에 위치한 site는 현재 미쓰비시 줄사택이 6곳 존재하는 가로로 둘러싸인 ‘부영로’ 다. 현재 site는 노후 상업시설과 주거시설들이 존재한다. 인접한 대지는 주택 재개발 예정 구역이며, 줄사택이 사라진 site의 북쪽은 새뜰 마을 사업으로 행정복지센터와 주민 공동이용시설이 건설되었다.
슬럼화가 지속되어온 site에서 소규모주택정비 중 가로주택정비를 제안한다. 소규모주택 정비 특례법과 가로주택정비 현황들을 case study 한 후, 현재 미쓰비시 줄사택이 존재하는 위치에 부평 역사 기념관을 제안함으로써 기존의 역사적 가치를 보존하고, 장소성을 부여한다. 또한 공동주택의 여러 건축법규 특례를 받게 되며, 기념관 골목을 제안함으로써 기존보다 더 쾌적한 가로주택정비의 주거 보행 환경을 제안한다.
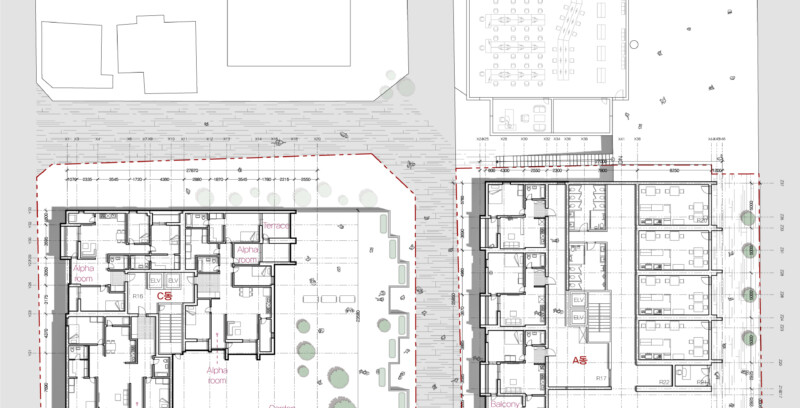
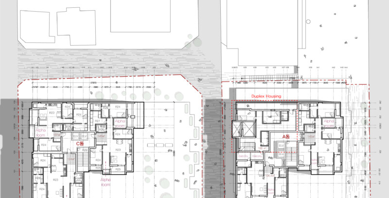
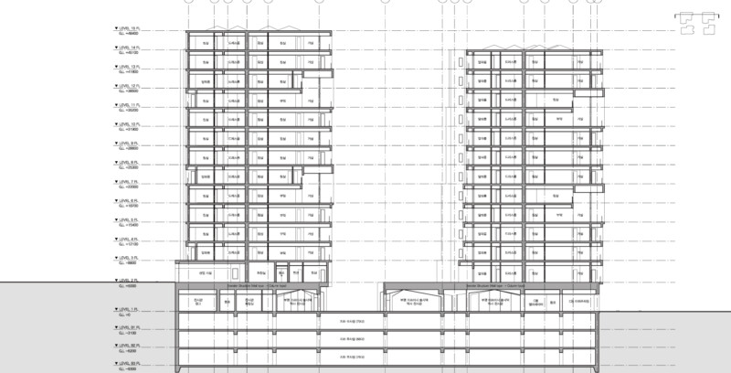
미쓰비시 줄사택 모듈을 단면적으로 기록함으로써 역사적 가치를 보존하기 위해, 경사지붕 형태를 기념관의 디자인에 적용시키게 되었다. 과거부터 현재까지 확장되어 온 줄사택의 원리를 활용하여 통로, 입구, 조명의 공간으로 적용하였다. 또한 공동주택 내부ㆍ외부의 공간에 경사지붕 형태를 활용함으로써 주거공간 내 높은 천장고를 제안한다. 내부공간 뿐만 아니라, 가로에서도 현재 site의 역사성과 장소성이 인식될 수 있도록 입면에 디자인 하였다.










































