지구단위계획을 통한 영등포 이면 상업가로 활성화
revitalized commercial side street – 피곤한 상업가로 탈출하기
임소희 / Lee Kang Jun Studio
불량한 보행환경을 가진 원도심 이면상업가로를 지구단위계획을 통해 활성화시키고자 한다.
서울의 상업지역을 걷다 보면 거리로 나온 간판과 불법주차 이중주차 차량과 사람들이 섞여 가로를 걷는 동안 피로감을 느끼는 경우가 많았다. 이면 상업가로의 문제점에 주목하여 프로젝트를 시작했다. 이러한 피로감을 주는 가로가 생기는 이유는 공공영역인 가로가 사적 영역화 되었기 때문이다. 상업건축물의 입면도 공공영역의 경관을 형성하는 중요한 요소임에도 불구하고 가로와 만나는 곳에서 제대로된 규제와 컨트롤이 부족했기 때문에 발생하는 문제라고 생각했다. 그래서 지구단위계획이 수립되어있지 않은 이면 상업가로 선택해서 지구단위계획을 통해 노후화된 이면 상업가로 활성화해보고자 했다.
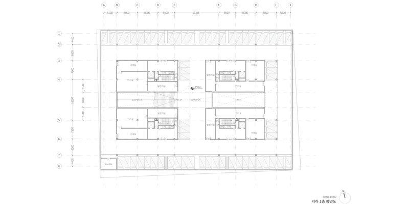
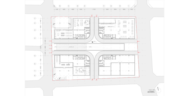
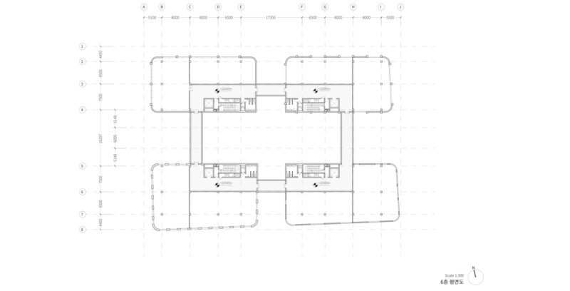
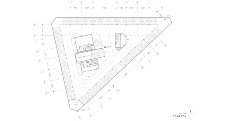
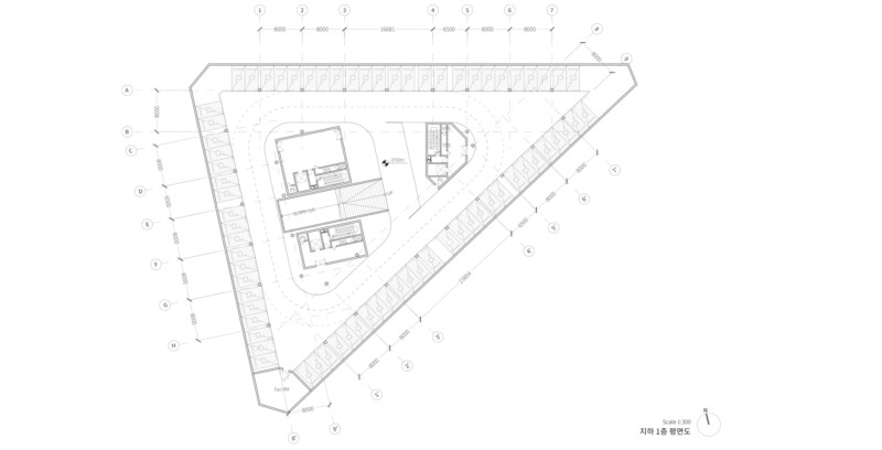
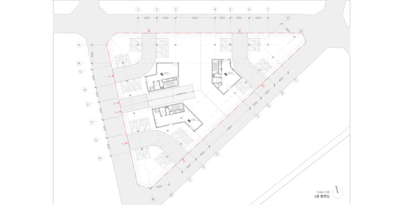
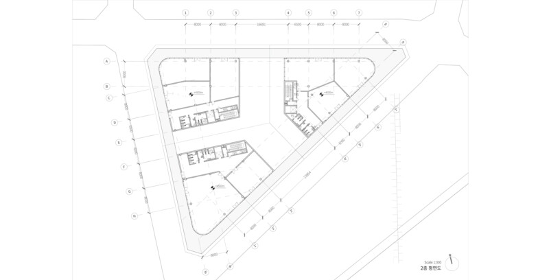
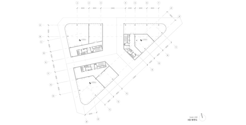
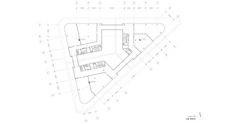
선택한 사이트는 영등포 3가의 이면 상업 지역으로 사이트의 가장 큰 문제점은 이면 상업가로의 보행환경이 좋지 않은 것이었다. 차량과 사람이 좁은 도로에 섞여 있고 주차 문제가 해결되지 않아 이면 상업가로가 굉장히 혼잡스러운 상황이었다. 그래서 저층 zone으로 층수 제한을 하고 상부에 공공보행로를 지구단위계획으로 컨트롤하여 1층에는 차량만이 다니도록 계획하였다. 이렇게 보행 동선과 차량 동선을 수직적으로 분리하여 차량 접근성이 좋은 가로환경과 보차분리가 되어 깨끗한 보행환경의 이면 상업지역을 만들고자 했다.








































