보이지 않는 기념관
New Type of Courthouse Proposal): 효창의 침묵 아래, 무명의 독립운동가들을 추모하는 공간
김은하 / Lim Ji Tack Studio
Introduction
위치 : 서울 용산구 효창원로 177-15 일원
용도 : 문화 및 집회 시설
층수 : B1 – 2F
대지면적 : 25,234㎡
건축면적 : 7,600㎡
연면적 : 17,100㎡
Concept
‘보이지 않는 기념관’은 눈에 보이는 구조물보다 공간이 만들어내는 감각과 경험에 집중하는 비가시적 건축입니다. 이곳에서 건축은 상징적 조형물이 아니라, 감정의 흐름과 내면의 각성을 유도하는 장치로 작동합니다. 방문자는 창열문에서 시작해 ‘기억의 문턱’, ‘메모리얼 홀’, ‘기억의 서가’, ‘침묵의 방’, ‘빛의 회랑’, ‘무명의 별하늘’, 그리고 전시공간으로 이어지는 순례적 동선을 따라 걷습니다. 이 여정은 점차 변화하는 조도, 음향, 재질, 지형의 흐름 속에서 외부의 일상에서 내면의 사유로 깊어지는 경험을 제공합니다. 기억은 여기서 전시물에 의존하지 않고, 빛과 그림자, 물과 소리, 시간의 변화 속에서 체험으로 새겨집니다. 그 결과, 방문자는 단순한 관람자가 아니라 과거의 정신을 계승하는 주체로 전환되며, 대지 전체가 하나의 살아있는 기념관이 됩니다.
Site
효창공원 내 효창운동장 부지는 독립운동사의 핵심 기억이 켜켜이 쌓인 공간이지만, 한편으로는 시민의 생활과 여가가 이어지는 복합적 성격의 장소입니다. 이곳은 역사적으로 국가적 추모의 장이었으나, 시대 변화와 도시계획 속에서 스포츠 경기와 체육활동, 산책과 휴식이 이루어지는 다기능 공원으로 변모했습니다. 이러한 이중성은 방문자에게 한편으로는 경건함을, 다른 한편으로는 일상의 편안함을 제공하지만, 동시에 기념의 서사를 흐리게 하는 요인이 되기도 합니다. 주변에는 숲, 연못, 기념 조형물, 광장 등이 산재해 있어 공간적 자원이 풍부하며, 이를 통해 기억의 경로를 재구성하고 서로 다른 풍경과 감정을 연속적으로 연결할 수 있는 잠재력을 지닌 대지입니다.
Design
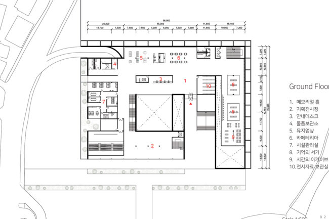
본 프로젝트의 디자인 과정은 효창공원의 역사성과 현재성을 함께 읽어내는 데서 출발했습니다. 먼저 대지의 맥락 분석을 통해 단절된 ‘기억의 축’을 복원하고, 외곽에서 중심으로 점차 진입하는 순례적 동선 구조를 설정했습니다. 이어 각 지점의 감정 밀도를 시뮬레이션하여, 빛·음향·재질·지형 변화가 방문자의 심리 흐름에 맞춰 점진적으로 고조되도록 계획했습니다. 1층에서는 ‘기억의 문턱’, ‘메모리얼 홀’, ‘기억의 서가’를 배치해 일상에서 기념으로 전환되는 준비의 공간을 구성했고, 지하로 내려가는 하강 경로에서는 조도를 낮추고 소리를 차단해 내면 침잠을 유도했습니다. 지하 1층에는 ‘침묵의 방’, ‘빛의 회랑’, ‘무명의 별하늘’, ‘지혜의 물결’을 순차적으로 배치하여 정서–각성–성찰이 이어지는 연속적 경험을 만들었으며, 마지막 전시공간에서 감정과 인식을 연결했습니다. 또한 외부 공간에는 배롱나무 숲, 사색정원, 자유광장 등 일상적 풍경을 배치해, 시민이 무심히 드나들어도 기억의 경로를 자연스럽게 경험하도록 설계했습니다. 이처럼 디자인은 상징적 형태보다 경험의 흐름과 감정의 농도를 설계하는 데 집중하며, 대지 전체를 하나의 살아있는 기념관으로 완성합니다.

























