성수 이음 학교
자연과 사람이 함께하는 초중고 통합학교
강유경 / Park Jun Ho Studio
Introduction
위치 : 서울특별시 성동구 뚝섬로 365
용도 : 교육시설
층수 : B1 – 6F
대지면적 : 13,960㎡
건축면적 : 6,670㎡
연면적 : 26,765㎡
Agenda
학교는 공부하는 공간이 아닌 배움의 공간임을 생각하며 아이들이 자유롭게 서로 만나고 자연과 함께 탐구할 수 있는 새로운 학교를 제안한다.
학령인구가 줄면서 초,중,고를 대상으로 학교를 연계,통합 운영하는 통합학교의 필요성이 증가하고 있다. 다양한 학급들이 모이는 만큼 서로에게 시너지가 될 수 있는 멘토링 교실, 방과후 교실, 개인 스튜디오 등의 공간을 새로 제안하고 최대한 많은 야외공간에서 배우기 위하여 야외테라스가 학교 전체를 두르는 ‘이음 학교’를 제안한다.
Theme Background
지금의 학교는 아이들의 다양한 배움과 만남을 만들기에는 너무나 제한적인 공간들로 이루어져있다. 점점더 실내공간은 많아지고 실외공간은 여전히 운동장으로 국한되어 있음을 볼 수 있다. 아이들은 학교에서 하루 대부분의 시간을 보내는데 학교 공간의 다양화는 필수적이며 이전의 담장에 둘러싸여 독립된 공간에서 벗어나 도심속에서 함께 안전하게 운영되어야 한다.
Concept
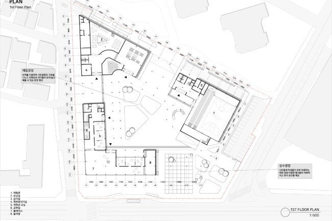
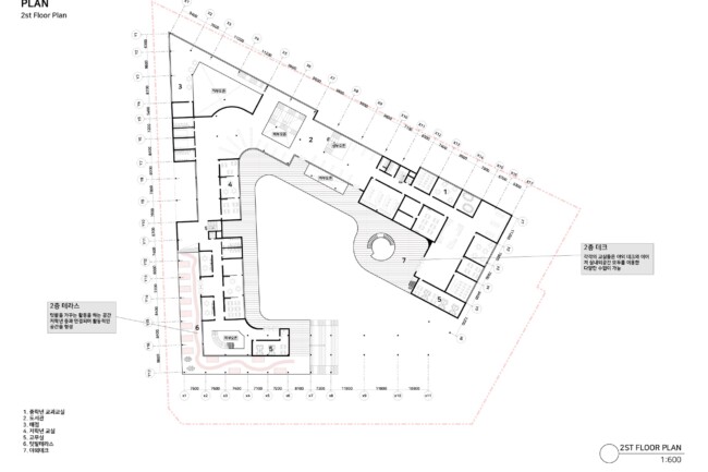
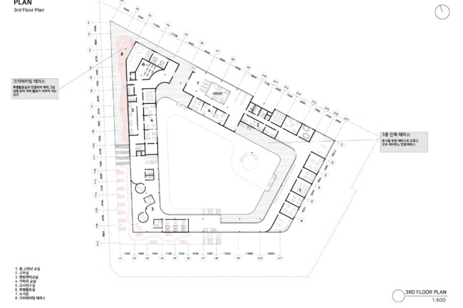
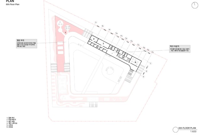
학교는 교실에서 공부를 하는 공간이 아닌 다양한 만남과 탐구, 놀이를 만들 수 있는 공간을 제공해야 한다. 다양한 연령이 다니는 학교인 만큼 교실공간을 연령대에 맞게 구성하였다. 저학년은 벽을 필요에 따라 변형가능한 가변형 교실을 이용하였고 고학년은 교과교실을 이용하여 각각의 선택형 수업과 함께 이동하는 과정에서 만남을 만들 수 있도록 하였다. 교실의 배치는 수직적으로 돌아가며 배치되며 이는 학년이 올라갈 때마다 다른 교실 공간경험을 제공한다. 두 연령대가 하나의 공간으로 연결될 수 있는 프로그램인 멘토링 교실, 방과후 교실, 그랜드 스테어 도서관을 그 사이에 배치하여 자연스럽게 만나도록 구성하였다.
다음으로는 기존 학교에서 줄어들고 있는 야외공간을 확보하기 위해 테라스 형태를 적용하였다. 테라스는 교실, 복도공간과 직접적으로 연결되어 쉬는 시간 및 자유시간에 접근성이 있는 야외공간을 제공한다. 여기서 아이들은 자연과 함께 탐구하고 놀 수 있도록 성격에 맞게 각각의 테라스 공간에 테마를 부여하여 텃밭가꾸기, 독서, 스포츠, 놀이 등의 활동을 할 수 있다. 이러한 테라스들은 학교공간 바깥을 두르면서 통합학교 전체를 연결하고 이는 도시로의 시각적 연결을 만들어 도심속 학교를 형성한다. 학교의 바깥면 뿐만 아니라 학생들끼리 공유하고 휴식 할 수 있는 중정 테라스들을 만들어 잠깐의 쉬는 시간에서도 만남을 극대화하는 공간을 형성하였다.
Site
최근 학령인구가 많이 줄면서 폐교,통폐합 학교들이 많이 생겨나면서 다양한 학군들이 연결되어 운영되는 통합학교가 주목 받고 있다. 이번 프로젝트에서는 서울 폐교 예정 학교 중 하나인 성수공업고등학교 부지를 이용하여 새로운 통합학교를 제안한다.




















