진해원(園)박물관
진해원 광장을 복원하며 진해 공유의 장(場)을 만들다
최윤서 / Lee Kang Jun Studio
Introduction
위치 : 경남 창원시 진해구 여좌동 499
용도 : 문화시설
층수 : B2-3F
대지면적 : 11,759 m2
건축면적 : 7,070 m2
연면적 : 13,460 m2
Agenda
경남 창원시 진해구는 1912년, 러일전쟁 승리를 기념하기 위해 일제에 의해 계획된 군항도시이다. 당시 진해는 광장을 중심으로 방사형 도로망과 공공시설, 군사시설, 주거지가 체계적으로 배치된 계획도시로 조성되었으며, 일본인 주거지역에는 주민들의 소통을 위한 **‘진해원’**이라는 광장이 계획되었다. 이 광장은 여좌천을 중심으로 아래 상업지역의 중원로터리, 군항지역의 북원로터리를 연결하는 도시 축의 주요 공간으로 기능했다.
그러나 일제강점기 남쪽으로 철도가 들어서면서 중원로터리와의 연결이 끊어졌고, 진해원 자리에는 주거지가 조성되며 원래의 광장 구조는 사라지게 되었다. 현재까지 진해 대시가지의 다른 광장과 로터리들은 원형이 유지되고 있지만, 진해원만은 도시 속에서 사라진 채 과거 흔적을 찾아볼 수 없는 상태다.
Theme Background
본 프로젝트는 사라진 진해원을 현대적으로 복원하여 다시 주민들의 소통과 문화의 중심공간으로 회복하고자 한다. 특히, 2026년 진해중학교와 통합으로 폐교 예정인 진해여자중학교 부지를 복원지로 선정하였다. 이 부지는 여좌천과 인접하고, 초창기 도시계획 축선과도 연결되어 있어 과거 도시구조의 복원 가능성이 높고, 진해의 대표적인 벚꽃 관광축과도 맞닿아 있어 주민 접근성 또한 뛰어나다.
프로그램으로는 단순한 광장 복원을 넘어, 진해 곳곳에 흩어져 있던 박물관과 전시공간을 통합하여 국립박물관을 계획하였다. 이를 통해 과거와 현재, 자연과 도시, 주민과 방문객이 소통할 수 있는 열린 문화거점이자 공공 공간으로 광장을 제안한다.
Concept
광장 설계에 있어 가장 중요한 요소는 공간의 위요감과 중심성, 그리고 주변 도시와의 연결성이다. 이를 위해 본 프로젝트에서는 까밀로 지테의 공간예술론을 주요 이론적 근거로 삼았다. 지테는 광장이 인접 건물에 둘러싸여야 위요감이 생기며, 건물 높이와 광장 폭의 비율이 최소 1:1, 최대 1:2 이내일 때 공간의 안정감을 느낄 수 있다고 설명했다. 또한, 광장의 가로·세로 비율도 1:1에서 1:3 사이일 때 적절하다고 제안하고 있다.
이에 따라 본 설계에서는 건물의 높이 : 광장의 폭 : 광장의 길이를 1:2:4로 설정하여 광장에서의 위요감과 개방감을 동시에 확보했다. 광장을 둘러싸는 매스 형태는 ㅁ자형, ㄷ자형, ㄱ자형 세 가지 유형으로 설정하여 공간의 개방성과 사용성을 조절할 수 있도록 했으며, 각 광장과 매스마다 하나의 프로그램을 할당해 공간의 성격을 명확하게 구분하였다.
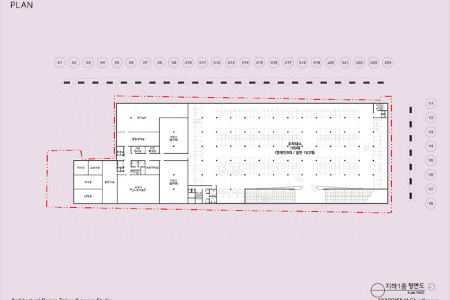
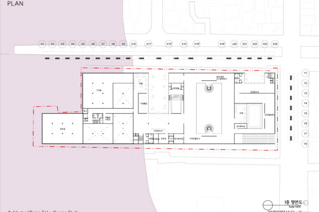
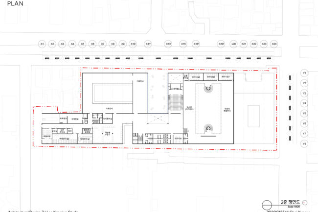
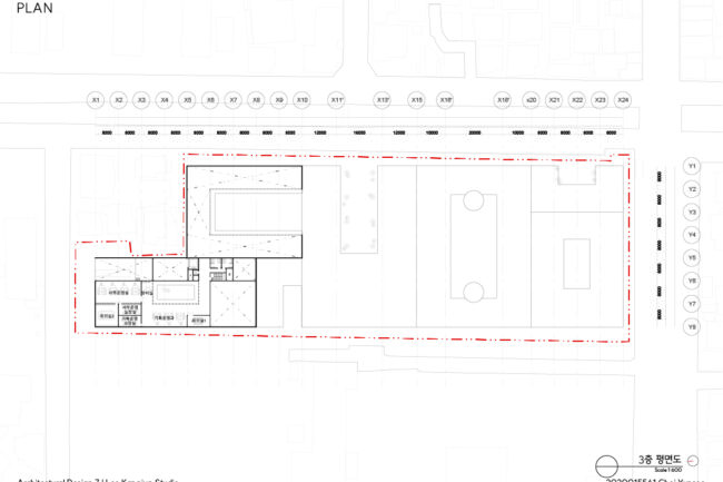
Site
대지 형태는 긴 직사각형으로, 이를 따라 1개의 메인광장, 2개의 진입광장, 3개의 전시광장, 1개의 직원광장을 배치했다. 메인광장은 도시의 세로 축이었던 기존 도로를 따라 배치하여 과거와 현재를 잇는 역할을 수행하며, 진입광장은 긴 대지의 특성상 2개 이상을 배치해 방문객의 유입 동선을 자연스럽게 분산시켰다. 전시광장은 각 전시관의 프로그램과 연결성을 고려해 배치했으며, 직원광장은 연구·사무영역과 동선이 분리되도록 계획했다.


















































