Aquarry Sports Center
New Type of Courthouse Proposal
하산 / Lim Ji Tack Studio
Introduction
위치 : 서울시 종로구 숭인동 57일대
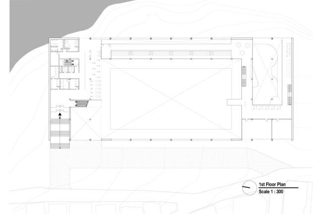
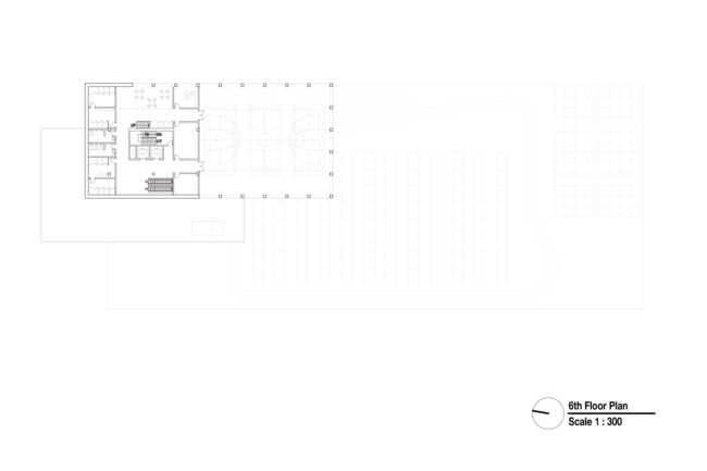
용도 : 운동시설
층수 : B1 – 9F
대지면적 : 12,098.3㎡
건축면적 : 5071㎡
연면적 :
Agenda
현재 창신·숭인 채석장의 절개지는 기능을 상실한 채 주거밀집지에 방치된 산업유산으로 남아있다. 현재 4곳이 남아있는 창신·숭인 채석장의 절개지 중 숭인동의 절개지는 다른 절개지와 다르게 절개지면 위에 공공에 개방된 공원이 위치해 있으나 도시구조의 물리적 환경과 독특한 지형이 만들어낸 조건들이 공원에 대한 접근을 제한한다. 본 프로젝트는 이러한 문제에 주목하여, 절개지를 따라 수직적으로 배치되는 스포츠 프로그램을 통해 도시와 공원을 자연스럽게 연결하는 새로운 접근 방식을 제안한다. 공공성과 개방성을 지닌 스포츠 시설은 단절된 지형을 매개하는 장치로 작동하며, 기존의 단절을 넘어서는 입체적 연결의 가능성을 실험하고자 한다.
Site Analysis
대상지 일대를 포함한 창신·숭인 지역을 지배하는 물리적 요소는 지형이다. 낙산자락과 동망산(현재의 숭인근린공원)이 만들어내는 등고선과 이러한 등고선을 급격하게 깎아낸 채석장 절개지는 도시의 물리적 구조를 지배한다. 이러한 지형에 맞춰 들어선 도로는 두 분류로 나눠볼 수 있다. 등고선을 따라 유기적으로 연결된 세로방향의 골목길 네트워크와 등고선을 가로지르며 짧고 단발적으로 끊어진 가로방향의 골목길 네트워크이다. 위와 같은 네트워크는 사람들의 움직임의 영향을 주며 가로방향의 길에 따른 움직임에는 불가피한 단절이 있음을 확인할 수 있다. 한편 등고선에 따라 만들어진 도시구조는 극단적으로 차이를 보여준다. 동망산을 중심으로 서쪽의 숭인동 도시블럭은 1930년대~1970년대의 불법주택 도시블럭들이 혼재하며 유기적 형태의 도시블럭을 형성함을 알 수 있는 반면, 동쪽의 보문동 도시블럭은 비교적 평지로 1940년대 형성된 도시블럭이지만 격자형의 인공적 도시구조를 보여준다.
Issue
절개지와 도시구조가 만들어내는 대상지의 문제는 도시 공공 공간에 대한 자별적이며 제한된 접근이다. 등고선을 가로지르는 방향의 접근이 주된 접근방식인 대상지는 급격한 절개지면에 의해 절개지 위에 존재하는 숭인근린공원으로의 접근을 제한한다. 동측의 접근로는 자연스러운 등고를 따라 공원에 대한 접근이 용이하다. 한편, 대상지가 접한 도시구조는 과거 불법주택이 난립된 형태를 유지하고 있어 도로의 직결성이 부족해 공원 접근로의 직관성이 떨어지며 관리미흡으로 인한 주민들의 쓰레기 처리 장소로 쓰이고 있는 실정이다. 위와 같은 문제들은 평면적으로는 바로 옆에 위치한 대상지가 입체적으로는 공원에 가장 접근하기 위치임을 시사한다.
 
					


























 
         
         
         
         
         
         
         
         
        