Begin Again Link
Revival of traditional liquor with cultural center and archieve
김충수 / Lim Ji Taek Studio
Introduction
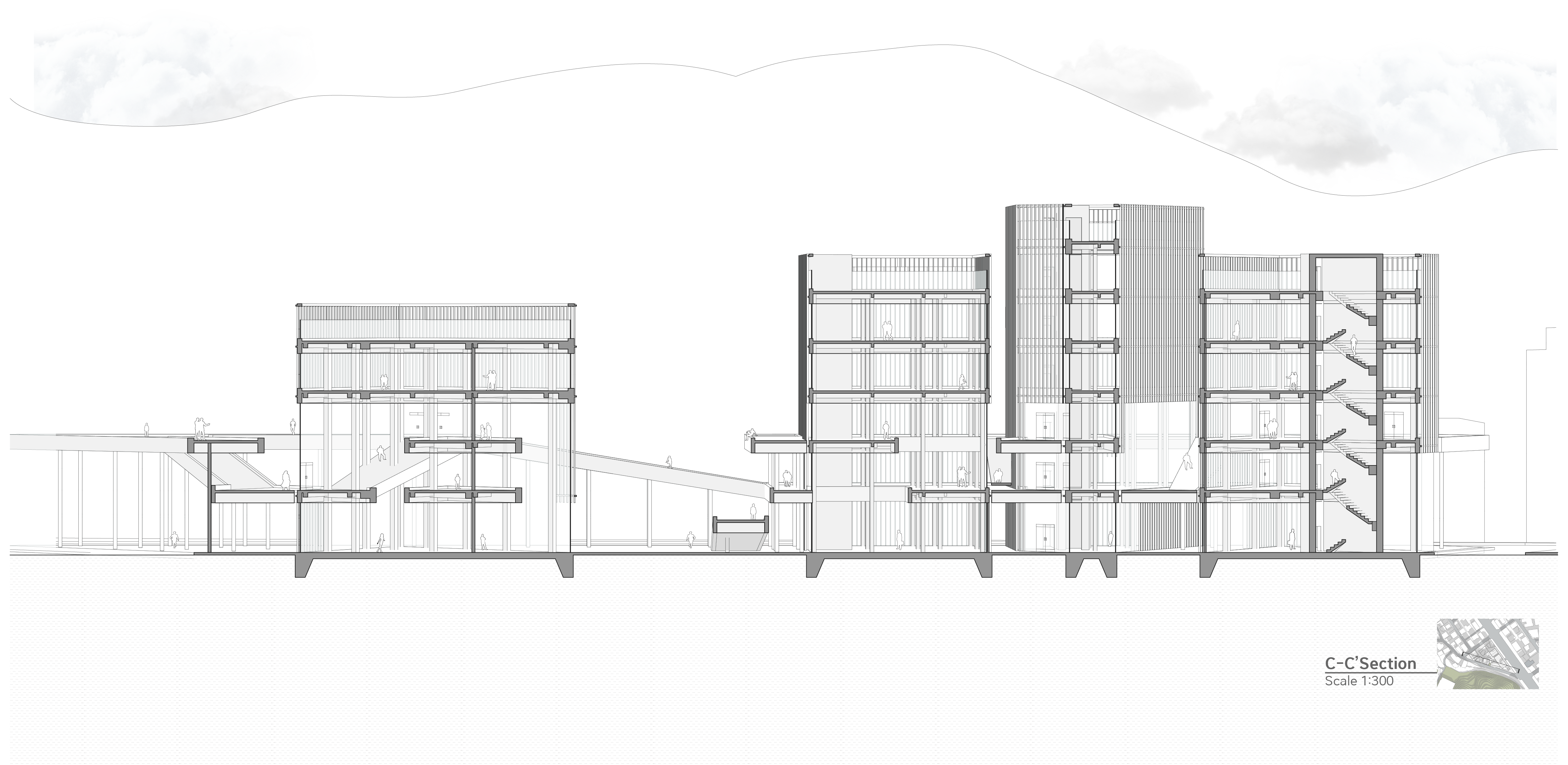
위치 : 서울시 마포구 월드컵북로 109일대
용도 : 양조장, 복합문화시설
층수 : 1F – 6F
대지면적 : 3,549.2㎡
건축면적 : 1,774.6㎡
연면적 : 8,873.0㎡
Agenda
코로나 시대 이후 사람들의 전통주에 대한 관심도는 점점 늘어났다. 수많은 전통주가 역사속으로 사라지는 와중 소수만이 가양주 형태로 살아남은 지금, 맥이 끊길 위기에 처한 삼해소주를 중심으로 시민들이 참여하는 형태로써의 가양주문화를 통해 그 명맥을 다시 이어나가고자 한다.
단순히 전통주의 맥을 잇는 것을 넘어, 상실된 전통적인 가치를 되살리면서 사람과 사람의 관계를 이어주는 올바른 형태의 술 문화를 되살리는 것을 목표로 해야 할 것이다. 동시에, 음주가 힘든 사람들도 전통적 가지를 지닌 건전한 술 문화를 체험할 수 있는 시설이 되기를 추구한다.
Theme Background
코로나 시대 이후, 국내 주류의 출고량은 해가 지날수록 떨어지고 있다. 하지만 이는 국내 주류의 큰 축을 담당하던 맥주와 희석식 소주의 출고량이 하락한 것이 원인이다. 오히려 국내 전통주와 와인의 출고금액은 코로나 이전에 비해 17.9% 이상 증가하였고, 전통주의 비중은 해가 거듭할수록 점점 늘어만 갔다. 이는 코로나로 인해 집에서 주류를 소비하는 사람이 늘어나면서 다양한 주종의 수요가 늘어났고, 자연스럽게 전통주에 대한 관심도가 높아졌기 때문이라고 볼 수 있다. 또한 일반 주류와는 달리 전통주는 통신판매가 가능하기 때문에 사람들이 보다 쉽게 접근해 소비량이 늘어난 것도 원인이라 볼 수 있다.
우리의 문화는 과거부터 술과 함께해왔다고 해도 과언이 아닐정도로 술과 밀접한 관계를 맺고 있다. 하지만 가양주 문화를 중심으로 사람과 음식, 사람과 사람사이의 관계를 이어주는 과거와는 달리 현재는 그 의미와 방식이 많이 변질되어 버렸다. 일제강점기와 6.25전쟁, 휴전 후 선포된 양곡보호령까지 겪어오면서 그 전통적인 가치를 상실하는 바람에, 술 문화는 단순히 빠르게 취하기 위한 수단으로 변해버리고 말았다.
삼해주는 900년 이상 우리나라에서 빚어지고 소비되던 대표적인 전통주이다. 일제강점기를 겪으며 한동안 맥이 끊겼지만, 가양주형태로 맥이 이어져 21년 여름까지는 명인의 주도하에 생산이 가능했다. 하지만 국가지정 식품명인이 세상을 떠난 지금, 명인이 직접 빚은 ‘민속주’로써의 삼해주는 23년 1월로 시중에서 자취를 감추게 되었다. 이에. 현재 마포구에 있는 삼해주 공방대지를 새롭게 단정하여 삼해주의 명맥을 이어나가고자 한다. 조선시대부터 현대까지 가양주 문화로 그 명맥을 이어온 삼해주는 조선시대 당시 삼해주를 빚고 보관하던 지역인 마포에서 다시금 지역특산주로 문화체험을 통해 사람들에게 제조법을 남겨 명맥을 이어나갈 수 있을 것이다.
 
					


 
        
         
        































 
         
         
         
         
        