Contents Street
콘텐츠 거리 그리고 크리에이터들을 위한 오피스
김보림 / Kim Bo Rim
Introduction
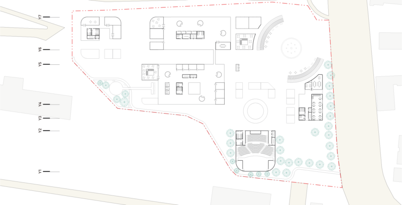
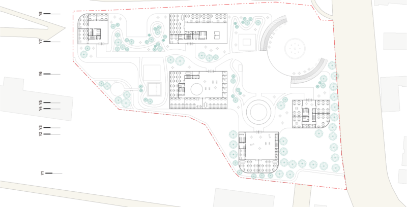
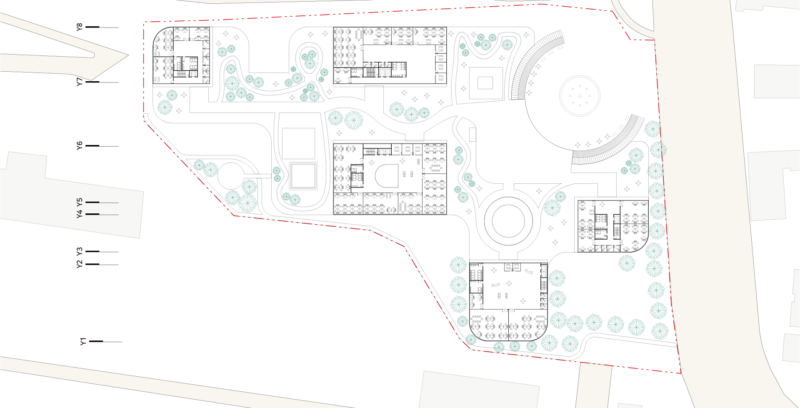
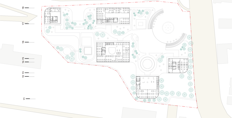
위치 : 서울시 성동구 성수동1가 643
용도 : 복합시설(상업시설, 문화시설, 오피스, 공원) / Culture, Office
층수 : B1 – 7F
대지면적: 19,000㎡
건축면적: 11,150㎡
연면적 :28,685㎡
크리에이터 시장은 레드오션이다. 처음 시작하는 사람들의 단순하고 어색한 콘텐츠들은 경쟁력이 없다. 하지만 이 직업은 이용자가 많기 때문에 계속적으로 증가하고 관심을 가질 것이라고 예상한다. 넘쳐나는 콘텐츠의 바다 속에서 크리에이터들은 자신을 어필하고 사용자들은 새로움을 접할 수 있는 공간에 대해서 생각해봤다.
새로운 미디어의 등장으로 크리에이터라는 새로운 직업으로 생겼다. 하지만 이젠 크리에이터 시장은 레드오션이다. 방대한 콘텐츠로 플랫폼들은 알고리즘 프로그램을 통해 사용자들에게 맞춤 콘텐츠를 추천하고 제공한다. 그리고 이것은 오히려 사용자가 비슷한 콘텐츠에 갇히게 되는 현상을 만들었다. 이런 현상을 줄이기 위해서 의도적으로 다양한 콘텐츠를 직접 경험하는 것이 필요하다고 생각했다.
기존 크리에이터에 비해 기술과 장비가 부족한 새로운 크리에이터들을 위해 교육하고 장소와 장비를 대여할 수 있는 공간이 제공한다. 또한 본인의 홍보까지 한 공간안에서 해결할 수 있다.
사람들은 매체에 갇힌 유사한 콘텐츠가 아닌 많은 카테고리의 콘텐츠를 직접 경험하고 고를 수 있다.
기존의 크리에이터들에게 협업을 통한 다양한 콘텐츠 생성을 위해 교류하기 쉬운 공간을 제공한다. 한 공간 안에서 콘텐츠의 제작과 홍보 체험까지 한 번에 경험할 수 있다. 또한 건물이 공원과 연결되어 사람들의 유동이 많아 우연한 사건들이 많이 생길 수 있다.



































