CURATOR OF CHUNGJU WITHIN TRAIN STATION
CREATING INTERACTIVE NODE PRODUCING BUSINESS
이무성 / Kim Yong Seung Studio
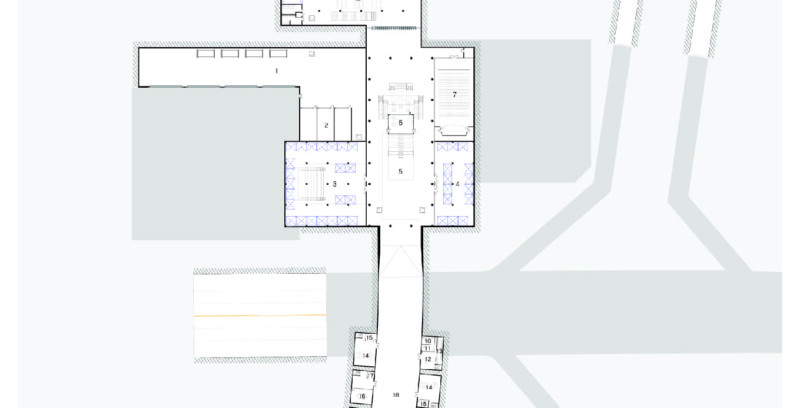
지방소멸을 막기 위한 스타트업 인큐베이팅 시설
INTRO
주거에 치우친 지방도시의 ‘재생’사업으로 지방도시는 거점으로 작용하지 못하고 도시의 개발 대부분은 여전히 대도시권역을 중심으로 이루어져 있다. 2020년도에 출생아가 사망자보다 적은 ‘인구 데드크로스’ 현상이 관측됨과 동시에 지방 중소도시들은 대도시로의 인구 유출이 더욱 심화되며 지방소멸의 위기에 처해있다.
최근 비대면 기술을 비롯한 정보·통신 분야의 발전으로 사무 위주 업체의 입지적 요인에 대한 제한이 완화되어 기업들은 대도시에 밀집할 필요가 없어졌다.
이를 바탕으로 쇠퇴되어가는 지방도시에 기업의 이주와 기반시설 환경을 조성하여 지방의 거점도시를 활성화시키기 위해
1) 인근 도시와의 대중교통 네트워크를 구축하여 기업도시 특성상 생활기반 인프라의 부족을 모도시와 연결하여 보완하고
2) 청년 일자리 창출을 위한 스타트업 인큐베이팅 시설과 MICE 행사공간을 배치하여 기업과 스타트업의 교류 및 연계를 위한 공간을 통해 청년 일자리 창출의 배경을 마련하여
대도시권역 외부에 거점도시의 기반을 강화시켜 지방소멸을 해결할 수 있는 대안을 제시하고자 한다.





















