DB Senior HUB
윤희경 / Lee Kang Jun Studio
Introduction
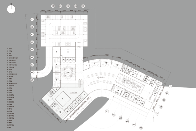
위치 : 서울특별시 도봉구 도봉산길 27 (현 도봉고등학교 위치)
용도 : 노인생활SOC복합시설
층수 : 2층
대지면적 : 13,000㎡
건축면적 : 6,900㎡
연면적 : 7,850㎡
Agenda
노령화는 한국 사회에서 빠른 속도로 진행되고 있는 사회 현상 중 하나로, 우리 사회는 이러한 변화에 따르는 대책이 필요하다. 그 중 하나로 교육기관의 기능 상실은 건축적으로 짚어볼 필요가 있는 과제 중 하나이다. 학령인구의 교육권 보장을 위한 기반시설인 학교는 인구구조가 바뀌면서 그 기능을 상실하게 되었으며 이에 따라 부지 사용에 대한 논의가 필요하게 되었다. 이에 따라, 현재 서울에서 가장 빠른 속도로 노령화가 진행되고 있는 도봉구 내에 2024년 폐교 예정인 도봉고등학교를 대상지로 하여 대안을 제시하고자 한다.
Theme Background
도봉구는 올해(2023년도)기준 노령인구가 전체인구의 21%를 차지하여 초고령사회에 진입하게 되었다. 2040년도 추계인구로는 노령인구가 전체인구의 40%를 차지하게 될 것이고 이는 지역사회의 주류가 노인이 될 것이라는 의미이기도 하다. 이러한 현상을 실감하게 하는 대표적 사례로 ‘2024년 도봉고등학교 폐교’가 있다. 도봉고등학교가 교육기관으로서의 역할을 상실하게 되면서 학교 부지를 채울 새로운 기반시설이 필요하다. 한편, 노령인구는 이제 더이상 의료/돌봄 지원만으로는 높은 삶의 질을 확 보할 수가 없게 되었다. 의료기술의 발달로 기대수명 및 건강수명이 증가하면서 은퇴 이후로도 독립적인 일상생활을 영위할 수 있기 때문이다. 따라서, 노인의 일상생활을 지원해 줄 수 있는 새로운 복지가 필요하다.
Drawings


Maquette





 
					


















