Edu Chain
우성현 / Jeon Jae Bong Studio
Introduction
위치 : 서울특별시 강서구 등촌동 690-2,4
용도 : 교육시설
층수 : 1F – 7F
대지면적 : 23,291.1 ㎡
건축면적 : 7,387.6 ㎡
연면적 : 28,645.3 ㎡
Concept
학교급별 특징과 교육적 요구는 발달 단계의 특징과 연결하여 설명할 수 있으며 각 단계는 독립적인 것이 아니라 연속적이며 유기적인 관계를 갖는다. 이런 발달 단계별 특징은 점진적으로 변화하며 따라서 각 학교급은 이전 학교급과 단절된 것이 아닌 연속적인 사슬과 같은 형태로 연결되며 관계 맺어야 한다.
발달 단계의 특징과 성장은 교육, 관계, 활동의 측면에서 일어난다.
교육적 부분에선 감각과 체험의 경험 중심의 교육에서 기초 교육과 다양한 활동이 시작 되고 교육이 심화되며 요구 되는 프로그램이 점차 심화되고 세분화되며.
관계적 측면에선 보호자 중심의 애착 관계에서 또래 중심의 교우관계로 확장되며 점차 자기 정체성을 기반으로 한 다양한 커뮤니티가 형성된다.
활동적 특징으론 간단한 움직임과 놀이에서 점차 활동범위가 넓어지며 격한 움직임과 활동이 일어나다가 점차 움직임이 줄어들며 전문 운동시설 밑 개별 휴식공간이 중요해 진다.
이러한 특징에 따라 발달 단계별 공간의 구조는 같은 프로그램과 용도의 공간이라도 그 의미와 중요도가 달라진다. 단일 교실이 활동과 교육의 거점이었지만 점차 공용공간을 중심으로 세분화된 교실로 이동하며 교실의 중요도가 낮아지고 공용공간의 중요도가 커진다.
따라서 학교급의 성격을 반영한 공용 공간을 중심으로 각 학교급의 클러스터를 유기적으로 연결해, 연속적인 교육과 점진적인 환경 적응이 가능할 수 있도록 계획한다.
Design
매스는 학교급별 필요 면적과 높이를 반영하여 단계별로 인접 배치하였으며 각 매스의 겹침을 만드는 매스를 만들어 각 학교를 연결하는 공간을 만든다. 또한 사이트의 축을 따라 매스를 돌출시켜 테라스와 층을 연결짓는 외부 동선을 만들어 낸다.
학교급별 교실은 교실에서 일어나는 활동과 특징을 고려하여 타입을 설정하고 학교급을 연결하는 공유 공간과 학교급별 클러스터는 각 단계별 특징과 공간을 반영한다.
유치원과 초등 저학년은 교실 중심의 단순한 공간구조로 교실과 유희공간과 연결되 간단한 활동과 놀이가 일어날 수 있도록 하며 초등 저학년과 고학년은 램프로 각 층을 연결해 넓어진 활동영역에 따른 신체적 움직임이 일어날 수 있도록 한다.
초등 고학년과 중학교는 점차 필요한 시설이 다양해지며 그에 따른 효율적인 동선이 이루어질 수 있도록 하고 커뮤니티 라운지와 러닝라운지 등 다양한 공용공간을 배치하여 다양한 학생들의 커뮤니티와 활동, 휴식이 이루어 질 수 있도록 한다.
중,고등학교는 공용공간을 중심으로 세분화된 교실과 프로그램의 효율적인 동선이 일날 수 있도록 계획하였으며 홈베이스와 러닝라운지를 배치하여 개별적인 학습과 휴식, 커뮤니티가 형성될 수 있도록 한다.
이러한 공용공간을 따라 학년별로 교실을 수평, 수직방향으로 점진적으로 배치해 성장함에 따라 각 공용공간과 프로그램을 사용할 수 있도록 하며 인접한 연령과 학년은 같은 공간을 공유하지만 그렇지 않은 학년은 수평, 수직적으로 단절시킬 수 있도록 한다.
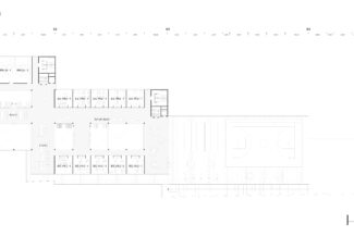
Drawings
두 부지를 합한 사이트를 두고 앞쪽은 유, 초등학교의 놀이터와 지역과 함께 사용가능하도록 하는 운동장을 배치하고 뒤쪽은 중,고등학교의 스포츠시설을 배치하여 발달 단계별 필요 공간을 배치한다.
1,2층에선 유-초등 저학년의 교실 및 교무,행정 시설과 기타 지원시설과 급식실을 배치해 저층 위주의 사용과 활동이 일어날 수 있도록 한다. 다목적홀 및 지역문화시설(미술관, 전시실, 도서관)등은 중-고등학교 영역의 저층에 배치하여 지역 문화시설의 역할을 수행할 수 있도록 계획한다.
3층은 초등 고학년의 교실이 램프와 커뮤니티 스탭등의 공용공간을 공유하며 중학생과 필요한 교육시설을 함께 사용한다. 고등학교 영역은 3층부터 기타 지원시설을 중심으로 배치되며 커뮤니티 홀을 통해 수직적인 연결이 이루어지며 4층은 중-고등학교의 교무,행정시설이 배치된다.
5층은 중, 고등학교의 영역으로 홈베이스 커뮤니티 라운지 러닝허브 등 다양한 공용공간이 배치되며 이러한 공용공간을 중심으로 각자의 커리큘럼과 시간표에 따른 이동이 효율적으로 이동할 수 있도록 한다. 또한 테라스를 스포츠 및 휴식이 일어날 수 있는 야외공간으로 사용할 수 있도록 한다.
학교급별 교실은 교실에서 일어나는 활동과 특징을 고려하여 타입을 설정하며 이러한 교실과 필요한 프로그램은 학교급별 클러스터를 형성한다. 이러한 클러스터는 학교급간 공유 공간과 연결되며 부대시설 및 지원시설 등 필요한 실들을 공유한다.



















































