Floating Museum
Suspension Structure를 적용한 박물관 계획안
김동현 / Kim Dong Hyun
Introduction
위치 : 대구광역시 수성구 황금동 70번지(국립대구박물관)
용도 : 박물관 / Culture
층수 : B1 – 3F
대지면적 : 95,027㎡
Agenda
국립박물관의 등급은 관장의 직급에 따라 결정이 되는데, 그 중에서도 국립대구박물관은 관장의 직급이 고위공무원단으로 국립중앙박물관 바로 아래 등급의 국립박물관이며, 지방박물관 중 소장 자료의 수는 약 30만 점으로 가장 많고, 연 관람인원도 3번째로 많은 박물관이다.
하지만 전시공간이 부족해 소장품의 0.6%만이 전시되고 있고, 수장공간은 꽉 차버려 유물들이 바닥에 방치되고 있어 훼손 우려가 큰 상황이다. 다른 국립박물관들과 비교했을 때에도 전시 및 수장공간의 면적이 현저히 작아 계속해서 문제가 제기되고 있는 상황이다.
전시면적은 기존에 비해 3~4배의 면적이 필요하고, 수장고는 지하에 위치해 증축 및 관리가 어렵다는 점을 보았을 때, 국립대구박물관은 신축을 통해 문화유산의 효율적인 관리와 시민들에게 더 나은 문화향유공간으로 다가가야 한다.
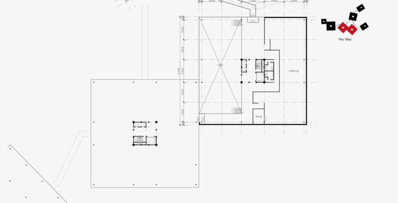
Site
기존 국립대구박물관의 대지는 높이 차가 약 20m인 완만한 산지 지형이며, 높이가 낮은 지형에는 박물관과 야외 석조물들이 위치하고, 높은 지형에는 토기가마전시장, 집터, 고인돌 등이 있는 유적공원과 산책로가 위치해 있다.
이 대지는 면적이 넓고 경사가 완만하며 숲으로 둘러싸여 관람객들이 전시관람과 산책 및 휴식을 함께할 수 있는 가능성이 있지만, 박물관과 유적공원은 높이 차로 서로 분리되어 있어 대지를 최대한 활용하지 못하고 있다.
Concept
새롭게 제안하는 국립대구박물관은 숲에 둘러싸여 내외부의 전시관람과 산책 및 휴식을 함께할 수 있는 박물관이다.
건축물이 숲 내부에 위치하면서도 숲의 면적을 최대한 유지하기 위해 건축물을 띄워 올린다면 건축물이 지표면에서 점유하는 면적을 최소화할 수 있고, 하부에 생기는 Canopy 공간은 야외전시공간, 휴식공간으로 활용될 수 있다.
Structure
건축물을 띄워 올리는 구조형식에 대해 고민을 했고, 그 중 교량구조에 사용되는 Suspension Structure는 대부분의 지상 구조물이 일반적으로 수직하중을 중력방향으로 전달하는 것과는 반대로 인장재를 사용해 중력 반대방향으로 하중을 전달하는 구조 형식이다.
이 구조 형식을 건축물에 적용하면 지표면에서 점유하는 면적을 최소화함과 동시에 건축물 내부에서는 기둥의 수를 최소화해 전시 공간에 유리한 공간을 형성할 수 있다.
Axonometric
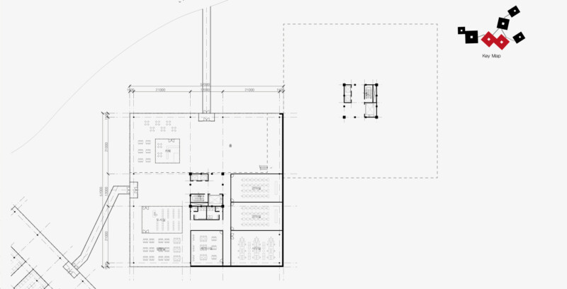
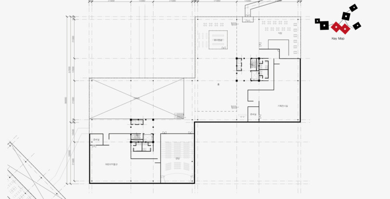
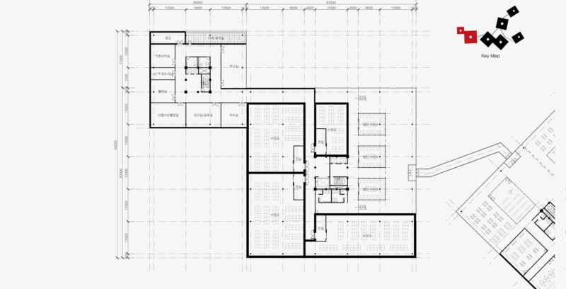
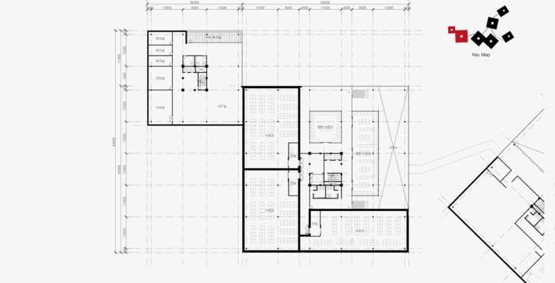
– 대로 변에 위치해 처음 접하게 되는 공간에 교육영역과 관람객 편의영역을 배치해 전시관람을 하지 않는 사람들도 이용할 수 있도록 했다.
– 지형의 골짜기를 따라 전시영역을 배치해 전시실 외부의 동선 또한 전시의 일부분이 될 수 있도록 했다.
– 수장 영역은 추후의 증축과 효율적인 수장유물의 관리를 위해 여유면적을 확보할 수 있는 평지에 계획했다.








































