Grow 09 Shop
구로기계공구상가 리모델링을 통한 유통상가의 발전방향
안용빈 / An Yong Bin
Introduction
위치 : 서울시 구로구 구로중앙로 197
용도 : 복합문화시설 / Commercial
층수 : B1 – 3F
대지면적 : 74,476㎡
건축면적 : 78,380㎡
연면적 : 308,702㎡
구로기계공구상가 리모델링을 통한 도심형 공구상가의 발전방향
구로기계공구상가를 비롯한 유통상가는 주로 공단의 옆에 위치하여 일반소비자 뿐만아니라 산업현장에서의 유통 수요를 해결하는 일종의 서포터와 같은 역할을 하는 곳이였다. 안산과 시화, 인천 등 한국의 대표적인 공업지대의 유통상가는 주변 공업지대의 확장이 이루어지면서 현재까지도 역할이 계속해서 유지되는 반면 도심지에 위치한 유통상가의 경우 계속해서 축소되는 상황을 마주하고 있다.
구로공단을 비롯한 서울에 위치한 공단지역은 과거에는 한국의 공업생산활동을 이끌어가는 역할을 맡아왔지만 계속되는 서울의 인구확장으로 인한 주거지역 수요의 급증 그리고 공업지대에 대한 지역주민들의 부정적인 인식 등으로 인해 계속해서 영역이 줄어들고 있는 상황이다. 이미 서울이라는 도시속에서 상당수의 공단들은 주거지역이나 복합문화시설 등으로 치환되어 안산, 인천, 해외등으로 이전하였고 이러한 현상은 가속화 되고 있는 상황이다. 구로에 위치한 구로기계공구상가 또한 존치여부가 불확실해지고 있는 상황이다.
이 프로젝트는 변화하는 도심지의 공단지역 중 하나인 구로공단 속에 위치한 구로기계공구상가의 변화방향을 탐구하며 이는 도심지 유통상가가 하나의 역할이 아닌 지역의 여러 이용객들을 서포트할 수 있는 다양한 역할을 수행하는식으로 생존방향을 잡아야한다는 것에 초점을 맞추고 있다.
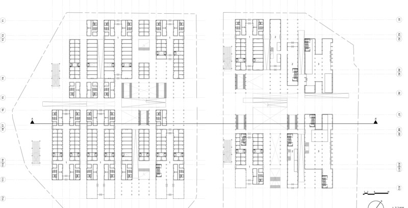
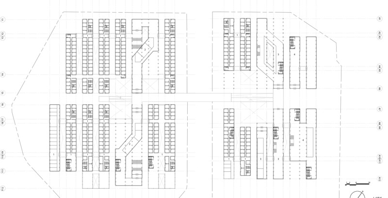
구로기계공구상가의 선형적인 그리드 구조를 유지하여 원래 가지고 있었던 역할을 일부 유지하고자 하였다. 그리고 선형구조속에서 일부를 덜어내어 Void와 Sunken 공간을 만들어 다양한 프로그램을 담을 수 있는 가능성을 내포하는 공간들을 구성하려고 했다. 또한 이를 가로지르는 수평적인 축의 공간과 이를 통해 연결되는 수직과 수평의 동선들을 활용하여 다양한 공간이 유기적으로 연결 되는 공간을 만들고자 하였다.


















