JCLIP
Jecheon Connection Library,Information,People
김소정 / Lim Ji Taek Studio
Introduction
위치 : 충청북도 제천시 동명로 78
용도 : 제1종 근린생활시설
층수 : B1-4F
대지면적 : 6,495.7㎡
건축면적 : 4,420.5㎡
Concept
복개된 용두천을 중심으로 상업시설이 집중되면서 사람들을 모으는 역사적으로 중요했던 공간을 사이트로 잡고 대지의 물리적인 흐름과 용두천 복원을 통해 주변의 문화 프로그램들과 도시의 자연적인 요소들을 연결하는 중간 다리로써의 역할을 가지는 도서관을 만들고자 했다.



Drawings
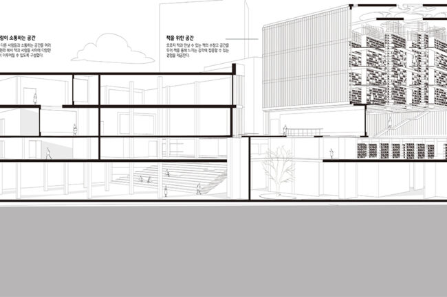
Ground 지상과 맞닿아 있는 공간은 사람들이 자유롭게 오고 갈 수 있는 공간을 중심으로 두어 다양한 이벤트가 발생할 수 있도록 했다.
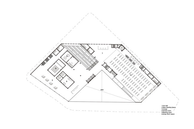
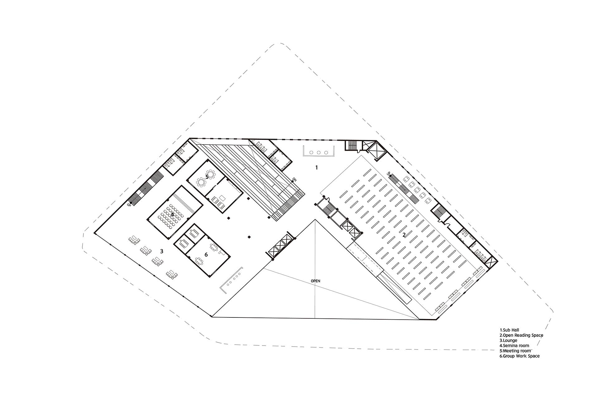
1F 도서관의 기능적인 공간을 두면서 외부의 개입이 비교적 작아야 하는 공간을 배치했다. 메인이 되는 공간은 오픈 열람실 및 소규모의 미팅룸과 열람실이 함께 자리잡고 있다. 또한 중앙의 보이드 공간을 통해 내부에서도 소통이 원할하게 이루어질 수 있도록 했다
2F-4F 책을 중심으로 둔 공간으로 외부의 개입을 최소화 할 수 있는 공간 배치 구성을 가지고 있다. 이곳에서는 책의 수장고를 중심으로 동선이 연결되며 온전히 책과의 개인적인 시간을 가질 수 있는 공간이 될 수 있도록 개인 열람실을 두어 도서관의 본질적인 기능이 담길 수 있도록 했다.




























