Law Court in Trefoil
의정부지방법원 파주지원
오민지 / Lee Kang Jun Studio
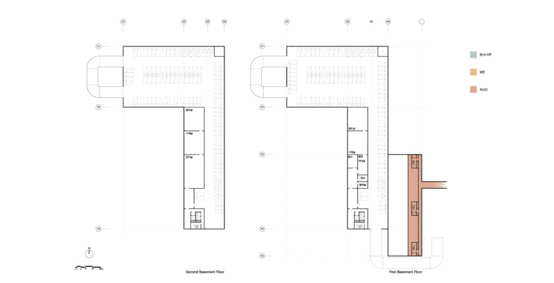
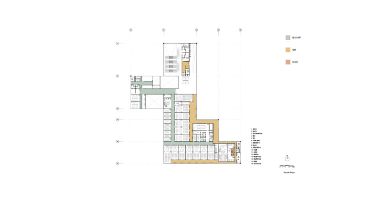
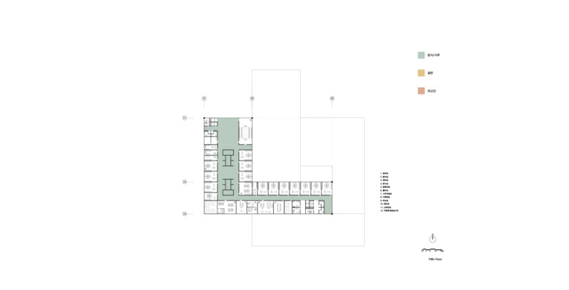
Trefoil Knot 형태에서의 동선과 공간 분리를 통해 법원의 보안과 업무효율을 높인 법원을 제시한다.
Trefoil Knot란 끈을 한 번 묶은 뒤 양 끝을 이어붙일 때 꼬임이 있는 매듭 중 가장 단순한 매듭 형태이며, 이러한 매듭이 서로 맞물릴 때 생기는 형태에 관심을 가지게 되었다.
Trefoil Knot의 algorithm을 통해 수직적, 수평적 결합으로 다양한 동선 제시가 가능하다는 건축적 가능성을 발견했고, 이는 업무의 효율성을 높이고 이용자별 동선이 겹치지 않도록 하는 법원과 물리적/비물리적인 유사성을 가진다.
법원은 보안과 안전상의 이유로 업무와 사용자에 따라 공간과 동선이 분리되어야 한다. 이에 따라 Trefoil Knot의 형태를 통해 동선의 컨트롤이 가능하도록 했다. 피고인, 일반인, 판사/법원 직원의 동선을 수평적 요소인 복도와 수직적 요소인 수직 통로를 통해 한 공간을 사용하지만 동선이 분리될 수 있도록 했다. 또한 법정 중심구역, 업무 중심구역, 민원업무 중심구역, 업무지원구역으로 업무별로 각 공간을 구분하여 업무의 효율을 높이고 사용자별 동선이 겹치지 않도록 했다.
현재 파주시의 급속한 인구증가와 함께 시민들의 법률문제 해결을 위한 사회적 비용이 증가하고 있고, 이로 인해 경기 북부 법원의 필요성이 증가하고 있다. 경기 파주시 문산읍은 최근 생활 기반 편의시설이 들어서고 있고, 교통•생활 여건이 개선되고 낙후지역 중심으로 개발되는 등 새롭게 변화하고 있다. 따라서 사이트를 경기도 파주시 문산읍으로 설정하여 의정부지방법원 파주지원 프로젝트를 진행하였다.






























