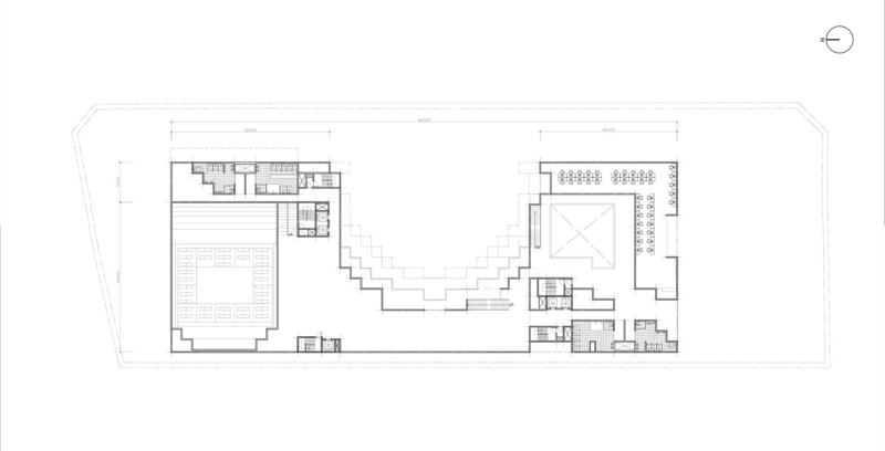
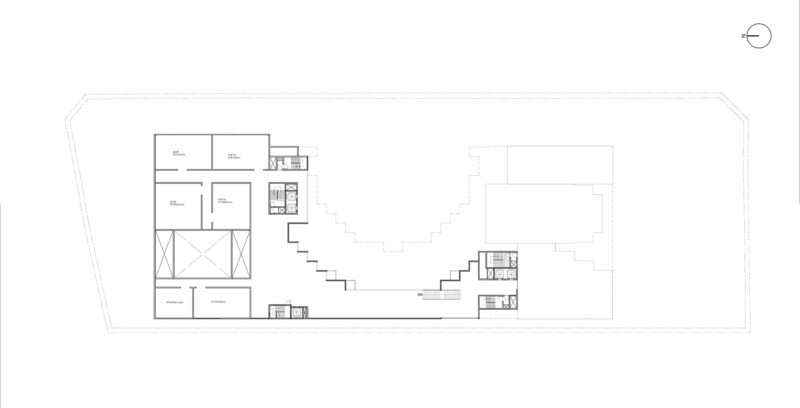
PIXEL STADIUM
E-sport Stadium for pangyo Techno Valley
박승균 / Ahn Chi Won Studio
E스포츠의 발달과 함께 IT 지역에 새로운 E스포츠 전용경기장을 제시한다.
1990년대 이후 개인용 컴퓨터 보급을 시작하면서 게임은 사람들과 함께 해왔다. 게임은 1세대부터 4세대 까지 발달해왔고, 중간중간에는 ‘게임은 질병이다’라는 이야기도 있었다. 하지만 현재는 E스포츠라는 타이틀을 달고, 하나의 문화로 발돋움하고 있다.
한국은 스타크래프트를 시작으로 E스포츠 시장이 시작되어 지금껏 이어져오고있다. 하지만 IT강대국이라는 말과는 무색하게 E스포츠 전용경기장이 부족한 현실이다. 경기장은 서울에만 집중되어있고, 경기도 외 다른 지역에는 전용경기장이 없다. 서울에 있는 경기장도 말만 전용 경기장일뿐 일부 공간들을 재배치하여 바꾼 정도에 불과하다. 이를 위해 2021년 이후로 각 지자체에서 전용경기장을 짓고자 계획하고 있다. 그 중 성남시에는 테크노밸리를 주축으로 국내 IT 기업의 중추적 역할을 하는 곳이다. 국내게임시장의 대기업들이 위치하고 있고, 각종 IT 회사원들이 있는 곳이다. 이러한 지역적 특색과 E스포츠 전용 경기장에 대한 욕구가 만나기에 충분하다 판단했다.
IT는 사이버세상을 디스플레이를 통해서 보여준다. 이 디스플레이는 픽셀로 이루어져 우리들이 사이버세상을 인식할 수 있게 해준다. 사이버 세상을 현실에서 보기위한 최소한의 단위인 것이다. 이를 현실에 표현하기에 픽셀의 사각형의 모양을 통해 건물로 표현한다면 어떨까? 라는 생각으로 출발했다.



























