PORTUNITY
[PORT]+[OPPORTUNITY], 인천내항 마스터플랜 & 스타트업 캠퍼스
이상준 / Lim Ji Tack Studio
Introduction
위치 : 인천 중구 인중로 201
용도 : 스타트업 캠퍼스(업무시설, 실험 및 제작시설, 주거시설)
층수 : B2 – 13F
대지면적 : 27,630.5㎡
건축면적 : 19,200㎡
연면적 : 96,450㎡
Agenda
개항기부터 우리나라 경제의 관문 역할을 해온 인천내항은 시대 변화와 함께 항만 기능이 점차 쇠퇴하면서 도심 속 거대한 유휴 공간으로 남게 되었습니다. 신항 건설로 물동량이 급감하고 부두의 상당 부분이 본래 기능을 상실하면서, 내항은 원도심과 바다 사이를 가로막는 큰 장벽으로 자리 잡았습니다.
이 방치된 내항 공간을 다시 도시 맥락으로 통합하기 위해서는 전체를 아우르는 종합적인 마스터플랜이 필요하다고 판단했습니다. 이번 계획은 단절된 원도심과 바다를 물리적·기능적으로 재연결하고, 역사적 정체성과 공공성을 회복하는 것을 중요한 목표로 삼았습니다. 더불어 침체된 원도심에 새로운 활력을 불어넣기 위해, 미래 신산업의 거점을 만드는 데 중점을 두었습니다.
특히 오랜 기간 항만 물류를 담당하다 현재는 활용이 중단된 철도 부지에 주목했습니다. 한때 화물을 실어 나르던 철길이 지금은 도심과 항만을 가로막는 장애물이 되었지만, 동시에 도시와 바다를 연결할 수 있는 새로운 축의 가능성을 지니고 있다고 보았습니다. 이러한 가능성을 실현하기 위해 철도 부지에 스타트업 캠퍼스를 조성하여 창업과 제작 활동의 거점으로 활용하고자 합니다. 이 스타트업 캠퍼스는 내항에 새로운 활력을 불어넣고, 닫혀 있던 항만 공간을 개방형 창업 생태계의 무대로 전환하는 핵심 거점이 될 것입니다. 이를 통해 산업화 시대의 산물이었던 항만 시설은 청년과 새로운 산업의 기반이 되는 미래의 요람으로 다시 태어날 수 있을 것입니다.
Theme Background
인천내항은 인천 항만의 중심부에 자리잡고 있으며, 인천광역시 중구와 동구의 경계에 위치해 있습니다. 북쪽으로는 개항장 문화지구와 원도심, 인천역과 차이나타운이 인접해 있고, 남쪽으로는 산업 및 물류 시설과 항만 배후 단지로 이어집니다. 내항은 해안선을 따라 단계적으로 부두가 배치되어 있으며, 각 부두는 과거 산업화 시기부터 수도권 물류의 핵심 시설로 중요한 역할을 해왔습니다.
또한 내항은 수도권 제2순환고속도로, 경인고속도로, 경인선 철도 등 광역 교통망과 연결되어 수도권 어디서나 쉽게 접근할 수 있습니다. 바다와 도심이 맞닿아 있으면서 원도심과 함께 성장해 온 항만으로서, 내항은 산업과 도시, 수변이 독특하게 중첩되는 특별한 입지를 갖추고 있습니다.
이러한 입지 조건은 물류 기능이 축소된 이후에도 내항이 새로운 도시 공간으로 변화할 수 있는 잠재력을 보여주며, 원도심과 바다를 다시 연결할 수 있는 중요한 전환점으로 주목받고 있습니다.
Concept
‘Cradle(크래들)’은 본래 ‘요람’, ‘발상지’, ‘기반이 되는 공간’을 뜻하며,
무언가를 안전하게 품고 새로운 시작을 준비시키는 역할을 상징합니다.
본 프로젝트에서 Cradle은 인천내항의 해양 산업 유산을 현대적으로 계승하여, 물리적인 ‘요람’의 개념을 새로운 창업과 혁신의 플랫폼으로 확장합니다. 과거 선박이 Ship Cradle에서 형태를 갖추고 바다로 나아갔듯이, 이제 이 공간은 청년 창업자와 창작자가 아이디어를 실험하고 협업하며 세상으로 나아갈 수 있도록 지지하는 도시적 성장 기반이 됩니다.
새로운 아이디어가 탄생하고 발전하는 지속 가능한 혁신 생태계를 품는 ‘도시의 요람’으로서 기능하며, Cradle은 단순한 건축물이 아니라, 인천 내항의 산업적 뿌리 위에 새로운 경제·사회적 가능성을 키워내는 지식·기술 기반 스타트업 인큐베이팅 플랫폼입니다.
Site
대상지는 인천내항 마스터플랜 수립 이후, 도시와 항만 사이의 실질적 연결을 구현하기 위한 핵심 지점으로 선정되었습니다. 해당 부지는 원도심과 1·8부두 사이를 가로지르는 구 화물철도 인입선으로, 과거에는 내항의 물류 기능을 담당하던 기반시설이었습니다. 그러나 항만 기능의 축소와 함께 현재는 운행이 중단된 채 도심과 수변을 가로막는 물리적 장벽으로 남아 있습니다.
선형의 이 부지는 내항과 도심을 가장 직접적으로 접하는 지점에 위치하며, 고도차와 펜스, 철로 흔적 등이 보행 단절을 더욱 심화시키고 있습니다. 하지만 동시에, 이러한 폐철도 부지는 도시의 흐름을 회복하고, 새로운 프로그램을 통해 주변 지역과의 관계를 재정립할 수 있는 전략적 여유지이기도 합니다.
따라서 본 프로젝트에서는 마스터플랜의 연결 축 개념을 바탕으로, 이 철도부지를 도심과 내항을 매개하는 공간이자, 공공성과 창의성을 담는 플랫폼으로 재구성하고자 합니다.
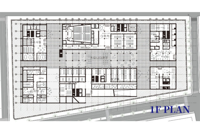
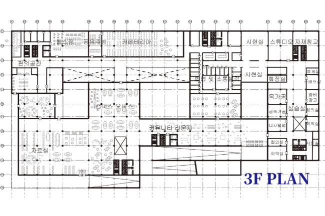
Drawings
Co-living Tower (A동)
A동은 캠퍼스의 거주와 교류 거점으로, 전체 공간의 약 65%는 청년 창업자와 방문자를 위한 주거 유닛으로 구성됩니다. 나머지 약 20%는 입주자들이 자연스럽게 만날 수 있는 공유 커뮤니티 라운지와 쉐어 주방, 다이닝 공간으로 계획됩니다. 나머지 15%는 복도, 휴게실, 세탁실 등 부대 공용시설로 배치되어 입주자의 생활 편의성을 높입니다. 이를 통해 단순한 기숙사가 아닌, 머무르며 교류하는 ‘살아 있는 거주 공간’을 목표로 합니다.
Cradle Tower (B동)
B동은 기업 성장과 단계별 보육을 담당하는 타워로, 전체의 약 60%는 팀 규모에 맞춘 전용 사무실과 독립 오피스로 구성됩니다. 약 25%는 법무, 회계, 투자 등 창업 실무를 지원하는 멘토링실과 컨설팅룸으로 계획되며, 나머지 15%는 입주 기업 간 교류가 이루어지는 공용 라운지와 휴게 공간으로 배치됩니다. B동은 입주 기업이 사업을 운영하고 외부 전문가와 연결되며, 안정적으로 성장할 수 있는 맞춤형 보육 허브 역할을 합니다.
Co-lab Tower (C동)
C동은 업무와 실험·제작이 결합된 공간으로, 전체의 약 50%를 공유 사무실과 코워킹 오피스로 구성합니다. 약 30%는 소규모 연구개발실과 메이커스페이스로 배치해 창업팀이 시제품을 제작하거나 실험할 수 있도록 합니다. 나머지 20%는 회의실, 멘토링실, 비즈니스 지원실 등 팀 간 협업과 네트워킹을 돕는 공용 지원 공간으로 구성됩니다. 실험과 업무, 지원이 한 곳에서 연계되는 융합형 타워입니다.
Craft Tower (D동)
D동은 제작과 실험의 거점으로, 전체의 약 60%는 공용 제작 워크숍과 오픈 제작랩, 장비실로 구성되어 시제품 제작과 기술 실험이 이루어집니다. 약 25%는 제작 교육실과 프로그램실로, 입주자와 외부 참여자가 함께 활용할 수 있도록 계획됩니다. 나머지 15%는 제작된 결과물을 전시하고 교류할 수 있는 전시·커뮤니티 존으로 구성됩니다. D동은 외부에도 열린 제작 허브로 작동하며, 지역과 연결되는 커뮤니티 역할을 합니다.
Maquette
 
        
         
         
					






































 
         
         
         
         
         
         
         
         
        