RAILWAY MUSEUM
용산전자상가 부지 재개발을 통한 철도박물관 제안
승민수 / Kim Yong Seung Studio
Introduction
위치 : 서울 용산구 청파로 132 (용산전자상가 일대)
용도 : 박물관, 복합문화시설
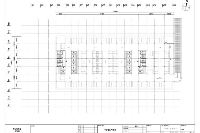
층수 : B1 – 4F
대지면적 : 33,000㎡
건축면적 : 8,900㎡
연면적 : 25,548㎡
Theme Background
지금 운영 중인 철도 박물관은 1988년에 개관되었으며, 기능적으로는 철도 역사를 소개하고 중요성을 강조하는 역할과는 다소 차이가 있다. 기존의 설립 목적에 따라 지금까지 많은 유물들이 수집되어 보존되어 왔지만, 문제점도 존재한다. 철도 유물에 비해 전시 공간이 부족하며, 관리를 위한 충분한 공간도 부족하다. 또한, 유물을 단순히 보존하고 수집하는 것뿐만 아니라 그 중요성을 기억하고 알리기 위한 박물관의 역할을 충실히 수행하지 못하고 있다.
이러한 문제를 해결하고자 우리는 철도 역사의 중심지로서의 역할을 담당해온 용산역 뒤의 전자상가 부지에 국립 철도 박물관인 문화시설을 계획하고자 한다. 이를 통해 기존 철도 박물관의 문제점을 보완하고, 새롭게 개발되는 용산 부지에 어울리는 장소를 조성하고자 한다. 이렇게 계획된 국립 철도 박물관은 더 넓은 전시 공간과 향상된 관리 시스템을 갖추며, 철도의 역사와 중요성을 보다 효과적으로 알리고 홍보할 수 있다.
Site
전국의 기차역별 이용객 수를 살펴본 결과, 서울역, 용산역, 동대구역이 가장 많았다. 또한, 용산역과 서울역은 오래된 역사를 가지고 있다. 이 중 주변에는 다양한 문화시설과 역사, 문화유산이 많아 용산구에는 여러 박물관들이 존재한다. 이러한 이유로 용산역 주변을 사이트로 결정하게 되었다.
근처를 살펴보다가 준공년도 오래되며 노후화된 건물 부지를 발견했다. 용산 전자상가는 상가들이 이미 30년 이상 노후화된 건물들이며, 전자상거래의 경쟁력이 저하되어 공실률이 약 20% 정도 되었다. 이미 몇몇 건물들은 재개발이 진행되었고, 선택한 사이트로 용산 전자상가를 결정하게 되었습다. 이로 인해 집객효과를 기대할 수 있는 용산역에서 접근하기도 편하고, 미래에는 용산역의 왼쪽에 용산 국제 업무지구와도 가까운 용산 전자상가 위치를 선택하게 되었다.
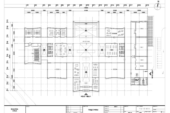
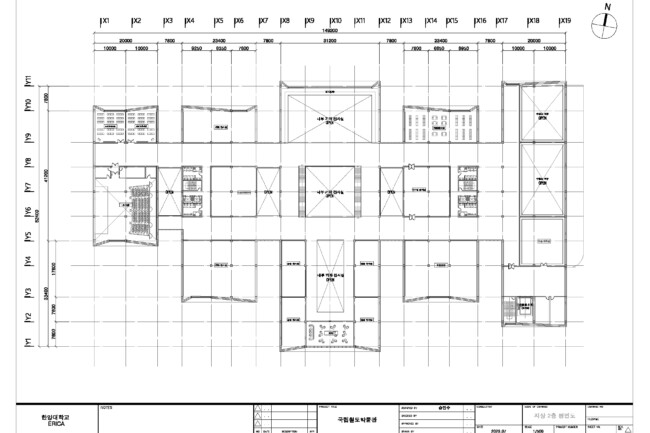
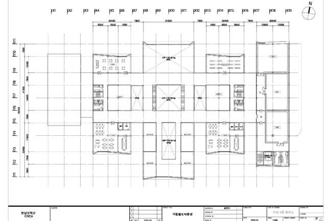
Mass Study
매스의 위치는 사거리 방향과 용산역 중간에서 마주보게 배치하였다. 이렇게 배치한 이유는 용산역에서 내려갈 때의 시각과 전자사거리에서 본 시각 때문이다. 전체적인 매스는 기차의 비율과 비슷한 볼륨감으로 디자인하고 기차를 상징적으로 표현했다. 사람들이 접근하는 방향에서 매스들이 기차가 나열된 것처럼 배열되도록 하며, 내부 기차 전시를 위한 공간 크기를 조정한 후 실제 기차를 전시할 수 있는 대형 공간을 중심에 만들었다.
매스의 중간에는 기차를 배치하여, 동선 어디서든 기차 전시를 볼 수 있도록 하였다. 또한, 이동통로에도 기차를 전시함으로써 외부에서도 기차를 볼 수 있도록 하였다. 이렇게 디자인된 매스는 방문객들에게 독특하고 흥미로운 기차 전시 경험을 제공할 수 있다.




































