RE:BOOT 5060
Complex 50+ Campus for Social Health
김채연 / Ahn Chi Won Studio
Introduction
위치 : 서울특별시 종로구 돈의동 103일대 (종로구 쪽방촌)
용도 : 주거복합시설
층수 : B1-5F
Agenda
UIA WORLD CONGRESS CPH 2023에서 제시하는 지속가능성이라는 큰 주제 안에 여섯개의 테마 중 Health를 주제로 프로젝트를 시작했다. WHO에 따르면 건강이란 단지 질병이 없는 상태를 의미하는것이 아니라 신체적, 정신적, 사회적으로 완전한 상태를 의미한다. 즉, 지속가능한 건강을 위해서는 신체적으로 질병이 없어 건강한 상태를 유지하는 것 뿐만 아니라, 고령화와 1인가구 증가 그리고 코로나 이후 더욱 심해진 개인주의 사회에서 사회적 건강 또한 우리가 보살펴야 할 요소이다. 여기서 사회적 건강은 ‘사회적 역할을 수행하면서 주변 환경이나 사람들과 관계를 맺으며 상호작용할 수 있는 상태’ 라고 정의내린다.
Theme Background 1
최근 여러 자료들은 사회적으로 건강하지 않은 면들을 보여주고 있다. 이것들은 고독사라는 결과로 이어지는데 우리나라의 경우 다른나라에 비해, 그리고 노동 능력에 비해 이른 퇴직과 1인가구 증가로 인한 사회적 고립, 단절 그리고 생활시설의 부족 등이 고독사의 복합적인 원인들로 작용하고 있다.
고독사의 자료들에 따르면 고독사의 사망자수는 계속해서 증가하고 있고 나이대별로 비교했을때 50-60대 중장년층들이, 그중에서도 남성들이 고독사에 가장 취약한것을 알 수 있고 이는 이른 퇴직으로 인한 사회적 경제적 단절이 우리나라의 고독사의 가장 큰 원인임을 알 수 있는 지표이다.
Design Concept
기존 쪽방촌은 대지 면적에 비해 극단적으로 높은 밀도를 가지고 주거공간이 형성되어 있다. 때문에 좁고 열악한 환경에서 사는 사람들은 하루하루를 버티며 살아가고 있다. 이 쪽방촌의 문제와 이 프로젝트에서 계획될 주거 공간의 특성을 혼합해 주거공간을 계획했다. 이 프로젝트에서 주거공간은 오직 잠만자는 공간으로 최소한의 공간만을 필요로 한다. 그리고 여기서 생활하는 사람들은 지속적으로 생활을 이어나가는것 보다, 잠시 여기에 머물면서 다시 사회로 나갈 준비를 하는 사람들이기 때문에 일시적으로 머물게 된다. 최대한 많은 주거공간, 그리고 잠만 잘 수 있는 최소한의 공간을 합쳐 주거공간은 캡슐로 계획되었다.
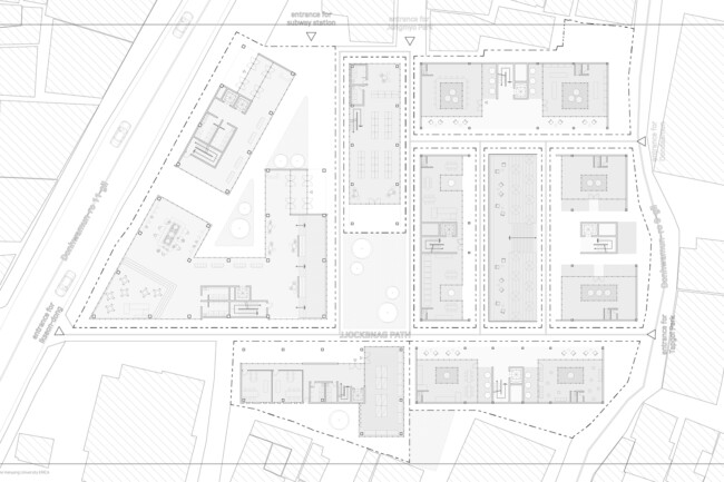
Site Plan Design
사이트 계획은 기존 쪽방촌의 길은 유지하면서 사이트의 북쪽(돈화문로 11길)과 남쪽(돈화문로 9길)길의 위계에 따라 프로그램 배치가 이루어진다. 익선동과 이어지고 지하철역이 밀집되어 있는 돈화문로 11길을 따라 50+프로그램의 지원시설인 공유오피스, 컨설팅 센터 등이 배치되고 그 아래에 새로운 사회적 활동을 위한 교육을 받을 수 있는 프로그램실 그리고 중앙대지에는 도서관과 커뮤니티 실이 배치된다. 이를 기준으로 아래에 돈화문로 9길을 따라 주거시설이 계획되었다.
Yellow (Hard) – Blue (Soft)
Drawings
하나의 대지가 굉장히 작은 면적을 가지고 있는 쪽방촌의 특성으로 주거 공간의 계획은 크게 그라운드 레벨과 그 이상의 레벨, 수직적으로 나누어 계획되었다. 아래층에는 골목과 연계된 빨래방, 공유주방, 목욕탕, 멀티 스페이스 등 공유공간과 주거공간은 가로 | 세로 | 높이 – 1700 | 2300 | 1500 크기의 캡슐주거공간으로 계획되었다. 이 두개의 공간은 중간 녹지공간으로 중심으로 배치가 되어 자칫 답답해 보일 수 있는 공간에 작은 환기공간을 계획했다. 또한 여러 동으로 나누어진 주거공간은 중앙의 지하 목욕탕으로 이어지는 선큰공간을 중심으로 계획되어 사이트 내 오픈,녹지공간들을 제공하고 기존 밀도 높은 사이트의 문제점을 어느정도 고려한 요소이다.
Section Plan
이른 퇴직으로 사회적 경제적으로 단절된 5060세대 사람들이 50플러스 캠퍼스에서 교육과 여러 프로그램 경험을 통해 새로운 삶의 능력을 키우고 잠자는 공간을 제외하고 모든 공간을 공유하는 캡슐주거 공간에 ‘잠시’ 머물며 사람들과 상호작용을 통해 단절을 허물고 다시 사회로 나가기 위해 준비할 수 있는 하나의 새로운 캠퍼스를 계획했다.



















