SCHOOLPLEX
지역과 소통하는 열린 학교복합화시설
임승윤 / Lim Seung Yun
Introduction
위치 : 경기도 시흥시 정왕동 시화MTV지구 내
용도 : 학교복합화시설 / Educational, Culture&Sport, Office
층수 : B1-8F
대지면적 : 30,943.0㎡
Agenda
도시의 급격한 성장과 인구밀집으로 인한 도시의 과밀화는 부지확보의 어려움과 비용문제 등의 문제점을 가져오지만 다양한 시설을 적은 부지에서 프로그램을 공유하며 이용하는 복합화시설은 이를 해결할 수 있는 방안이 될 수 있다.
또한, 학생들의 통학거리를 고려하여 배치된 학교시설은 지역민들이 쉽게 접근할 수 있는 위치라는 이점을 가지고 있는데, 이를 다양한 시설과 복합화하여 지역 공동체 중심시설로 기능토록 할 수 있다.
본 프로젝트를 통해 학교와 다른시설, 학생과 지역민들이 소통하는 학교복합화시설에 대해 고민해보았다.
Theme Background
시설복합화이슈는 도시의 급격한 성장과 인구밀집으로 인한 도시의 과밀화 문제로 대두되는 부지확보의 어려움등의 문제점에서 다양한 시설을 하나의 부지에서 해결할 수 있다는 점에서 이점을 가지고 있다.
그 중에서도 지역민들이 쉽게 접근할 수 있는 위치에 있는 학교시설은 시간대 별로 공실이 발생하는 특성과 저출산관련 문제점을 가지고 있어, 시설복합화를 통해 긍정적인 결과를 가져올 수 있으며 기존의 폐쇄적인 교실 위주의 학교공간에서 지역사회를 경험할 수 있는 열린시설로 변화할 수 있다.
Site
대지는 사화호에 접한 시화MTV지구내에 있는 학교부지로 기존 초중통합학교가 신설될 것으로 예정되어 있는 부지이다.
시화 MTV지구는 관광, 휴양의 여가기능이 조화된 첨단 복합단지로 미래지향적인 첨단 복합용지와 상업, 관광, 휴양시설이 조성될 예정이다.
Program
시화MTV지구는 미래를 이끌어갈 첨단 복합단지가 조성되고 있지만, 이를 지원하는 지원시설이 위치할 용지는 대부분 물류창고로 이용되고 있으며, 문화시설은 먼 거리의 오이도 박물관을 제외하면 상업적인 목적의 시설이 예정되어 있어 지역민들의 문화적인 욕구를 해소하기에는 어려움이 있다.
따라서 창업, 강소기업을 지원하는 기업의 동반성장을 지원하는 공공지원센터와 증가하는 지역민들의 문화적 욕구를 해소할 수 있는 문화체육시설을 학교와 복합화하여 지역 중심시설로 기능케하며, 학생들에세 양질의 문화시설을 제공하고, 기업과의 용의한 MOU를 통한 교육으로 교실에서 벗어나 열린 지역사회를 교육의 공간으로 이용할 수 있다.
Concept
공유공간, 학교공간, 독립공간을 레이어처럼 분리하여 동선분리의 문제를 가진 학교복합시설의 한계점을 극복하고 복합시설을 공유할 수 있도록 하였다.
Design
먼저, 독립된 5개의 시설을 의미하는 매스들을 배치하고, 학교에서 복합시설들을 연결하는 역할을 하는 브릿지를 만든 후에 매스화 하여 학교가 복합시설의 공간을 학교의 공간으로서 이용토록 할 수 있는 레이어를 만들어 복합시설에서 학교로서의 역할을 강조하도록 하였다.
Drawings
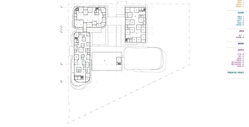
지역민들은 위와 아래쪽 주진입로를 통해 접근하며, 학생들은 주진입로와 분리된 별개의 진입로를 통해 접근한다.
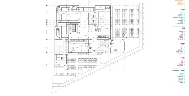
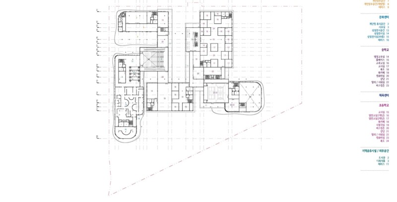
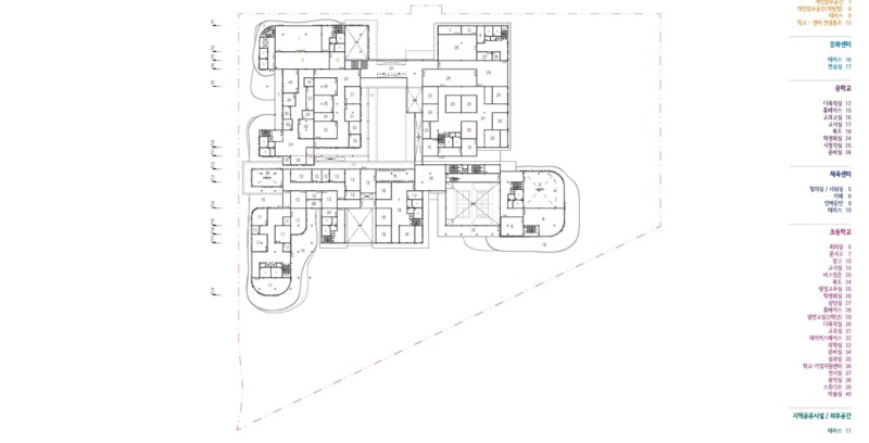
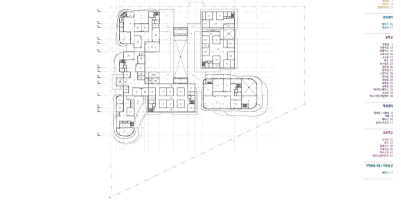
지하1층은 5개의 건물이 마치 하나의 건물처럼 보이도록하는 공간구성을 하고 있으며, 1층은 공공가로 중심으로 분리되어 배치된 매스들, 그리고 2층부터 4층까지는 학교의 공간들이 다른 건물들과 연결되는 모습을 볼 수 있다.
이는 학교의 등학교시간을 기준으로 공간의 사용주체가 바뀌면서 변화하는 모습을 볼 수 있다.



















































HBD
자네 작품 인상깊게봤다티비
Re_
자네 소문이 무성할 만 하구만라디오