THE FUTURE OF TRADITIONAL MARKET IN WONJU
Activate Old Town
이성민 / Kim Yong Seung Studio
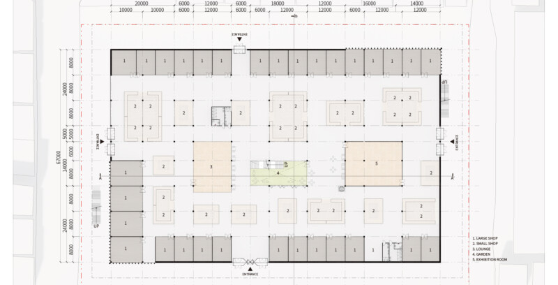
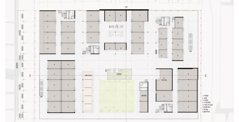
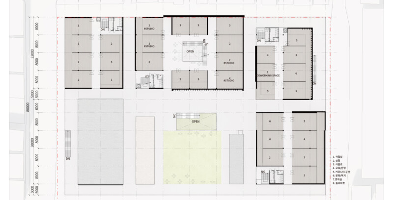
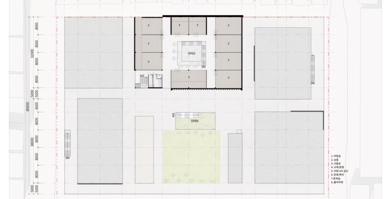
원주 구도심에 위치한 중앙시장에 청년과 노인들을 위한 프로그램을 제공함으로써 지역 문화의 장으로 활성화시키고자 한다.
원주 중앙동에 위치한 원주 중앙시장은 1970년에 철근콘크리트 건물로 건립되어 원주시의 상관을 주도했었다. 하지만 신도시가 생겨나면서 구도심이 되었고, 대형마트의 등장으로 사람들의 발길이 뜸해졌다. 2015년부터는 문화관광형시장으로 선정되어 미로예술시장이 운영되고 있다.
현재 건물은 노후화되고 중앙시장은 매체를 통해 관광지화 되면서 지역 주민들의 커뮤니티를 담당하던 시장의 역할은 점차 지워지게 되었다. 따라서 원주 중앙시장을 다시 지역 주민들의 문화공간으로 돌려주고자 프로젝트를 진행하게 되었다.























