Urban Air Terminal
새로운 교통수단, UAM을 위한 대규모 터미널
표창현 / Pyo Chang Hyun
Introduction
위치 : 서울특별시 용산구 한강로동 용산역 인근
용도 : 오피스, 터미널, 격납고, 착류장, 여가시설 / Culture & Sports, Educational, Office
층수 : 1F – 18F
대지면적 : 26,956.0 m²
Agenda
도시가 발전하면서 교통도 발전했다. 도시는 연결을 위한 선으로 이루어진 도로망을 구축하고 도로를 이용한 교통수단들이 발달했다. 그러나 도시가 계속 커져가면서 도로망과 교통망은 과포화상태에 이른다. 결국 모든 도시들의 문제점인 교통혼잡이 생기게 되었다. 철도망 구축, 자전거 이용등 많은 방법을 사용하여 문제를 해결할려고 했지만 쉽게 해결되지 않았다. 유일하게 선적인 연결에서 해방되어 있는 항공이용은 비용 및 크기의 문제로 도심내에서 이용하기 어려웠다. 하지만 기술의 발전 항공기의 활주로를 이용하지 않고, 또한 소음문제를 최소한 할 수 있는 항공기, UAM을 만들었다. 이는 도시에서 새로운 교통수단으로 활용될 가능성이 충분했고 이를 활용한 방안을 찾기 위한 건축을 시작했다.
Theme Background
도시는 선적인 연결로 되어있다. 어느 곳을 가기 위해서는 경로를 설정하고 가는 수단을 정해서 차량, 버스, 지하철, 걷기, 자전거, 전동 킥보드등을 이용해서 이동한다. 이는 UAM(드론택시)이 생기면 큰 부분의 경로는 지점을 중심으로 비교적 짦은 거리를 다른 수단을 이용해 이동 할 수 있게 된다. 이는 기존의 교통체증을 획기적으로 완화시킬수 있다. 서울시도 지금 교통혼잡이 매우 흔하게 일어나고 있다. 이를 인지한 서울시는 UAM계획을 만들고 2025년부터 시험운행을 하기로 결정하였다. 이후 서울시는 한강을 중심으로 김포공항, 잠실, 용산을 연결시키는 계획을 준비중이고 대규모로 드론을 이용 할 수 있는 시설을 계획하게 되었다.
Site
UAM을 운용하기 위해서는 한강에 가까운 곳이 가장큰 이점을 가지며 대규모로 이용되기 위한 큰 땅 및 중심적인 위치에 있어야 한다. 이를 고려하여서 용산 국제업무지구에 터미널을 만든다는 계획을 세웠다. 용산은 서울의 중심에 위치하고 또한 용산역은 4개의 노선 KTX가 지나가는 서울 교통의 요충지 역할을 수행하고 있다. 또한 도로는 강변북로, 한강다리 3곳이 거쳐있어 도로망에서도 중요한 역할을 하고 있어 이 대지를 선정하였다.
Program
드론이 이용되기 위해서는 필요한 공간을 미리 확보해야 한다. 그러기에 드론을 한가지를 설정하였고, AIR BUS에서 제작한 드론을 선정하였다. 또한 아직 운행이 된 적이 없기에 드론 운행 시스템을 설정하였고 이를 통한 공간을 확인할 수 있었다. 그 후에 어떠한 시설들이 필요한지 설정하였다. 대규모의 드론이 들어가는 만큼 드론 관한 시설의 면적이 최대로 들어갔고, 뒤를 이어 이를 사용할 사람들을 위한 프로그램을 설정한 뒤, 그외의 시설들의 면적을 분배하였다.
Concept
기존의 공항터미널은 수평적으로 넓게 분배하여 활주로와 최대한 가깝게 배치했지만 UAM은 활주로가 필요하지 않아 획기적으로 공간을 줄일 수 있고, 이를 이용하여 프로그램들을 수직적으로 쌓아 올려 여러 시설들이 엮이면서 이용 할 수 있게 했다.
Design
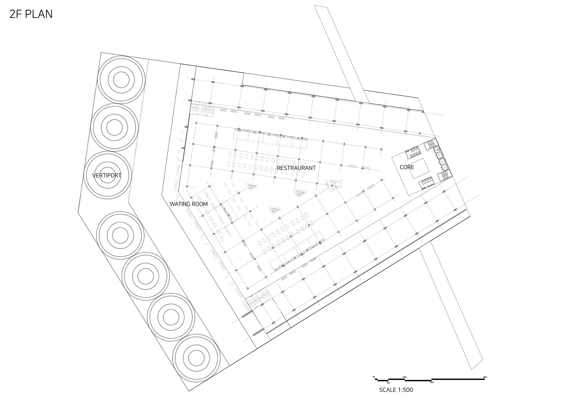
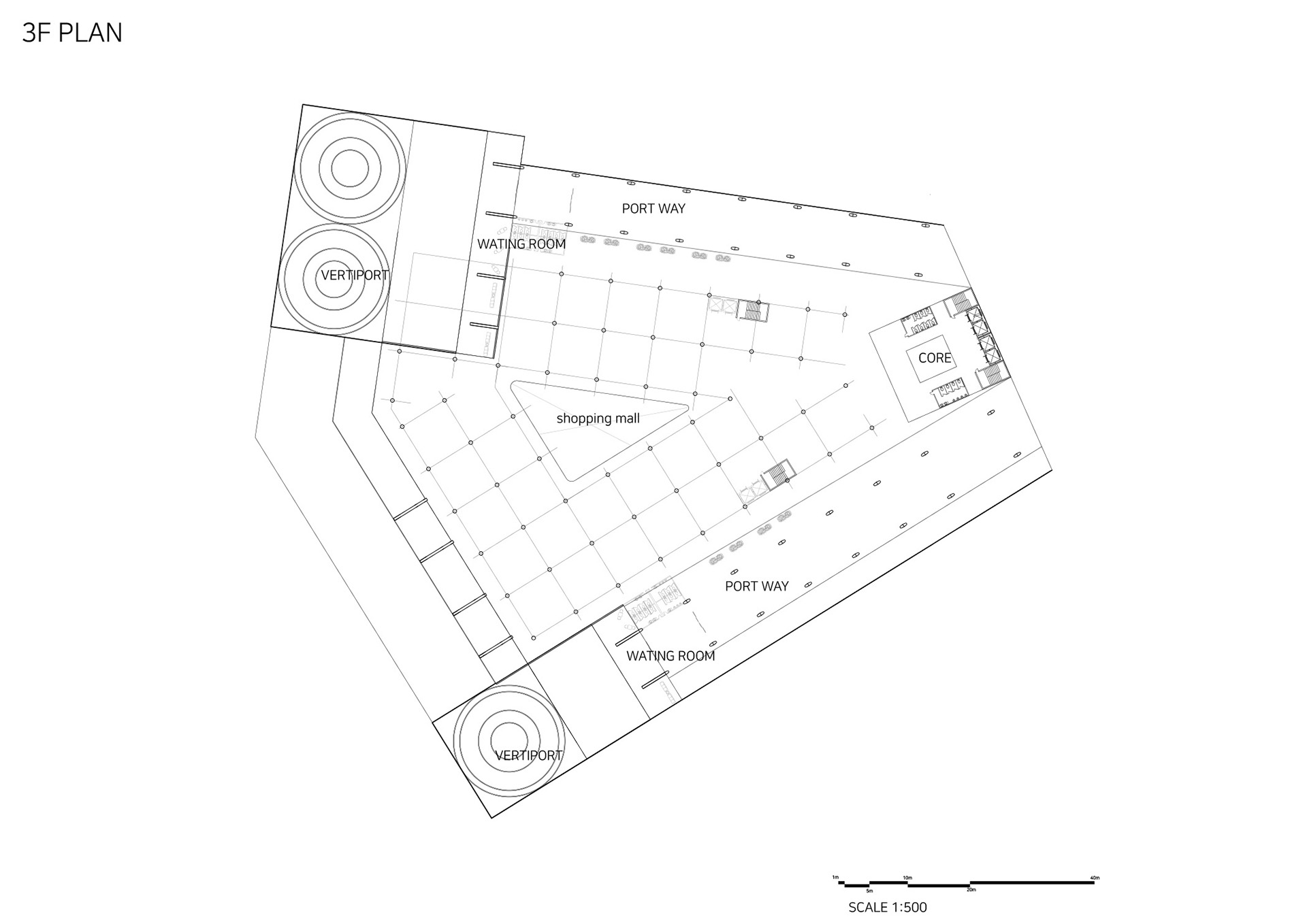
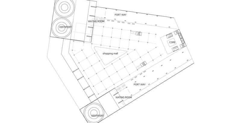
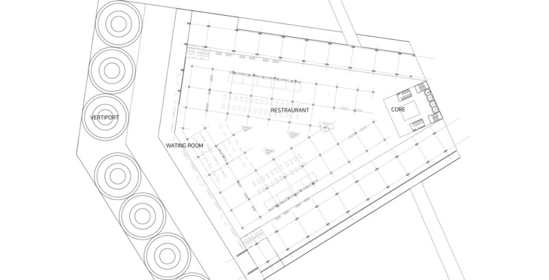
먼저 가장 중요하고 가장 큰 면적을 가지는 착륙장 및 드론을 배치하기 위해서 용산역과 드래곤 시티 호텔과 연결된 고가 인도를 한강 방향으로 틀고 착륙장과 대기장소를 같이 배치하여 위치를 정한 뒤 고가인도와 착륙장을 연결해줄수 있는 공간을 만들고 필요한 프로그램의 면적에 따라 만들어 형태를 만들었고, 착륙장으로 가는 흐름을 보여주기 위한 입면 디자인을 했다. 내부의 공간을 기둥으로 구분하여 원기둥, 트러스 기둥은 3가지 종류로 나누어 구분하여 디자인 했다.
Drawings
원기둥이 배치된 공간은 사람들이 기다리면서 즐길수 있는 프로그램을 배치하고 벽을 최대한 배제하여 열린 공간을 만들어 사람들이 편안감을 줄수 있는 공간을 만들었다. 착륙장으로 가는 길은 트러스기둥으로 이루어져 있으며 의도적인 공간 비움을 통해 가깝게 붙어있는 용산역과 호텔의 버퍼 역할을 하게 했다. 착륙 대기장소는 들어가기 위해서 보안검색실을 거치게 하였고 또한 착륙장이 바로 보일수 있게 했다.











































