WATER MATRYSHKA to get the space
Sustainable Future Design for Resilient community
김소연 / Kim So Young Studio
Introduction
위치 :서울 용산구 한남동 531-3
용도 :복합문화시설
층수 : B2 – 3F
대지면적 : 7650㎡
건축면적 : 3591.3 ㎡
연면적 : 10915.9㎡
Site
사이트는 한남동 빗물펌프장입니다. 한남동은 현재 재개발로 고급아파트단지가 들어오고 있습니다. 특히, 사이트를 중심으로 왼쪽과 오른쪽의 시설 이분화가 심각한데, 사이트 오른쪽은 고급아파트 단지가 상당히 들어와 있는 상황이고 왼쪽은 노후도가 심한 주거지가 모여있는 상황입니다. 사이트 아래방향으로 한강공원이 있으며 사이트 주변에 유일하게 있는 녹지입니다.
사이트 내, 주거지를 제외하고는 커뮤니티공간을 대체할 다른 프로그램이 적으며 편의점등의 간단한 가게들이 있습니다.
Drawings
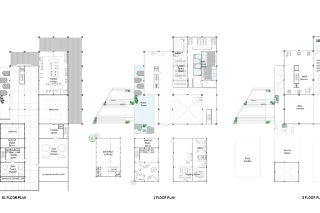
기존에 있던 빗물펌프장부터 시작하여 올라갈수록 public의 특성이 강해지는 프로그램배치이다
B2- 빗물펌프장의 유수지와 한강으로 연결되는 파이프가 위치해 있으며 B1층에서 확인할 수 있도록 아트리움공간에서 연결된다.
B1 – 대지레벨에서 사람들이 들어오는 기준층으로 체육관, 빗물펌프장 오피스, 전시동 총 3개의 공간으로 나누어지는 층으로 동선은 연결되며 아트리움을 통해 3층까지의 공간을 확인할 수 있으며 빗물이 정수되는 과정을 확인할 수 있다.
1 FLOOR – 목욕탕과 기준층에서 연결되는 정원을 확인할 수 있으며 여러 공간에서 만들어져
있는 물공간을 확인할 수 있다.
2 FLOOR – 1층 목욕탕이 연결되며 아트리움의 중간층으로 위에서 흐르는 물을 확인할 수 있다.
3 FLOOR – WATER GARDEN이 있으며 PUBLIC이 가장 큰 공간으로 넓고 큰 아치로 공간이
이루어져있다.

































