WELFARE AND CURE
공공복지와 보건소의 역할이 융합된 복지보건소
권혁준 / Kwon Hyuk Joon
Introduction
위치 : 서울 용산구 청파동 청파 어린이공원
용도 : 문화&복지시설 / Culture & Welfare
층수 : B1-4F
대지면적: 5587㎡
건축면적: 3500㎡
연면적 : 16500㎡
기존 보건소의 기능한계의 문제점을 극복하고자 복지의 개념을 융합한 새로운 형태의 보건소 프로젝트
보건소가 한국에 생긴 이후 시대가 흐름에 따라 추구하는 방향성은 계속해서 바뀌었다. 1950년대에는 급성 감염병의 예방 및 의료 구호에 치중하였다면, 시간이 지남에 따라서 각 지역의 건강증진을 목표로 건강사업 및 예방관리 사업에 치중을 두고 있다. 그러나, 지역보건법에 의해 서울시 내 각 구에 설치되어 있는 보건소 건물은 대부분 노후화되고 각 지역의 HEADQUARTER라는 말이 무색하게 정말로 서비스가 필요로 하는 주민들이 등한시되는 경우가 많다.
그 중에서 중구에 위치한 보건소는 다른 지역에 비해 노숙인들의 비율이 높다는 점에서 관련 사업에 치중되어있어야 하는 반면, 여느 보건소와 비슷하게 운영이 되고 있고, 이를 해결하기 위해 노숙인들을 품을 수 있는, 그 동안 민간에만 의존되었던 노숙인 관련 사업을 공공 영역으로 끌어들여 보다 투명하고 제대로 된 서비스를 제공할 수 있는 복지 보건소를 만들고자 한다.
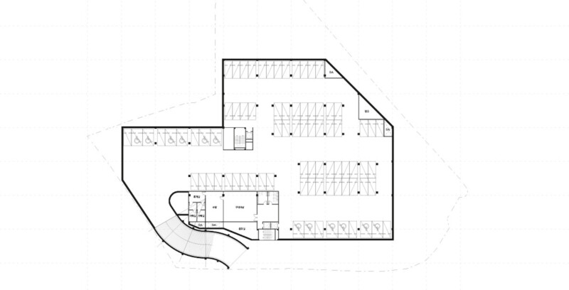
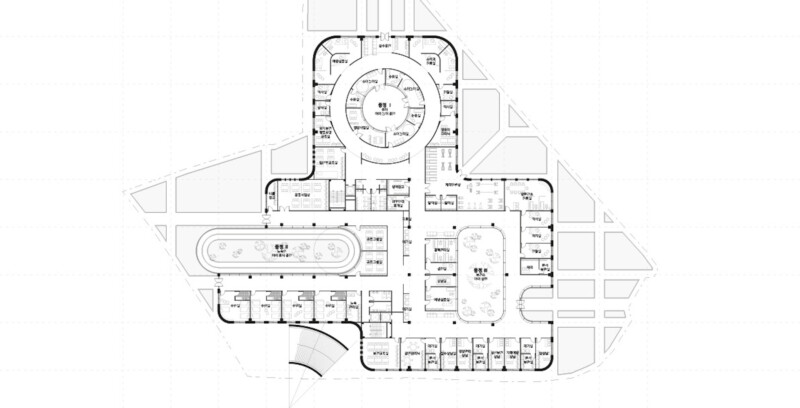
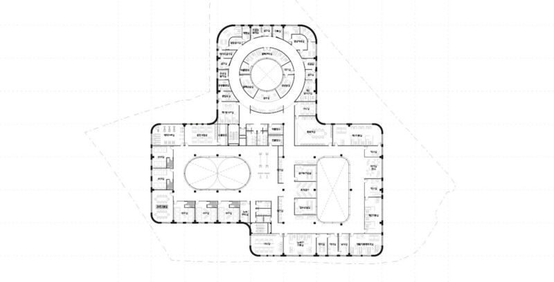
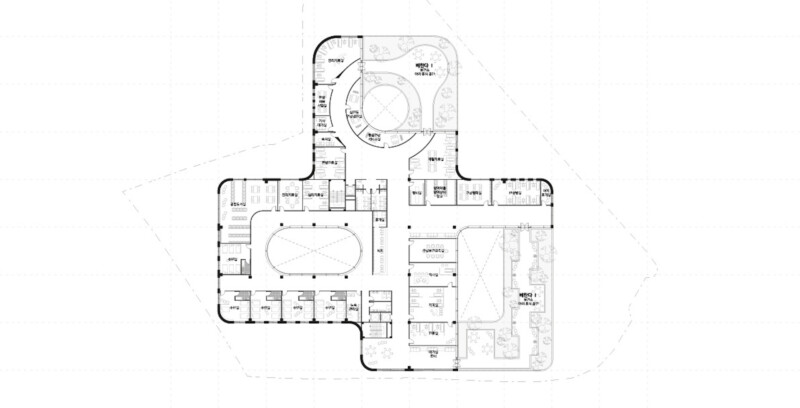
기존 보건소의 문제점으로는 각각 복잡한 절차와 그로 인한 동선의 복잠함과 이동통로와 대기공간경계의 모호함으로 인해 생기는 혼잡함이 있었으며 이를 해결하기 위해 낮은 단지형태의 보건소를 구상하여 프로그램에 맞는 공간을 구성하는것부터 시작했다.
크게 3개의 프로그램으로 구분을 지었고, 노숙인이 지내면서 각종 족지사업을 제공받는 공간 기존 보건소 사업과 같이 지역주민이 필요로 하는 공간 마지막으로 양쪽 사용자가 모두 이용하는 진료적 공간으로 나누었다. 이후에 각 프로그램의 성격에 부합하는 중정을 만들어 녹지를 보다 사용자의 성격에 맞게 사용할수 있도록 함으로서 개방적인 녹지가 아닌 타켓에 맞춘 녹지를 조성하였다. 다음으로는 지역주민과 노숙인들이 공통으로 필요로하는 공간을 가운데 만듬으로서 복지보건소의 주요공간으로 작용함과 동시에 매스의 일부분을 잘라냄으로서 상층부의 공간을 이용하는 주민들을 위한 테라스를 만드는 과정을 거쳤다.

































