Kim Yong Seung Studio

ART COMPLEX in YEOKSAM

서재원 / SEO JAE WON

ART COMPLEX in YEOKSAM

서재원 / Kim Yong Seung Studio

현재를 살아가는 젊은 아티스트들은 ‘젠트리피케이션’으로 인해 계속해서 저렴한 곳을 찾아 이주하고 있다.
중심가에서 멀어질수록 그들이 영감을 받을 수 있는 기회는 줄어들며, 작업공간과 주거공간의 거리차로 인한 부가비용이 발생하게 된다.

그렇다면 애초에 중심가에서 거주하고 작업하며, 비용은 덜고 꿈을 키울 수는 없을까.

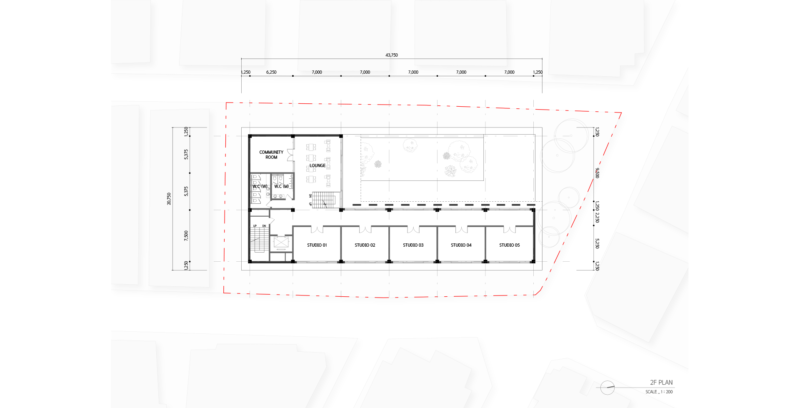
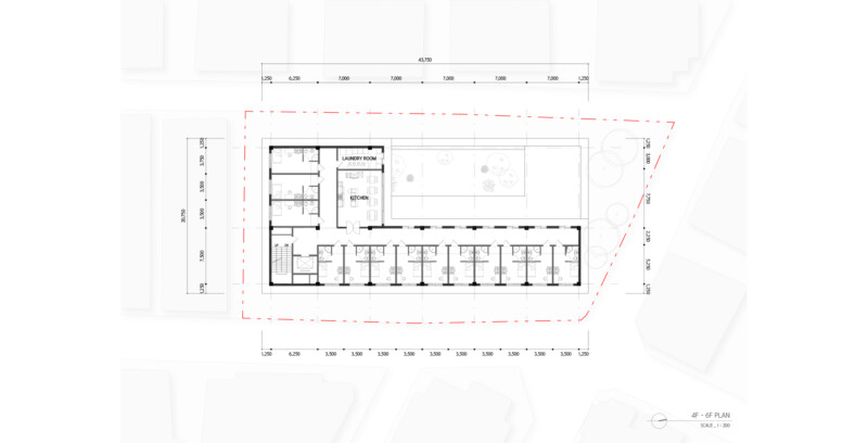
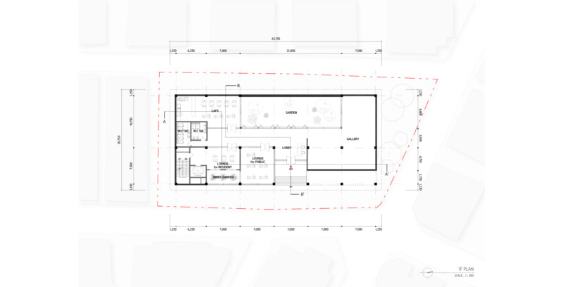
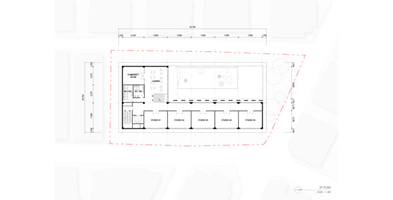
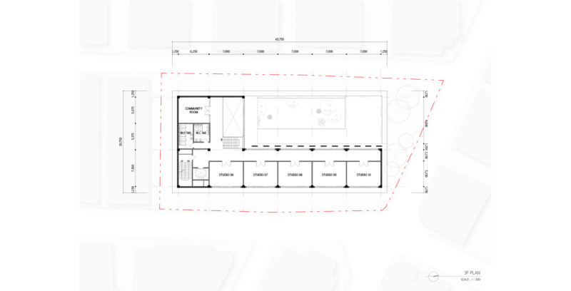
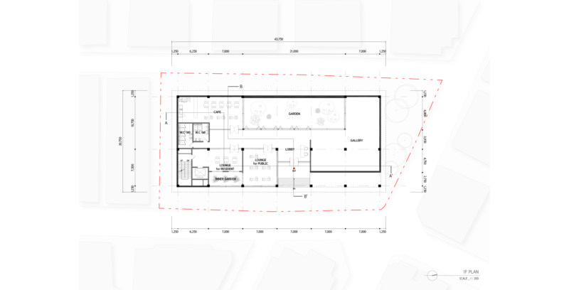
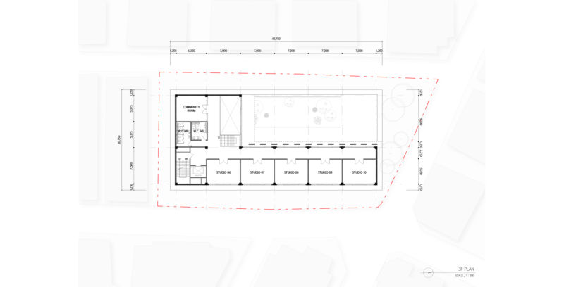
이러한 생각으로부터 강남구 역삼동에 젊은 아티스트들을 위한 ‘주거공간과 작업공간이 복합된 퍼블릭 시설’을 제안하고자 한다.

Work Details

답글 남기기

이메일 주소는 공개되지 않습니다. 필수 필드는 *로 표시됩니다