Bucheon Football Park
Stadium beyond fans and legacy
이영욱 / Park Jun Ho Studio
Introduction
위치 : 경기도 부천시 길주로 486
용도 : 복합문화시설 / 체육시설
층수 : 3층
대지면적 : 78,248㎡
건축면적 : 15,648㎡ (건폐율 20%)
연면적 : 39,997㎡ (용적률 51%)
Agenda
현재 K리그2에 있는 부천FC 1995는 부천종합운동장을 홈구장으로 쓰고 있다. 현재 국내 프로축구에는 많은 구단들이 축구전용구장을 추진하고 있고 부천 또한 마찬가지이다. 현재 홈구장으로 쓰는 부천종합운동장은 30000석 규모의 육상트랙을 갖춘 종합운동장이다. 종합운동장은 시야적인 부분과 관중동원 밀도 부분에서 문제점을 가지고 있고, 현재 사용하고 있는 가변석 또한 경기장이 가질 수 있는 최대 관중을 유치하지 못하는 한계가 있다. 또한 경기장은 경기 뿐만아닌 팬들과 구단의 역사와 추억을 담고 있는 곳이기에 문화와 역사를 위한 공간으로 설계를 하고자 한다. 평균 관중 수에 맞춰 10000명 대로 규모를 맞추고 없는 날에는 경기장을 활용하고 시민의 공간으로 사용할 수 있도록 하며, 구단과 팬의 가치를 담을 수 있는 방향으로 프로젝트를 시작한다.
Theme Background
현재 홈구장에서 일어나는 현상들을 정리했다. 경기 뿐만 아니라, 운동장 외에 관중석 및 관람 시설들에서 다양한 이벤트들이 일어나고, 이런 현상들이 구단의 운영 방향 그리고 관중으로 하여금 기억과 추억으로 남게 된다. 이 모든 부분을 새 구장에 새로운 건축의 언어로 표현이 되도록 한다.
Site
부천 종합운동장은 2001년에 지어진 종합운동장이며 부천시 원미구 춘의동에 위치해 있다. 현재는 부천FC 1995 구단의 홈구장으로 쓰여지며, 2면 가변석이 설치되어있다. 부지 동쪽과 남쪽은 원미산을 비롯한 녹지지역이 위치하여 있고, 춘의 준공업지역이 서쪽에 위치하여 있다. 현재 7호선과 소사대곡선 그리고 GTX의 환승역으로 지정될 부천종합운동장역이 지나가고 있다. 부지 북쪽 방향으로 역세권 개발 사업이 진행될 예정이다.
현재 30000석 규모의 부천종합운동장에는 다양한 도시공단 및 체육시설이 있고, 시야와 밀도 부분 해결을 위해 가변석을 설치 하였으나, 안정성 면이나 최대 인원 수용이 부족하다는 점이 있다. 10000석 규모의 경기장 설치를 위해 면적 면으로 적합한 외부 주차장 부지를 사용하고자 한다.
고도차이는 앞뒤로 10m 가량의 차이가 있다.
Design
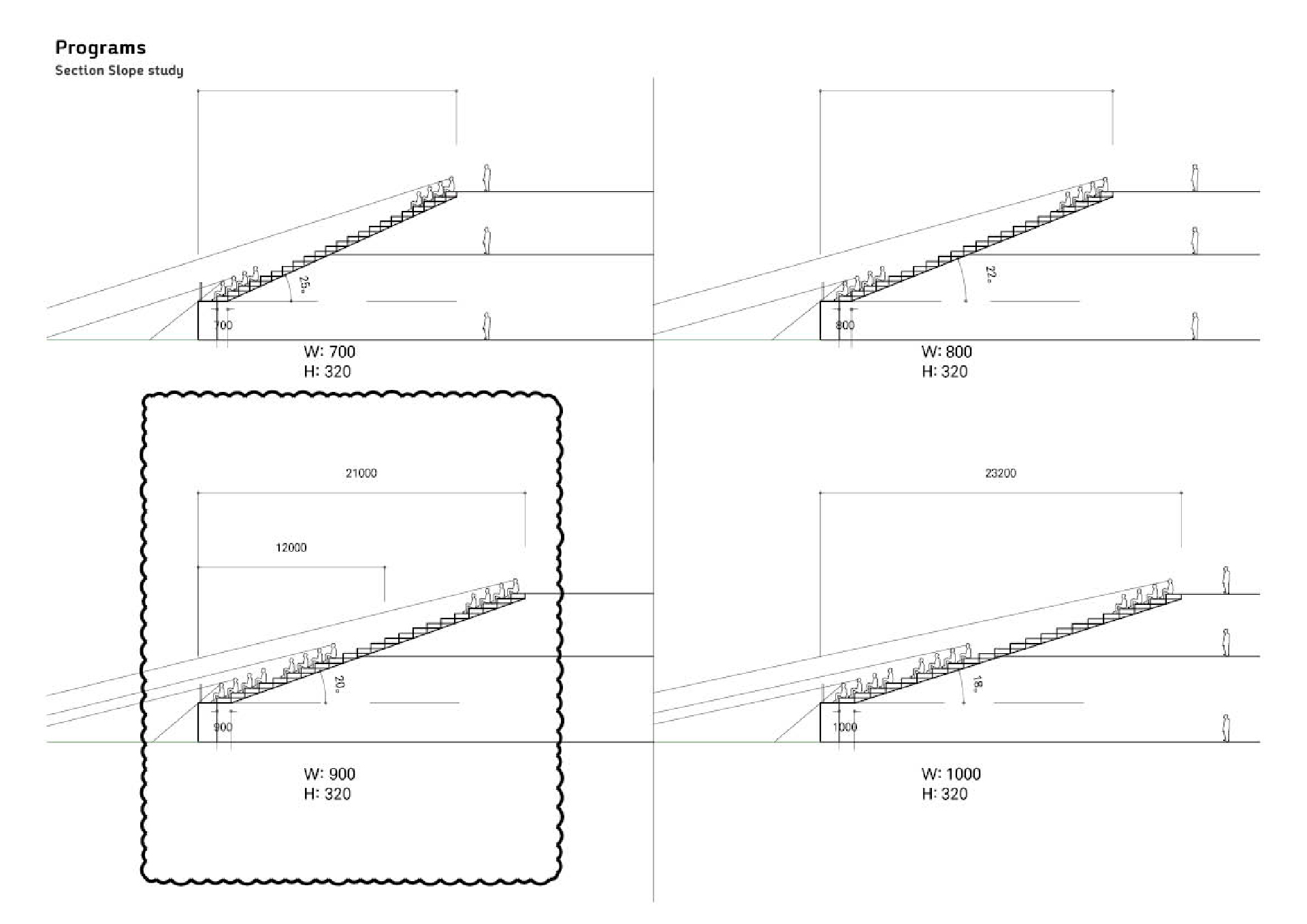
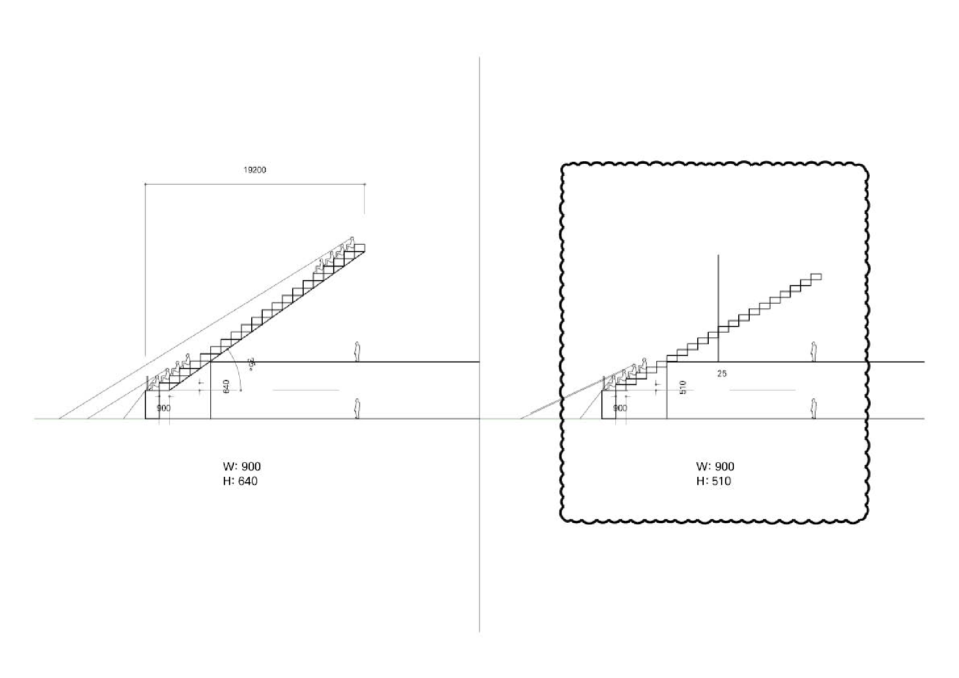
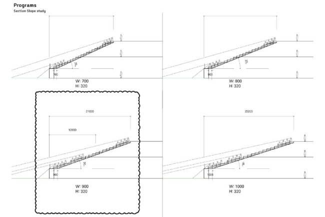
관중석 단차 스터디
프로그램 배치는 전체적으로 경기장 동선을 돌게끔 하였으며, 전략에 따라 서(본부석), 남(서포터석), 동(일반석), 북(오픈잔디광장, 원정석)을 두었고 전체적으로 경기장 내부를 볼수 있게끔 하였다.
앞뒤 대지 단차가 10m 인점을 이용하여 서측 박물관에서 동측으로 상승하는 슬로프형 매스 즉 서동측으로 높이 차 그리고 서포터석의 웅장함을 위해 남측에도 높이차를 두어 웅장함을 두었다.
외피도 또한 이러한 매스의 선형 형태를 강조하기 위해 선형 LED 조명 및 랜드스케이핑을 활용하여 외피와 지붕 디자인 또한 진행했다. 또한 투명감과 발광 재료를 사용하여, 지역의 랜드마크로 자리잡을 수 있는 가능성을 두었다.
Drawings
좌석은 약 10500석 규모를 두었고, 사람의 진입이 많은 곳에 2단의 스탠드 역세권 부지 및 역 사거리가 있는 곳에 개방감을 둔 잔디형 좌석을 두었다. 접근성이 있는 곳에 아트리움형 광장을 두었다.









































이경영
전용구장…진행시켜.
곽경영
오세안무역~~
이랜드의비밀결사대
잠실 리뉴얼 이 계획대로 진행하겠습니다.
호날두
번창하세요.
노원맨
퍼가요~^^*
홍지운
잘 보고갑니다 ^^*