Lim Ji Taek Studio

Connect: Yongsan

김현우 / Kim Hyunwoo

Connect: Yongsan

철도중심의 도시에서 보행중심의 도시로의 전환

김현우 / Lim Ji Taek Studio

Introduction

위치 : 서울특별시 용산구 한강로3가 40-999

용도 : 복합문화 및 상업시설

층수 : 1F-29F

Agenda

용산구는 용산공원 및 용산국제업무지구와 같은 다양한 개발계획을 바탕으로 변화의 중심에 서있는 지역이다.

하지만, 용산역을 중심으로 도시를 남북으로 가로지르는 교통망인 지상 철로는 모순되게도 철로 양측의 두 도시의 물리적 소통을 단절하고 있다.

본 프로젝트는 이러한 도시적 문제상황을 해결하고 미래의 도시에 대응하는 건축적 해법을 제시하고자 한다.

Theme Background

철도에 의한 도시적 단절 문제는 전세계의 철도를 끼고 성장하는 모든 도시에서 발생하는 문제점이다.

용산역 일대의 경우, 이러한 문제를 용산역의 입체 콘코스 (Concourse)가 일부 해결해주고 있지만, 3번출구방향(서측)에서 도시와의 연결성은 역의 규모 및 주변 도시의 규모에 비하여 상대적으로 열악한 상황이다.

향후 용산역 서측으로 용산국제업무지구가 조성되게 된다면 기존의 3번출구가 가지는 정면성과 연결성으로는 물리적으로나, 상징적으로나 많은 문제점을 가질 수밖에 없을 것이다.

Concept

도시와 역을 이어주는 공공보행통로를 중심으로 용산역 인근에 부족한 공공 및 문화 프로그램을 상업 및 업무 프로그램과 함께 배치하여 도시의 가로가 다양한 프로그램들과 함께 건축물 내에서 형성될 수 있도록 한다.

Design

철도의 힘에 평행하는 두 개의 선형 매스들이 역과 도시 사이의 반응에 의해 만들어지는 사람들의 동선에 따라 변화한다. 타워매스는 용산국제업무지구 마스터플랜에 순응하는 방향과 형태로 업무지구 중심에 위치한 중앙공원 방향으로 서게 된다.

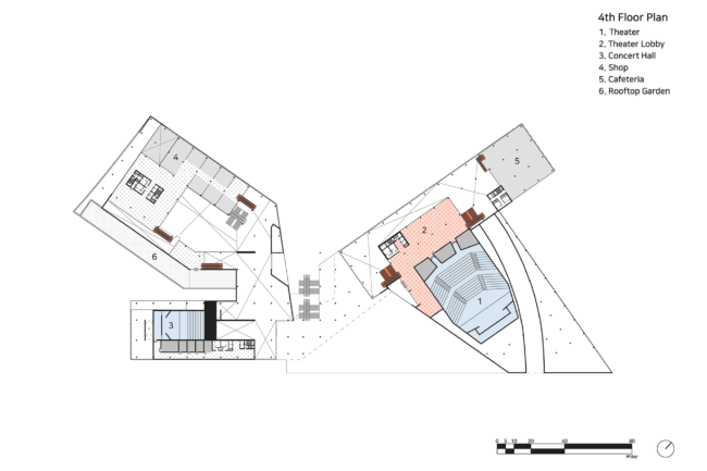
Drawings

Images

Location

Other Projects

Comments (2)

  1. Vanessa

    Hello,
    While reviewing your website: hyue-archi.com , we spotted accessibility issues that could put you at risk — and we offer a revolutionary AI-powered solution to fix them.
    We’d like to offer you a free accessibility scan, a detailed report, and your first fix — completely free.
    Start your free scan today: http://scan4.free
    Best regards,
    The PLURO Team

    In case you wish to stop getting future correspondence from me, simply fill the form at bit. ly/fillunsubform with your domain address (URL).
    Ul. Skrzetuskiego 144, Chittenango, CA, USA, 92819

  2. Tiffany

    Hello,

    Here is the top Video generator for eCommerce websites like hyue-archi.com.

    Shopify and Amazon sellers are using Letstok to save hours every week on content creation.

    It turns product pages into authentic-looking video ads automatically — helping you sell more without spending more.

    Try it free and see results for yourself.

    50% off Black Friday offer: https://www.letstok.com/

    Best,
    Tiffany Collicott
    Letstok

답글 남기기

이메일 주소는 공개되지 않습니다. 필수 필드는 *로 표시됩니다