Equal to Everyone
Urban space project(+ Cultural space Project)
양정원 / Kim Yong Seung Studio
피해자와 시민 구분 없이 모두를 위한 생명안전공원
지금까지 우리나라에서 무언가를 기념, 추모하는 건축은 그리 많지 않았고, 그러한 건축이 되었다고 해도 관리나 관심, 사회와의 연결 등이 미흡하다고 생각되었다. 추모 건축을 덩그러니 해 놓고만 마는 것이 아니라 지속적인 관심과 일상과의 연결이 필요하다. 더 나아가 피해자만을 위한 공간이 아니라, 모든 사람을 위한 하나의 공간, 추모라고 해서 어둡고 무겁기만 한 것이 아니라 주변과 연결되고 소통하는 공간을 만들고 싶었다.
역사를 잊은 민족에게 미래는 없다. 이미 일어난 일을 외면한다 해도 그 일은 이미 발생한 일이며, 그 존재가 지워지거나 없는 일이 될 수는 없다. 우리는 그와 함께 더불어 살아가는 방법을 알아야 한다고 생각한다.
세월호 참사를 가까이서 지켜본 사람 중 한 명으로서, 이러한 참사가 또다시 반복되지 않기를, 과거를 기억하고 반성하는 우리가 될 수 있도록 앞으로의 과거-현재-미래, 피해자-시민 등 어떻게 보면 상반될 수도 있는 것의 공존을 생각하고 이끌어내고 싶다.
키워드 : 연결, 공감, 공존, 소통 등
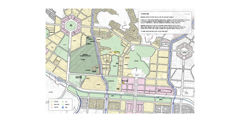
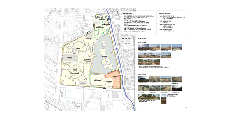
설계의 방향
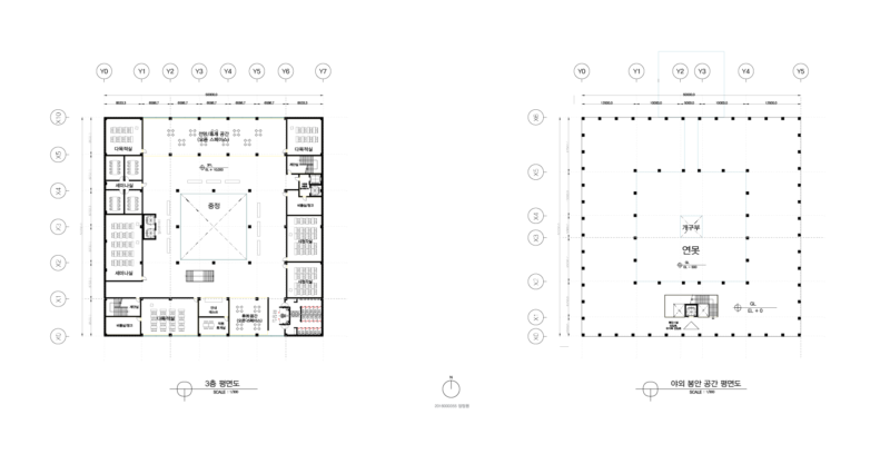
1. 피해자와 시민 구분 없이 모두를 위한 공간
2. 주변 환경을 해치지 않는, 자연친화적인 공간
3. 봉안 시설과 타 시설이 이질감 없이 어우러지는 공간
4. 의미 전달 및 일상과의 공존이 가능한 공간 등
























