INCHEON SOCIAL CUBE
SOCIAL MIX가 실현되는 문화복합공간
김영민 / Kim Yeong Min
Introduction
위치 : 동인천역 1호선
용도 : 문화&복지시설 / Culture & Welfare
층수 : B2-6F
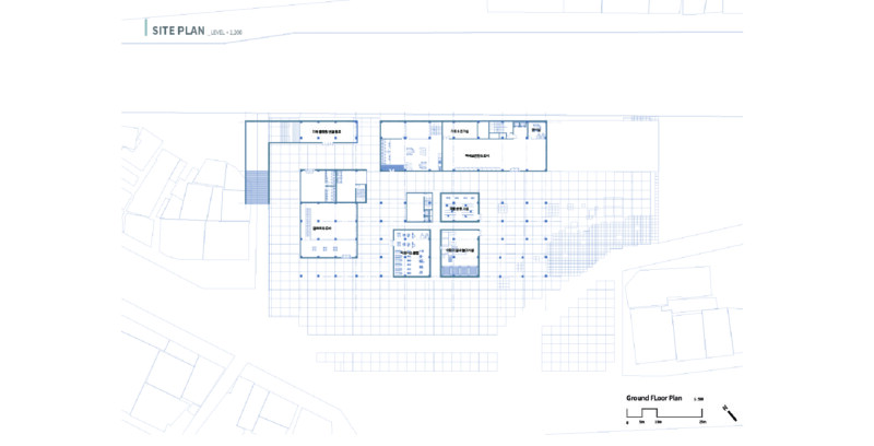
대지면적 : 8000.4㎡
건축면적 : 4470.2㎡
연면적 : 26320.4㎡
버려진 건물에 SOCIAL MIX를 실현시켜 사회문제를 해결하기위한 리노베이션 프로젝트
이번 프로젝트는 도태된 동인천을 활성화시킬 방안을 찾으면서 시작되었다. 개항기 부터 인천뿐만이 아닌 수도권의 주요 항구역할을 하던 동인천 인근은 크게 활성화된 도시였지만, 1990년대 불미스러운 화재사고와 함께 인천지역 재개발로 구도심으로 전락하였다. 이러한 시점에서 쇼핑센터의 계속되는 투자실패로 동인천역은 동인천 인근의 흉물로 자리잡게 되었다.
이러한 배경을 두고, 버려졌던 동인천역 쇼핑센터를 리노베이션 함으로서, 부족했던 주민문화 및 복지시설을 확충하여 동인천 주민간의 커뮤니티를 활성화시키고, 동인천 지역의 부흥을 이루고자 하였다.
복지시설의 이용자들은 크게 노인과 어린이, 그리고 사회 취약계층으로 정하였다. 동인천의 인구 특성상 노인의 인구비율이 크게 증가하고 있었지만, 이에 대한 복지시설은 늘어나는 인구에 대응하지 못하는 모습을 보여주었다. 더불어, 동인천의 인구들 대부분은 동인천 외부, 즉, 다른 시-도 로의 출퇴근이 잦은 모습을 보여 남아있는 어린이들에 대한 복지시설 또한 필요한 실정이었다. 이 두 계층을 메인 이용자들로 설정하여 디자인을 시작하였다.
이들, 이용자들이 간접적, 직접적으로 만남을 갖으며 생기는 긍정적인 시너지를 유도하고, 이를통해 사회문제를 해결하고자 하였으며, 사회취약계층을 위한 복지시설도 갖춘 종합문화복지 시설이 되기를 목표하였다.
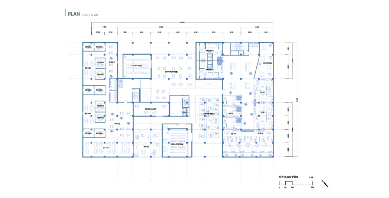
형태는 큐브에서 시작하였다. Social Mix 라는 어휘에서 Mix 에 초점을 맞췄으며, Renovation 프로젝트이기 때문에 기존 골조를 유지하며 자유롭게 섞이는 형태를 찾아야만 했다. 이를 만족한것이 큐브라고 생각하였고, 큐브의 각각의 박스에 다양한 연령층들이 이용하는 프로그램이 들어가고, 이러한 프로그램이 큐브가 섞이듯 섞여 유기적인 프로그램들이 재탄생 하는 그림을 상상하였다.

























