ISLAND, WATER AND SALT
For Islander ; Smart Water Plant Project
정유경 / Ahn Chi Won Studio
Introduction
위치 : 전라남도 완도군 완도읍 가용리 1090 (농공단지)
용도 : 인프라시설 및 문화체험시설
층수 : B1-2F
대지면적 : 7260㎡
건축면적 : 2225㎡
연면적 : 3708㎡
Agenda
“건축가가 어떻게 가뭄을 해결할 수 있을까?”
급수 취약 지역으로 소외된 섬에 안정적인 물을 공급하는 UIA 2023 CPH Global Student Summit에 전시된 프로젝트이다. 지속가능한 건축이 주제였으며 소주제로는 Climate Adaption을 선택해 진행했다. 사람들을 위한 통합형 스마트 정수장(해수담수화시설)을 제안한다. 소규모로 이루어져 각각 따로 물 공급 시설이 분산된 현재의 완도는 물이 충분한 지역과 그렇지 않은 지역으로 나뉘었고, 이러한 문제점에 대응해 집중형 물 생산 시설을 구축해야 한다고 생각했고, 집중된 물 시설에서 모듈을 활용해 주변 섬에 전달하는 방식을 새롭게 제안한다.
Theme Background
“한국의 양극화된 기후화 가뭄이 심각한 전라남도 섬”
한국의 가장 큰 특징은 아시아에서 4번째로 섬이 많다는 것이다. 하지만 지구온난화로 인해 제트 기류가 약해져 한국에는 이상기후가 나타나고 있는데, 양극화된 기후환경 데이터가 그 예를 잘 드러내고 있다. 한국의 북부지방은 폭우가, 남부지방에는 가뭄이 일어나고 있다. 특히 전라남도의 섬들이 가뭄의 위험에 노출되어 섬 사람들에게 안정적인 물 공급이 요구되는 실정이다. 이러한 문제점을 해결하고자 해수를 이용해 담수를 만들고, 그 물을 정화하는 정수시설을 설계하고자 한다. 해수를 담수로 바꾸는 과정에서 염분이 나오게 되는데, 이 염분을 건축적으로 이용해보고자 한다.
Site
“앞으로 새로운 기회가 될 완도 섬에 안정적으로 물을 공급하는 프로젝트”
최적의 사이트를 완도읍에서 찾았다. 완도읍 내 농공단지이다. 농공단지의 현황을 살펴보면 주로 진한 갈색으로 공장이 많이 분포되어 있다. 대부분 해산물을 생산하고 가공하는 시설로써 이용된다. 수많은 공업용수를 필요로 하는 농공단지임에도 저수지, 외에는 지하수 및 노후화된 상수도관을 통해 운용하고 있어 가뭄에 취약한 상황이다. 하지만 농공단지내에는 완도수자원공사 및 해양 바이오 연구센터가 존재하며, 완도의 특산품을 가공 및 배송하는 업체가 있고, 주변으로 시가지가 분포해있는 상황이다.
그 중에서도 건물이 위치한 사이트의 경우 완도수도지사와 기존의 정수시설이 함께 있는 단지를 골랐다. 단지의 위치가 한 쪽 코너에 자리잡고 있어 청정완도 바다 뷰까지 이용할 수 있는 최적의 위치였다.
Concept
“완도 농공단지 내 해조류 공장의 기존 구조를 활용한 열린 해수담수화 시설”
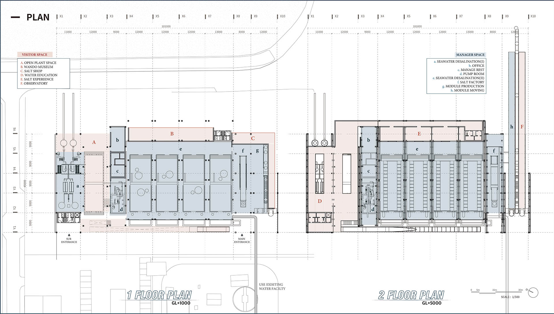
Vision : Open Water Stress Free Eco-cluster
해수면 상승으로 인하여 기후 변화에 타격을 받을 섬에 안정적인 식수를 공급하고 부산물인 소금을 이용해 지역 특산물인 해조류를 보존하며 식량을 제공해 섬 사람들의 지속 가능한 미래를 위한 총괄적인 정수 시설을 설계한다. 또한 기존 국가 기반의 인프라 시설의 경우 사람들에게 개방이 되어있지 않지만 관리자의 공간과 일반인의 공간이 분리가 될 경우 충분히 개방 가능하다고 판단했으며, 인프라 시설만이 지닌 색다른 공간감과 문화체험시설로써의 활용가능성을 보여주는 프로젝트이다.








































