PACTORY
Private + Factory
도원현 / Do Won Hyun
Introduction
위치 : 서울특별시 마포구 서교동 357번지 일대
용도 : 복합문화시설 / Industrial
층수 : B1 – 3F
대지면적 : 4,369㎡
건축면적 : 2,540㎡
연면적 : 6,780㎡
Industry 4.0은 기존의 노동자 중심의 공장 형태에서 벗어나 로봇 중심의 새로운 공장 형태의 가능성을 만들었다. 공장은 자동화 시스템과 프로그래밍을 통해 작동해 최소한의
규모만을 가진 채 운영되고 쉽고 빠르게 디자인 수정이 가능하도록 만들었다. 이러한 구조는 도심지 내로 들어올 수 있게 하고 ‘나만의 스타일’을 추구하는 소비자들의 요구에 즉각적으로
반응하면서 개성있는 제품을 제공해준다. 또한 다양한 프로그램과 연계되어 공장은 하나의 놀이 공간으로 작동한다.
4차 산업으로 인해 변화하는 건축에 대한 고민에서 설계를 시작하였고, 그 중 ‘스피드 팩토리’ 라는 개념에 주목하였습니다. ‘스피드 팩토리’는 아디다스의 실험 프로젝트의 일환으로, 순수 생산시간만 따질 경우, 5시간 내에 상품을 생산할 수 있게 함으로써, 기존의 18개월의 공정과정을 단 하루로 줄이며, 신기술을 통해 자유로운 디자인과 즉각적인 피드백이 가능하도록 만든 공장 프로젝트입니다. 또한 다음과 같이 솔 제작, 천 가공, 종합 가공을 위한 장치를 제외하고 추가적인 공간 확보가 많이 필요하지 않아 협소한 공간 내에서 생산이 가능하게 하였다고 합니다.
이러한 기술은 기존의 노동자 중심의 넓은 공장에서 벗어나 소비자 중심의 공장 유형의 가능하게 만들었다고 생각하였고, 더불어 맞춤 제작의 수요가 많아지는 사회 트렌드에 적합한 모습을 가지고 있다고 생각하였습니다. 그래서 저는 아디다스의 ‘스피드 팩토리 ‘기술을 이용한 도심지 내 공장을 계획하고자 합니다.
사이트의 경우, 트렌드에 민감한 소비자가 많은 홍대로 선정하였고, 다양한 문화 활동 중 인터렉션이 중요한 홍대의 소극장 문화를 끌어드려 공장의 소비자들이 공장뿐만 아니라 소극장과 인터렉션하면서 시간을 보낼 수 있도록 하였습니다.
전체적인 프로그램을 보면, 맞춤 제작이 가능한 공장과 주문 제작 후, 시간을 보낼 수 있도록 개인 실과 공용 휴식 공간이 있는 프라이빗 라운지와 소극장 그리고 보조 프로그램들로 구성하였습니다.
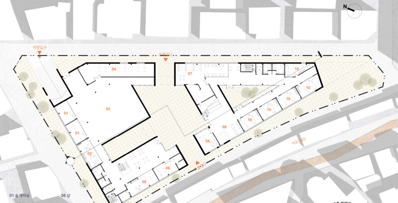
전체적인 매스는 4번 스텝을 통해 구축하였습니다. 첫번째로 블록에 형태에 맞춰 7.5m의 최소한의 폭을 가진 프로그램 띠를 구성하였고 다음으로 중정을 향해 매스를 확장하여 추가적인 동선과 프로그램을 담을 수 있게 하였습니다. 그리고 중정 공간을 도시를 향해 열리게 함으로써 중정 공간의 공공성을 확대시키고자 하였고 마지막으로 단절된 매스들을 연결하여 전체적인 동선이 구성되도록 하였습니다.
전체적인 프로그램은 저층부에 공장과 맞춤제작을 위한 공간, 상층부에 공장과 소극장을 위한 오피스로 계획을 하였습니다.
도면을 보면, 7.5m의 폭의 프로그램 띠는 오피스를 비롯한 건물의 시스템을 유지하기 위한 보조 프로그램이 위치하고 확장된 3개의 매스는 공장과 소극장 그리고 리싶을 위한 공간으로 계획하여 팩토리의 주요 프로그램을 담았습니다.
또한 공공성이 확보된 중정을 통해 건물에 진입을 하게 만듦으로써, 방문객이 전체적인 공간을 인지를 한 후, 공간을 경험할 수 있게 하였습니다.
마지막으로 전체적인 동선을 보면, 방문객은 건물의 중심부분에서 움직이게 하여 공장과 소극장을 비롯한 다양한 프로그램을 경험할 수 있게 하였고, 오피스 사용자는 건물의 외각부분으로 움직이게 계획하여 사용 목적에 따라 동선을 분리했습니다.
.
 
					



















 
         
         
         
         
         
        
이영욱
도마니아 수고했으!!!