INTERPLAY
Interactive IT Museum
이수빈 / Kim Yong Seung Studio
Introduction
위치 : 경기도 성남시 분당구 삼평동 626
용도 : 복합문화시설
층수 : B3 – 4F
대지면적 : 6,959㎡
건축면적 : 2,232㎡
연면적 : 14,100㎡
Agenda
판교테크노밸리는 IT 업종을 중심으로 하는 첨단산업단지이다. 현재 이곳에는 ‘콘텐츠거리’라는 문화공간이 조성될 예정이나, 이는 주로 광장 조성 등의 단순한 거리 조성 사업에 그치고 있다.
이 프로젝트에서는 기존의 박물관처럼 역사와 기록을 나열하여 정보를 제공하는 전시뿐만 아니라, IT 기술을 활용하여 무형의 전시물과 방문객이 상호작용할 수 있는 새로운 체험형 전시 공간을 구상하고자 한다.
Theme Background
국토교통부 등 국가에서는 ‘문화가 있는 산업단지 조성‘을 위한 전담 조직을 발족하고, 국가산업단지 조성 시 계획 수립 단계부터 문화시설이 배치되도록 추진하고 있다. 첨단산업단지인 판교테크노밸리에서도 R&D와 문화예술 공연이 어우러진 복합 공간을 형성하고자 하며, 2021년에 제1·2판교테크노밸리 등 일대가 성남 판교 게임·콘텐츠 특구로 지정되었다. 이러한 산업단지 내 문화시설 조성과 판교 일대의 게임콘텐츠 특구 지정의 결과로, 판교테크노밸리에서는 게임과 연계되는 문화공간인 콘텐츠거리가 2024년에 완공될 예정이다.
Design
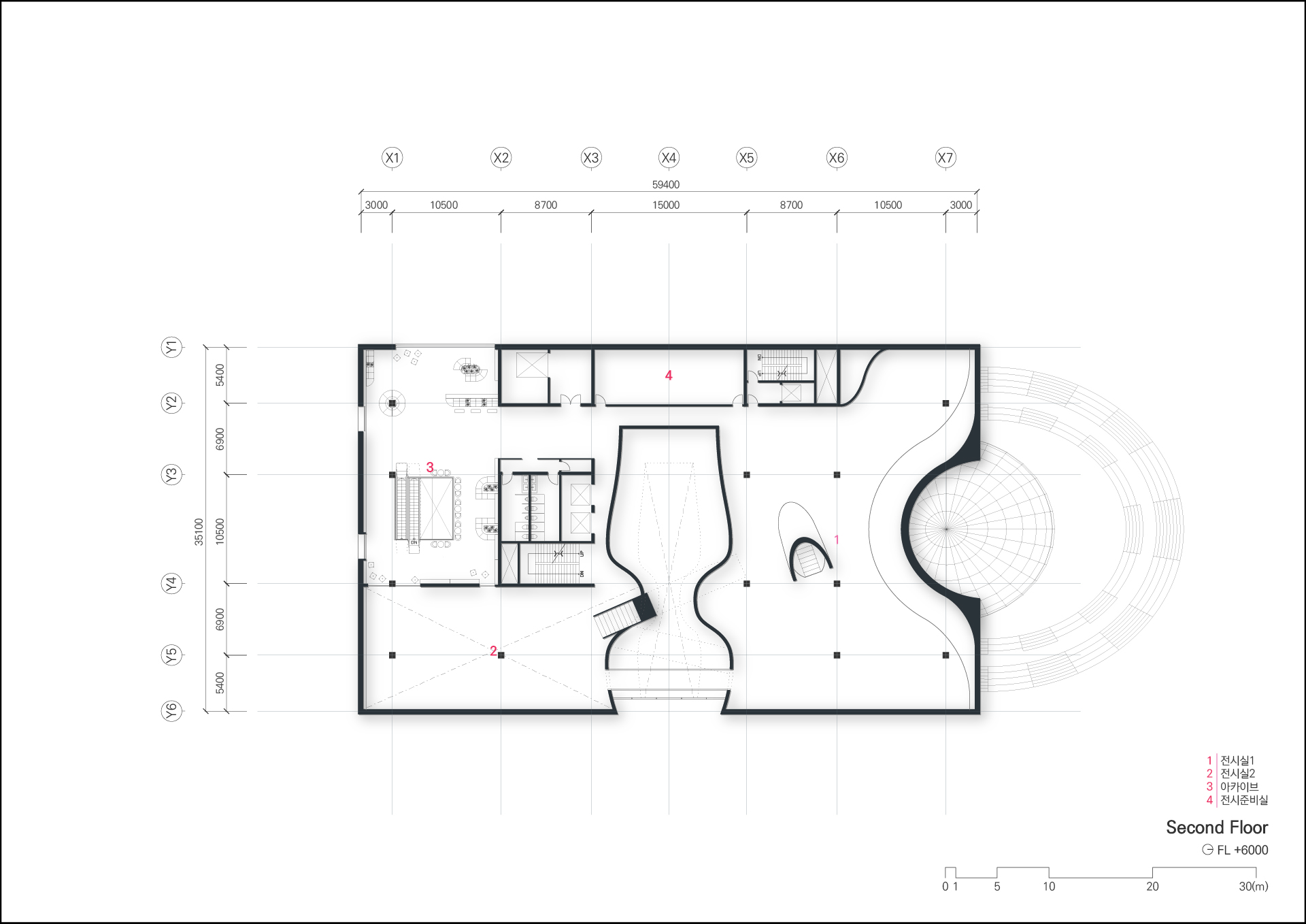
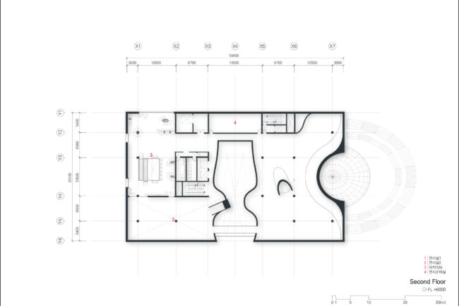
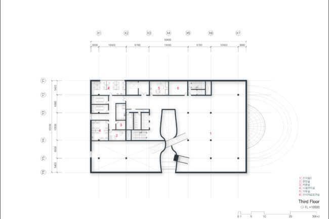
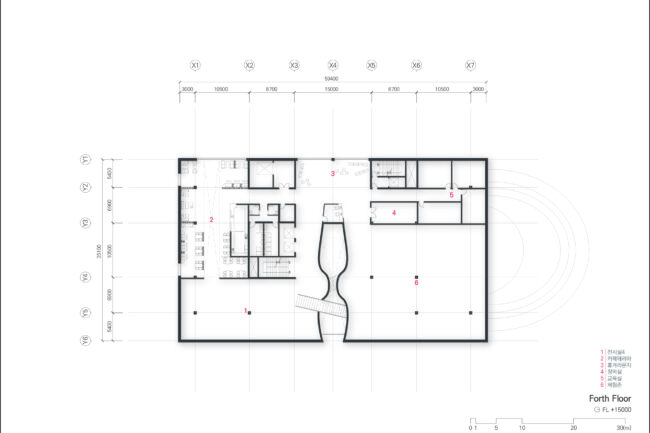
현재 사이트는 콘텐츠 거리라는 축과 중앙에서 만나게 된다. 중앙 공간은 전면이 유리로 이루어진 대공간으로, 건물 내외부에서 전시와 상호작용할 수 있도록 설계되었다. 이 대공간인 메인홀을 기준으로 빛이나 필요공간에 따라 매스가 디자인되었으며, 메인홀은 많은 변화가 일어나는 기획전시 공간으로 곡면으로 이루어진 벽이나 공중에 미디어 전시 및 홀로그램 전시가 가능하게 구성되었다.
또한 역사적으로 존재해왔던 법정 공간들과 전세계의 Assembly공간들을 스터디 하면서 새롭제 제시할 법정공간의 형태로 U 형태를 채택하였습니다. 이는 민주주의 의회들, 또 지속적으로 법정 형태에서 사용되어왔던 형태입니다.



















