Reboot Nambu
Renovation of Seoul Southern bus terminal with propose new building type
조창현 / Lee Kang Jun Studio
Introduction
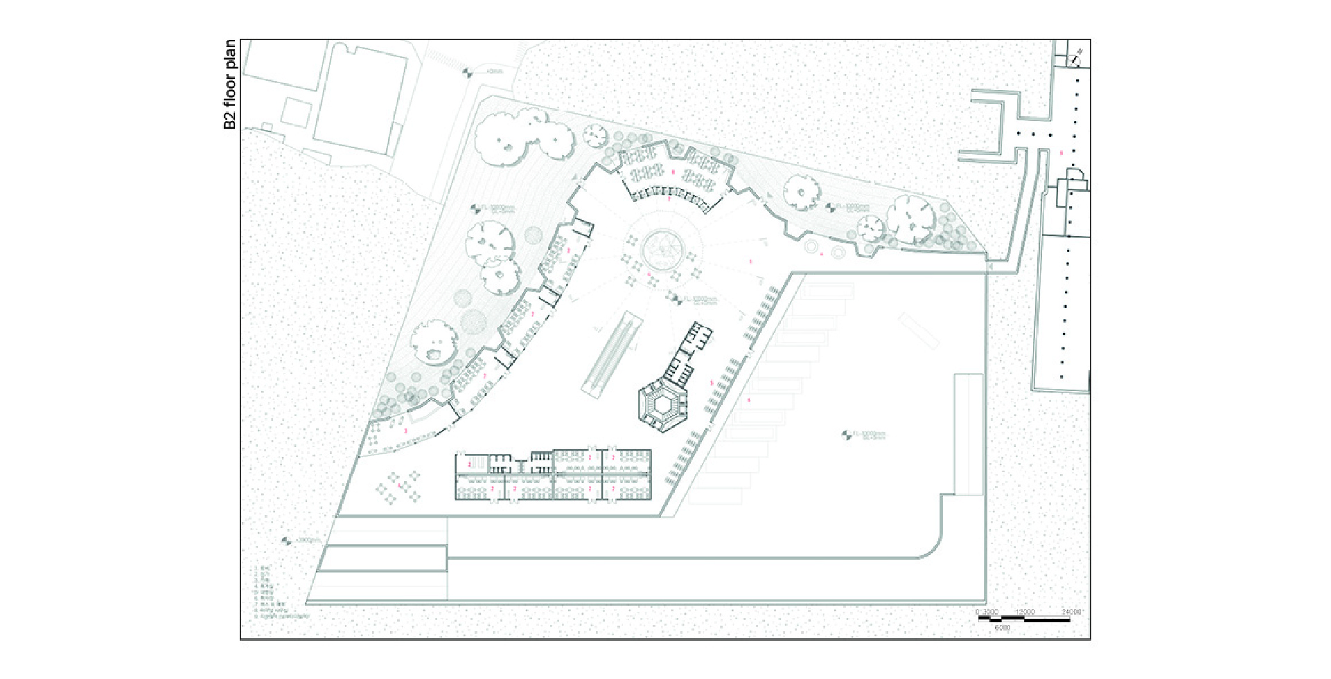
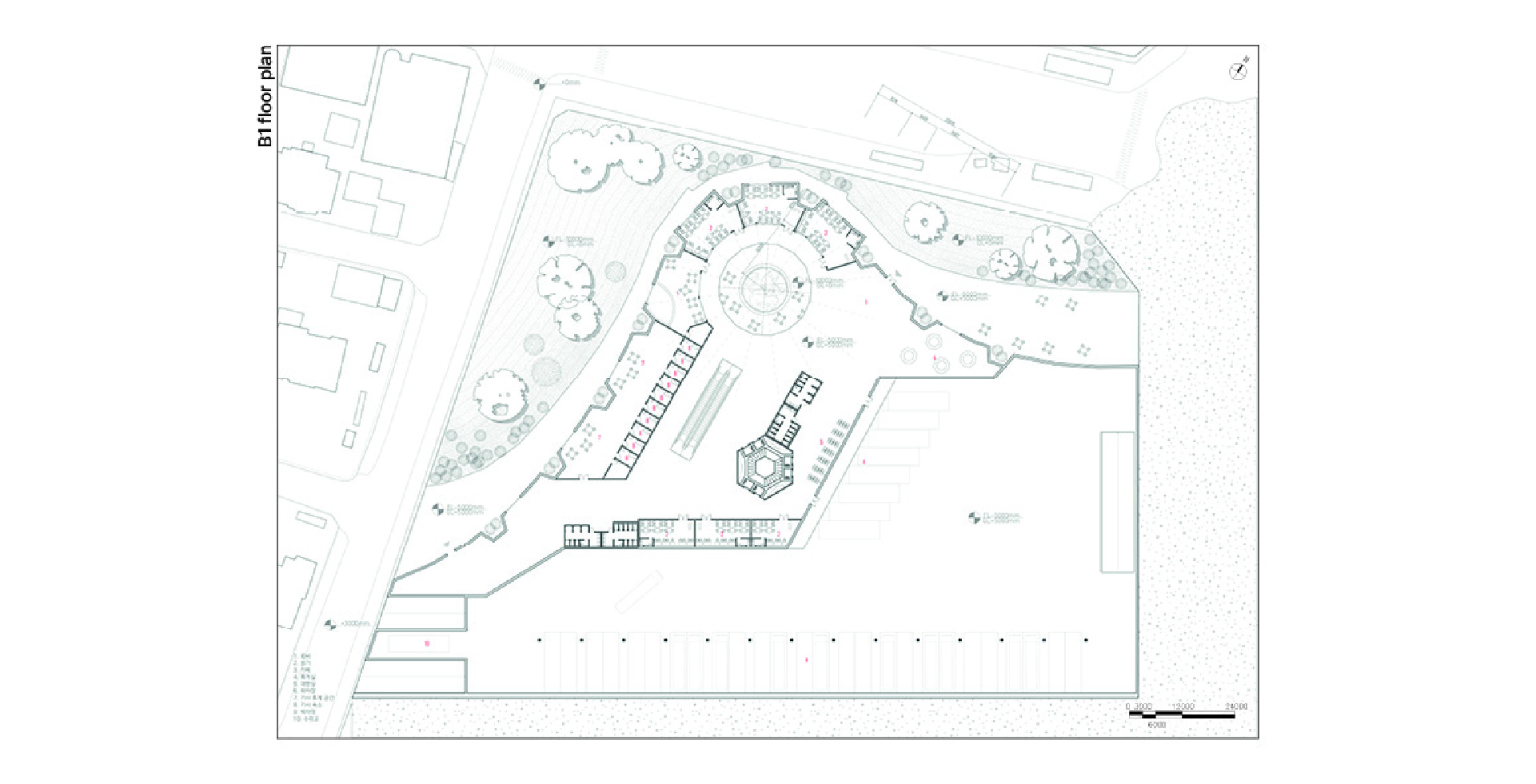
위치 : 서울특별시 서초구 효령로 292
용도 : 운수시설, 주거시설
층수 : B2 – 36F
대지면적 : 16,687㎡
건축면적 : 6,508㎡
연면적 : 130,210㎡
Agenda
“한강의 기적이라고 불리던 시절 서울은 급격한 경제성장과 함께 대부분의 도시 인프라를 건설했다. 서울 전체 도시 인프라 70% 이상은 1970년에서 1980년에 지어졌고 40년이 지난 지금까지 당시 모습을 유지하고 있다.
도시에서 터미널은 어떤 역할을 하고 있을까? 터미널에 들어선 이들은 목적지에 도착하기 전까지 주변 공간과 단절된다. 터미널과 터미널을 통해 물리적으로 떨어진 두 공간이 접하게 되는 셈이다. 건물의 스케일로 본다면 엘리베이터와 비슷한 역할을 하고 있다. 이러한 관점에서 터미널은 도시의 경계로 기능한다.
경계에서 우리는 많은 것들을 경험한다. 바닷가에 서야지만 밀려오는 파도를, 수면에 부유해야만 일렁이는 물결을 느낄 수 있다. 서울의 경계인 남부터미널에서 이용객들은 어떤 경험을 하고 있을까? 30년전과 변함없는 공간은 서울을 낡은 도시로 기억하게 만들고 있다.”
Theme Background
서울 대부분의 기반시설은 40년 전에 지어진 모습 그대로 여전히 사용되어지고 있다. 그 중에서 특히 버스터미널의 경우는 코로나 이후 사용자가 크게 감소하고 현재까지도 사업성 확보에 어려움을 겪고 있다. 민간사업으로만 이루어지는 터미널의 특성상 이전까지의 운수업만으로는 더 이상 사업을 유지하기가 어려워 최근 수도권인 성남버스터미널마저 문을 닫게 된 실정이다.
서울시 내 4개의 터미널 중 리노베이션을 성공적으로 마친 고속버스터미널 (https://www.donga.com/news/Economy/article/all/20210630/107727416/1) 과 재개발 계획안이 발표된 상봉시외버스터미널 (https://biz.chosun.com/real_estate/real_estate_general/2022/04/14/RDLBGQATTRBMBGAKAZIUTFCMBY/) , 동서울버스터미널 (https://www.koscaj.com/news/articleView.html?idxno=230019) 과 달리 재개발 계획이 없는 서울남부버스터미널 리노베이션을 복합개발을 통해 진행하고자 한다.
Design
주거층을 디자인하면서 모듈러를 사용했다. 기존의 직사각형의 bay 시스템이 아닌 외부공간을 내부로 최대한 끌어들여 V자 형태의 주거공간을 만들어 노인들이 실내에서도 아늑한 테라스를 즐길 수 있도록 했다. 8개의 주거모듈이 코어를 중심으로 회전하며 한 층을 구성하고 각 층이 엇갈리며 쌓여 타워를 구성하도록 해 보이드 공간이 파사드의 패턴으로 읽히게 디자인했다. 포디움에서도 이러한 보이드의 엇갈림을 이용해 평면과 입면을 계획했고 단차를 극복하며 사이트와 자연스럽게 이어지게끔 매스를 대지 안쪽으로 들였다.
















































































