Re:main the Gwangju Station
Gwangju Station Revival Project
신지민 / Ahn Chi Won Studio
Introduction
위치 : 광주광역시 북구 무등로 235 / 기존 광주역 부지
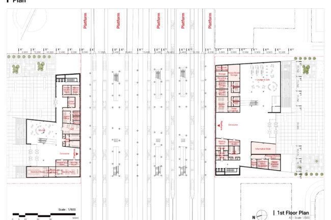
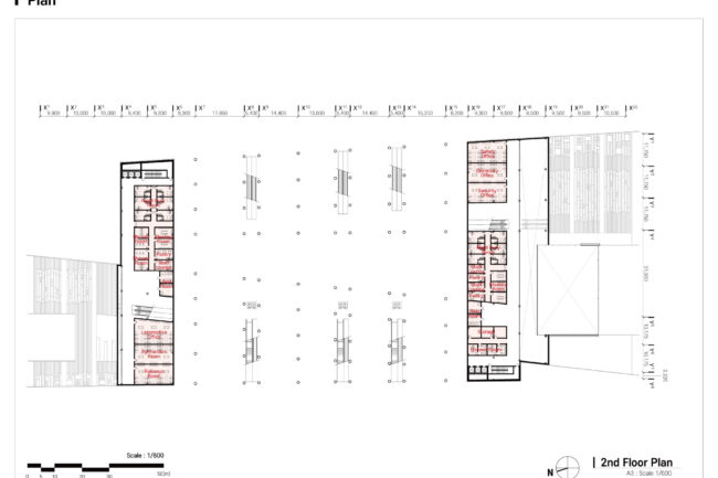
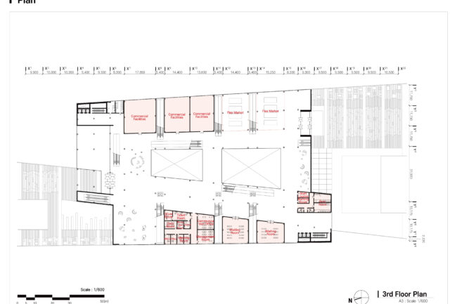
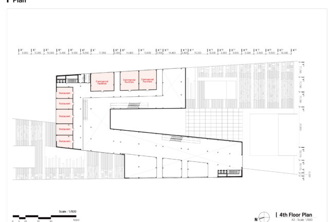
용도 : 철도시설
층수 : 1F – 6F
대지면적 : 206,670㎡
건축면적 : 16,840㎡
연면적 : 34,955㎡
Agenda
광주역은 KTX가 운행이 중단이 된 이후, 도심공동화 현상과 인프라가 무너지며 광주역 일대가 침체되고 있다. 이로 인해 광주역의 존치 여부에 대한 지속적인 이야기가 나오고 있다.
또한 광주역은 북구와 남구를 단절하고 있으며, 광주역 주변으로 보행환경이 취약하다.
현재 광주역을 중심으로 달빛철도, 뉴딜사업, 경전선 전철화 사업, 도시철도 2호선 등의 사업이 진행되고 있으며, 이러한 잠재력을 바탕으로 기존 광주역의 기능에 대한 의문을 품게 되었다.
그래서 광주역의 철도 역사 기능을 복원하고, 보행 환경에 초점을 맞춰서 광주역이 광주의 새로운 랜드마크로 작동할 수 있는 방향으로 프로젝트를 진행하였다.





























