SEOUL POST POINT
FUTURE POST OFFICE WITH COMMUNAL LOGISTICS
이재은 / Lee Jae Eun
Introduction
위치 : 서울시 영등포구 대림로 85 / 영등포구 도림로 429 / 용산구 이촌로77길 9
용도 : 공공복지시설 및 우체국 / Infrastructure, Urban
층수 : 1 – 3F
대지면적 : 163.9㎡ / 227.69㎡ / 192.85㎡
Agenda
우체국은 쇠퇴하고 있고, 우편 산업은 축소되고 있다.
반면 물류업계와 택배업계는 급격하게 성장하고 있고, 그에 따라 여러 가지 문제를 야기하고 있다. 문제 해결을 위해 도시 내 물류 거점 역할을 할 ‘미래 우체국 프로토타입’을 제안한다. 30년 이상 노후화된 서울의 소형 6급 우체국을 리모델링하여 향후 새로운 건축유산으로 건물유형을 남기려 한다. 새로운 우체국은 도심 물류 거점 역할을 하면서 대면 소통의 중심지로 지역마다 만남의 장을 만들어 갈 예정이다.
Current Condition
옛 표준우체국사 설계 지침을 분석하며 세 가지 우체국 설계 유형을 찾게 되었고, 인지성이 높은 곡면과 벽돌타일을 사용한 것에서 소형 우체국사를 공공건축물의 한 유형으로 분류할 수 있게 되었다.
Program Concept
과거에는 우체국이 소통의 창구, 연락 전달자의 역할을 했다. 이제는 스마트폰이 그 역할을 대신하고, 우체국은 ‘택배 접수 창구’가 되었다. 미래에는 소통의 주최자로서 대면 만남의 장을 만드는 역할을 해야 할 것이다. 디지털 세대와 디지털 소외 세대 간의 격차를 줄이는 대면 만남이 필수적일 것이다. 또한 각 행정동, 행정구역 내에 있는 우체국을 통해 주민들 간의 소통 부재를 해결할 수 있을 것이다.
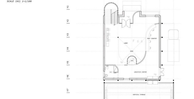
Module Types
우체국이 모든 지역에 균등분포하고 있지만, 각 지점들은 모두 다른 조건의 사이트에 위치해 있다. 공통점도 있는 반면 몇몇 유형으로 묶이는 차이점이 존재한다. 사이트 요건에 따라 미래의 우체국들은 일정한 유형으로 프로그램이 짜이고 매스가 구성되고, 이것을 구체적으로 제안하기 위해 세 지역의 우체국에 시범 설계 사례로서 모듈을 조합 및 배치하였다. 기존의 표준설계도처럼 미래 우체국을 위한 새로운 표준설계도를 제시한 것이다.












































장현수
정말 잘했어요!
배건우
우체국여왕 이재은 졸전 수고했다!
김지연
유익한 전시 잘 보고 갑니다 재은~ 졸전 준비하느라 정말정말 고생했어요 멋있는 전시 보여줘서 고마워요!
최주희
작품 잘보고갑니다