SHARING DIPLOMACY
Partnership for Change
오한나 / Kim So Young Studio
Introduction
위치 : 서울특별시 용산구 동빙고동 10-5 일부
용도 : 공공업무시설
층수 : B1 – 4F
대지면적 : 9,966.4㎡
건축면적 : 5,251.8㎡
연면적 : 23,998.5㎡
Agenda
이 프로젝트는 여러 나라의 대사관이 특정 공간을 시민들까지도 공유하며 파트너십을 이루는 공유 대사관이다.
UIA가 주최한 Congress의 주제에서 “PARTNERSHIP for CHANGE”에 해당하며 이것은 우리가 지속 가능한 미래를 위해 협력함으로써 이루어지는데 이러한 변화를 구현하기 위해서는 정부와 민간 그리고 시민 사회 간의 파트너십이 필요하다. 이때, 우리나라와 다른 나라 간의 파트너십을 나타내는 아이콘으로 대사관을 생각했다.
앞서 말한 목적을 달성하기 위해서는 보안이 철저한 기존의 대사관은 변화가 필요하다고 생각했다. 그러한 점을 찾고자 대사관 측과 직접 소통을 하며 프로젝트를 진행했다.
그중 일본 대사관 측의 의견을 빌어 말하자면, 원활한 소통을 위해서는 나라 간의 소통도 중요하지만, 각국 시민들끼리의 소통이 더 중요하다.
그래서 여러 대사관을 모은 이곳에서 여러 나라와 우리나라의 활발한 교류가 이루어질 예정이다.
Theme Background
현재 대사관 현황을 보면, 한국에는 총 114개의 대사관이 존재하고 크게 두 가지 유형으로 나뉜다. 해당국의 영사관과 같이 사용하는 것을 포함해 하나의 건물을 독점하는 경우와 오피스 빌딩의 한 부분을 빌려 사용하는 경우이다.
대사관은 서울 안에서 크게 두 군데로 나뉘어 분포하고 있으며, UIA의 기준으로 나눈 전 세계의 다섯 가지 구역의 대사관 현황이다. 현재 절반 이상인 61개국이 빌딩을 공유하며 사용 중으로 하나의 빌딩에 최대 7개국까지 존재한다. 이러한 61개국 중에서 개선이 필요한 대사관들을 직접 찾아가서 의견을 물어보았고 결과적으로 다른 대사관들과 공간을 공유하는 것에 호의적이고 대중과의 소통에 긍정적인 나라를 선택하게 되었다.
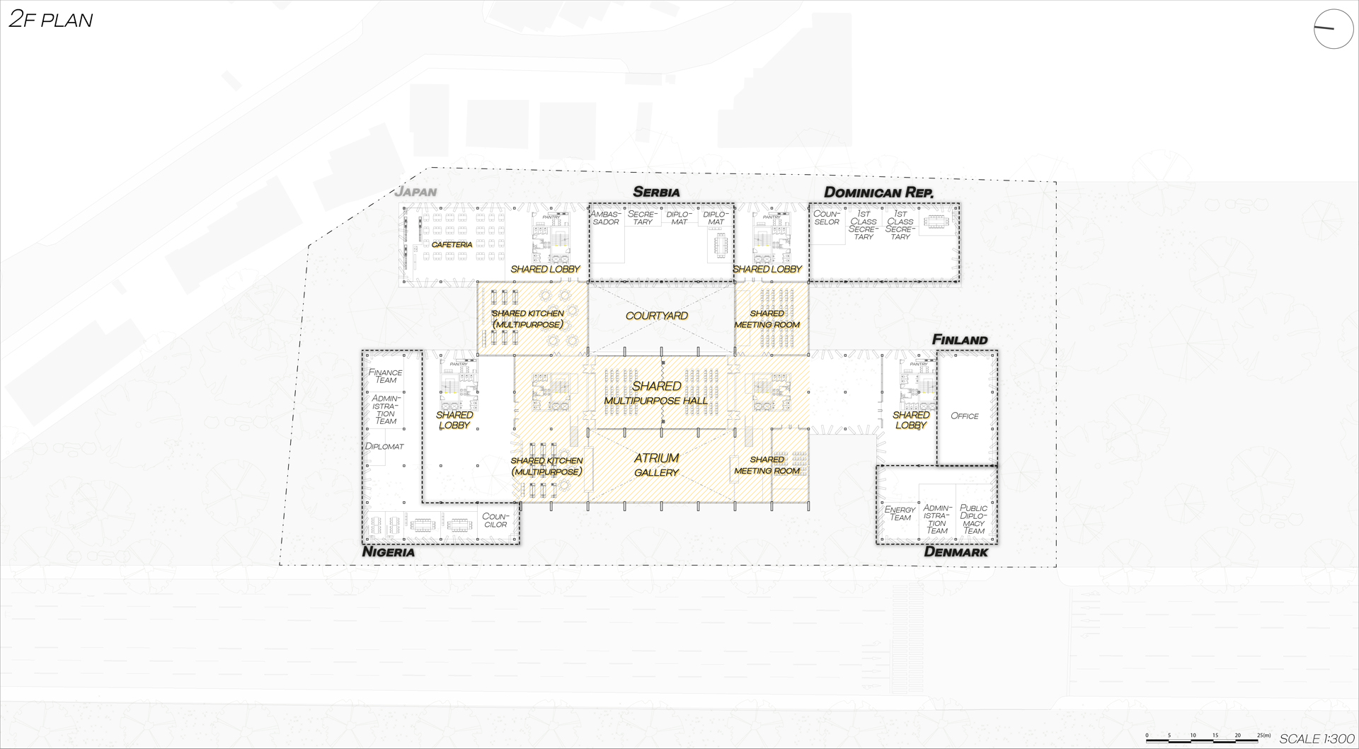
Drawings
공유 공간을 중심으로 6개의 대사관을 배치하여 2,3층 중앙의 공유 회의실과 공유 주방에서 교류가 이루어진다. 1층에 공유로비만 배치하여 면적 최소화를 통해 용산공원, 사이트 양옆의 공원과 녹지 연결성을 줌과 동시에 대중에게 개방한다.
1층 중앙에 6개국의 비자 업무만을 위한 공유 공간과 주변에 대기공간으로서 아트리움에 갤러리와 카페, 카페테리아가 배치된다. 2층의 공유 다용도 홀은 대중에게도 열린 연회장이며 공유 주방에서는 시민이 6개의 나라 음식을 배울 수 있는 프로그램이 가능하도록 유연한 공간으로 구성된다. 각국의 대사관 기존 면적을 기준으로 각 실면적을 산정하여 보안을 기준으로 위치와 층이 결정된다.


























