Use Earth, For Earth
지속가능한 흙건축 문화복합공간
이상원 / Lee Sang Won
Introduction
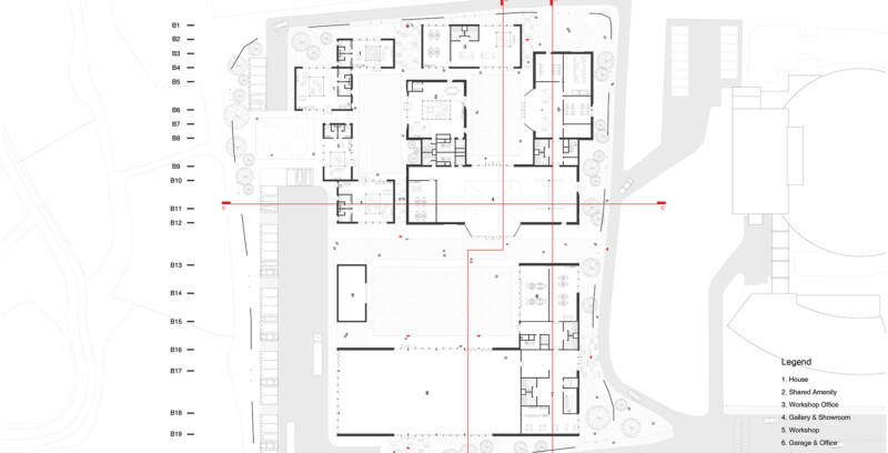
위치 : 전북 부안군 보안면 신복리 4-9, 5-3, 6, 13
용도 : 복합문화시설(공장, 주거시설, 문화시설) / Infrastructure, Culture & Sports, Residential
층수 : 1-2F
대지면적 : 10,452㎡
Agenda
최근 IPCC 연구에 따르면, 파리 기후협정의 목표에 도달하지 못하면서 2050년까지 지구의 기온이 1.8도에서 3도사이로 상승할 것이라고 한다. 우리는 이제 ‘어떻게 막을 것인가’에서 ‘최악의 상황을 어떻게 막을 것인가 그리고 어떻게 함께 살아갈 것인가’로 전환되어야 한다.
통계에 따르면 건축은 전제 에너지 소비의 23%를 차지하고, 전체 탄소 배출량의 42%를 차지한다. 그 중 콘크리트 생산과 관리만으로 탄소 배출량의 8%를 차지한다. 시멘트 1톤을 생산하기 위해서는 이산화탄소 1톤이 요구된다. 또한, 콘크리트에 들어가는 자갈, 모래, 석회의 지나친 채굴은 국내 공급이 어려워져 수입에 의존하게 되었고 이는 여러 섬들이 지도 상에서 사라지게 만들었다. 콘크리트를 대체할 지속가능한 재료를 찾는 것은 탄소중립시대로 향하는 우리에게 가장 어려운 과제가 될 것이다.
그러므로 21세기의 건축활동은 자연환경과 조화를 위하여 친환경적인 재료를 사용하고, 에너지 절약 재료를 개발하며, 건설 폐기물을 재생하고, 다시 사용 가능한 재료를 찾는 방향으로 가야 할 것이다. 이런 시대적 배경을 생각할 때, 자연과 함께하고, 에너지를 절약하며, 탄소가 적게 나오고, building sick 문제를 풀어내며, 쾌적한 실내환경을 유지하고, 자원이 절약되는 건설재료로는 흙이 가장 적합할 것이다.
Theme Background1
흙은 암석의 붕괴나 유기물질의 분해에 의해 생성되는 다른 크기 입자들의 집합체이기 때문에 흙 입자 사이에는 공기와 물이 있다. 건축적 재료로서 흙은 많은 장점을 가지고 있다. 기존 콘크리트와 여타 재료와 다르게 가장 큰 장점은 재사용 가능하다는 것이다. 흙을 건축적 재료로 사용하기 위해서는 강도발현이 필요하다. 강도발현은 물리적 방법과 화학적 방법으로 구분된다. 이 두가지 모두 소성하지 않고 물리적 힘과 혼합하는 재료만으로 가능하다.
한국의 황토는 전 국토 어디서든 쉽게 볼 수 있다. 황토는 전국에 고르게 분포하지만 주로 서남부 해안을 따라 산지에 퇴적되어 있고, 품질이 좋다. 황토 관련 산업과 공장은 전국 곳곳에 있지만, 매장량이 많고 품질이 좋은 남부 지방에 많은 것을 볼 수 있다.
Theme Background2
흙 건축 공법은 개체식, 일체식, 보완식 등 크게 3가지로 분류할 수 있다.
많은 공법 중 우리나라의 기후와, 현재에 보편적으로 사용되는 공법을 고려하여 고강도 흙벽돌과, 흙다짐 공법에 집중하였다.
Site
부안군은 고려시대부터 토기가 만들어진 지역이다. 지금도 가마, 도자기 등 유적과 유적지가 남아 있다. 이것은 이 주변의 흙의 질이 좋다는 것을 의미한다. 현재에는 도요지를 기념하고 알리기 위해 부안청자박물관이 있다. 또한, 부안 주변에는 황토 관련 산업과 공장이 많다. 주변 인프라와 연계하면 더욱더 큰 시너지를 낼 수 있다.
Program
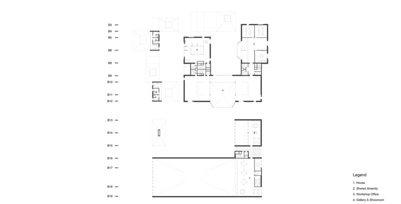
우리나라 흙건축의 보편화를 위해서는 자동화된 설비로 만들어진 Prefab 흙다짐 벽과 고강도 흙벽돌을 생산하는 인프라 시설, 흙 건축이 구시대적 유물이 아닌 미래의 지속가능한 건축이라는 것을 보여주고 체험하는 문화공간, 그리고 공장 노동자들이 거주하는 주거공간을 계획했다.
각각의 서로 다른 세가지 프로그램을 연결하기 위해서는 외부공간의 역할이 중요하다. 각 프로그램의 외부공간은 내부 프로그램이 확장될 수도 있고, 새로운 프로그램이 만들어질 수도 있다. 또한 각 프로그램을 연결하는 공간이 될 수도 있고, 단절시키는 공간이 될 수도 있다.
Design
흙 건축은 비와 눈 등 물로부터 약하다. 방수를 했다고 하더라도 수분에 긴 시간 동안 노출될 크랙이 갈 수 있기 때문에 물로부터 보호가 필요하다. 첫번째는 바닥에 위치한 콘크리트이다. 지면과 건축물 사이 콘크리트 플레이트를 만들어 지면에 고인 물과 튕겨지는 물로부터 보호한다. 두 번째는 지붕이다. 비나 눈이 내렸을 때, 수분이 건물에 머무는 시간을 줄이고 빠르게 제거되게 하는 것이 중요하다. 평평한 지붕보다는 경사나 아치의 지붕을 활용하여 물을 빠르게 제거할 수 있다. 지붕의 경사에 따라서 건축물의 형태가 결정되고, 중정 같은 공간이 만들어진다.
 
					















 
        
         
         
         
         
         
         
         
         
        




















 
         
         
         
        