WAVE TRANSFER
수암천공원과 연계된 안양시 복합환승센터 건립 프로젝트
김휘주 / Lee Kang Jun Studio
Introduction
위치 : 경기도 안양시 만안구
용도 : 복합환승센터
층수 : B2 – 3F
대지면적 : 23,430㎡
건축면적 : 16,530㎡
연면적 : 22,670㎡
Agenda
현재 안양시의 시외/고속버스 정류장은 5개로 나뉘어져 있다. 이를 통합함과 동시에 안양역과 연계해 복합환승센터를 계획하고 수암천공원과 연계되어 시민들을 위한 공공복합문화공간을 창출해내고자 한다.
Theme Background
현재 안양시의 시외/고속버스 정류장은 안양역 시외버스 정류장, 안양시외버스 정류장 상/하행, 범계시외버스정류장, 호계동시외버스정류장 이렇게 5개로 나뉘어져 있는데 이에 반해 비슷한 시 규모인 안산시나 시흥시가 버스터미널이 위치하고 있다. 5개로 나뉘어진 정류장들은 각각 운행하는 노선이 달라 시민들의 이용에 불편을 겪고 있다. 1993년부터 안양시에서는 여러 차례 버스터미널의 건립을 추진했다. 그러나 부지나 예산의 문제로 여러 차례 무산되었었다. 그러나 2022년, 24년 동안 방치되었던 안양역 시외버스정류소 뒤에 위치한 원스퀘어 건물이 철거가 확정되면서 부지확보의 문제가 해결되어 이 곳에 복합환승센터를 계획하려 한다.
현재 터미널은 수익성악화의 문제로 폐업이 진행되고 있으나 교통약자 이동편의를 위해 터미널은 유지되어야 하는 실정이다. 그래서 중소도시 연결 및 교통약자 이동권 보장을 위해 공공성이 필요하기때문에 공영터미널이 늘어나고 있다. 따라서 안양시복합환승센터 또한 공영터미널로 계획됨과 동시에 안양시에 부족한 생활권 공원과 연계되어 시민들을 위한 공간으로 만들어져야 한다.
Concept
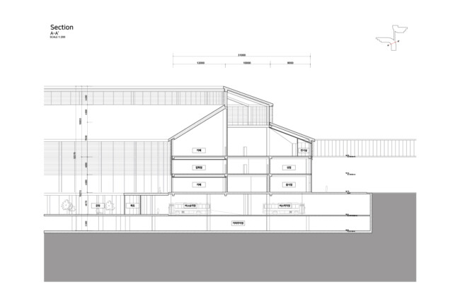
수암천 길을 따라 걷다보면 자연스럽게 복합환승센터로 접근하게 된다. 수변공원을 지붕위로 연장하여 도시 광장 및 공원의 역할을 한다. 대로변과 맞닿은 면에는 상업 및 문화시설을 넣어 도시의 조직과 어울리게 했다. 형태는 사이트 모양을 따라 만들어 도시의 조직과 어울리게 했으며 지붕별로 높이와 길이를 다르게 하여 새로운 랜드마크로서의 형태를 갖추게 했다.
Site
- 환승체계_ 1호선과 ktx가 지나가는 안양역이 대지와 마주보고 있고 400m 이내의 정류장 수는 22개로 36개의 버스노선이 위치하여 안양 내외로 환승이 가능하다.
- 원스퀘어 건물 철거_ 2022년, 24년 동안 방치되었던 안양역 시외버스정류장 뒤에 위치한 원스퀘어 건물의 철거가 계획되었고, 2023년 3월 철거가 완료되었다.
- 수암천 도시하천 정비사업_ 수암천 주변지역은 유동인구가 6만명 이상인 안양시 구도심 최대 상업지역이나 슬럼화된 주거지 및 상업지역, 복개로 인한 하천활용도 저하 등의 이유로 안양시의 됫경쟁력 장애요소로 작용하고 있다. 이에 하천을 복개하여 하천정비 및 주변공간을 시민들의 공간으로 재창조하고자 한다. 2024년 완료될 예정이다.
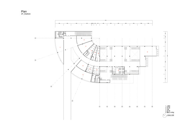
Drawings
터미널 건물의 수암천공원을 바라볼 수 있는 곳에는 북카페를, 안양역 건물의 철도를 바라볼 수 있는 곳에는 카페를 두어 다양한 뷰를 확보했다.





















