국립자연사박물관
대전 원도심 도시재생과 국가주도 운영의 자연사박물관 연계
김종석 / Kim Yong Seung Studio
Introduction
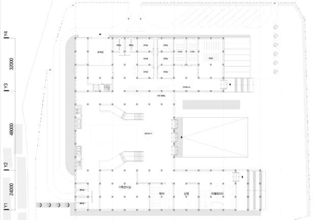
위치 : 대전광역시 동구 신안동 일대
용도 : 복합문화시설
층수 : B2 – 3F
대지면적 : 29,518㎡
건축면적 : 7563.44㎡
연면적 : 34,612㎡
Agenda
1970년대부터 지속적으로 그 필요성이 제기된 대한민국의 국립자연사박물관은 오랜 시간동안 제안과 연구만 진행되었고, 2016년 세종시 박물관 단지 내 건립계획에서 제외되며 현재는 완전히 중단된 상태이다. 국립자연사박물관의 필요성에 대해 공감하기에 교통의 중심지인 대전에 국립자연사박물관을 제안한다.













