Flat Ontology
Architectural Experiment on Avant-Garde Ontology
박세진 / Lee Kang Jun Studio
Introduction
위치: 대한민국 서울특별시 용산구 용산전자상가 일대
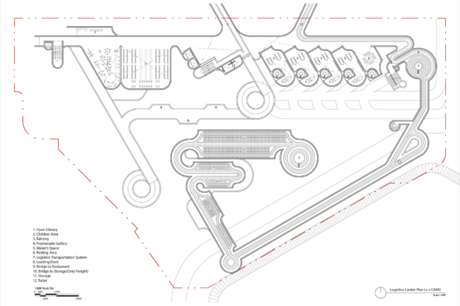
용도: 복합물류센터
Agenda
데이터 센터, 반도체 공장, 물류센터와 같은 ‘현대적 창고’가 건축적으로 가지는 의미는 무엇인가.현대 건축은 이제 그 중심에 더 이상 인간이 있지 않은, 탈인간적(Non-Anthropocentrism) 공간을 조명한다. 인간이 없어진 그 자리는 기계와 알고리즘, 상품과 데이터가 가득 채우고 있다. 탈인간주의는 건축분야에서 주로 생태학적 관점에서 논의되어 인간과 자연을 융합하려는 시도로 나타났지만, 현재 우리가 목도하고 있는 것은 오히려 기계, 알고리즘, 데이터와의 융합이다. 그렇다면 건축에서 형태란 더 이상 인간의 관점에서, 인간의 쓸모와 인간의 감각으로만 결정되는 것이 아니다. 인간, 동물, 식물은 물론 알고리즘과 같은 사변적 존재들도 평등하다는 급진적 존재론 하에서 건축의 형태는 무엇에 의해, 어떻게 도출될 수 있고, 또한 어떤 방식으로 표현될 수 있을까.
More Info (Link : https://bit.ly/archi-poche)
Theme Background
본 프로젝트는 네 명의 건축가의 글과 건축이론을 인용 / 편집하며 시작한다. 다음은 그중 일부이다.
- Complexity and Contradiction in Architecture, 1966 – Robert Venturi
“나는 건축의 요소들 중 “순수함”보다는 혼성을, “깔끔함”보다는 타협을, “솔직함”보다는 뒤틀림을, “뚜렷함”보다는 애매함을… 직접적이고 명확한 것보다는 모순되고 불분명한 것을 선호한다.”
- Deep Aesthetics, 2021 – Ali Rahim
“(건축에서) 다양한 영역이 포용되어야 할 때, 심미적 접근법은 이 이산적인 시스템들을 기술을 포함하는 시각적 언어로서의 형태적으로 통합할 수 있다… 다양한 요소와 시스템의 관계가 건축에서 조화를 이룰 때, 그 병치의 시점에서 해결되지 않거나 혼란(chaotic)한 감각이 아닌 우아한(elegant) 감각이 획득될 것이다.”
- Towards a Flat Ontology of Architecture, 2020 – Tom Wiscombe
“우리 프로젝트는 생기 있고 이산적인 객체들의 위계 없고 민주적인 관계 맺음에 대한 생태학으로 인식된다… 우리의 프로젝트에서 객체는 이동되거나, 회전되거나, 규모가 변경되거나, 복제될 수는 있지만 절대로 변형되거나, 융합되어 그들의 정체성을 잃지는 않는다.”
- Killing Simplicity: Object-Oriented Phyilosophy in Architecture, 2015 – Mark Foster Gage
“객체 지향 존재론은, 그들이 말하는 객체와 같이, 건축도 수많은 특성과 속성 그리고 관계들 속에서 이해되어야 하며, 그러면서도 건축의 실존은 단일하거나 단순한 관찰에 의해 축소되어 이해돼서는 안될 것이라는 관점을 제시한다… 객체란 자기 자신의 조각들로도 환원될 수 없고, 그것의 외부적 관계로도 환원될 수 없는 진공으로 봉인된 크리스탈이라 할 수 있다.”
Concept
데이터 센터, 반도체 공장, 물류센터와 같은 ‘현대적 창고’가 건축적으로 가지는 의미는 무엇일까? 그것은 이제 그 중심에 더 이상 인간이 있지 않은, 탈인간적(Non-Anthropocentrism) 공간이라는 점이다. 인간이 없어진 그 자리는 기계와 알고리즘, 상품과 데이터가 가득 채우고 있다. 탈인간주의는 건축분야에서 주로 생태학적 관점에서 논의되어 인간과 자연(그들의 관점에서 이것이 좋은 표현인지는 모르겠지만)을 융합하려는 시도로 나타났지만, 현재 우리가 목도하고 있는 것은 오히려 기계, 알고리즘, 데이터와의 융합이다. 그렇다면 건축에서 형태란 더 이상 인간의 관점에서, 인간의 쓸모와 인간의 감각으로만 결정되는 것이 아니다. 우리는 인간에 의해 결정되지 않은 건축물을 이미 목격해왔다. 시멘트 공장에서 지배적인 형태 논리인 파이프들은 분명 인간이 다니는 공간은 아니다. 그것은 시멘트가 다니는 공간으로, 시멘트에 의해 결정된 형태이다. 물류센터에서 볼 수 있는 램프들과 그 연장된 슬라브들은 역시 인간에 의해 결정된 형태가 아닌, 물류를 위해 이동해야 하는 차량들로 인해 결정된 형태이다. 나는 이러한 건축의 형태에서 이전의 건축물에서 찾을 수 없었던 미감은 물론, 향후 건축이 나아가야 할 방향을 찾을 수 있다고 생각하였다. 바로 이 지점에서 나의 ‘건축 실험’이 시작된다. 그렇다면 다음과 같은 의문이 연쇄적으로 떠오른다.
- Tom Wiscombe와 Mark Foster Gage의 이론으로 바탕으로, 내가 건축에서 고려할 수 있는 “객체”란 무엇일까?
(무엇을 실험해야 하는가? : 실험의 Setting)
- 그 객체들을 고려하면서 어떻게 Ali Rahim이 말한 통합적 디자인 언어를 바탕으로 Elegance한 아름다움을 이끌어 낼 수 있는가?
(어떻게 실험해야 하는가? : 실험의 Method)
- 이와 같은 프로젝트들은 어떠한 방식으로 Representation 될 수 있는가?
(실험을 어떻게 보여줘야 하는가? : 실험의 Modeling)
Setting
나는 이 실험의 장을 Setting하기 위하여 다양한 프로그램들을 조사하였다. 다만, 앞서 언급한 이론의 양이 매우 방대하기 때문에, 내가 직접 나서서 새로운 프로그램을 만들어내는 단계까지 접근하려 하지 않았다. 새로운 프로그램을 설득하는 과정에서 앞서 언급한 이론적 배경에 대한 주장이 약화될 수도 있기 때문이다. 이러한 과정에서 발견한 것이 정부에서 추진 중인 “Y-Valley 프로젝트”이다. 쇠퇴한 용산전자상가 일대를 Y 밸리라는 이름으로 되살려, 1. 기존 용산전자상가의 정체성을 살리면서도 디지털 콘텐츠와 연계하여 당위성을 강화하고, 2. 용산역과 연계한 화물기차 시스템, 드론을 이용한 배송 시스템을 포함한 스마트 통합물류 시스템을 구축하고, 3. 지역사회와 상생할 수 있도록 하는 세부적 내용을 추진한다는 것이 주요한 골자이다. 나는 이러한 계획이 내가 진행하고자 하는 실험에 적당한 장이 될 수 있다고 생각하였다. 특히 스마트 통합물류 시스템의 개념이 배송의 루트를 다각화하는 것에 성패가 달렸고, 지역사회와의 상생의 의지가 강력하여 주변 맥락에 맞는 다양한 건축적 요구들을 수행해야 하는 것으로 판단되었다. 이에 프로젝트의 사이트의 규모와 동시에 내가 고려하고자 하는 객체를 물류 / 드론 / 인간 / 승용차 / 탑차 / 대형 로리 / 화물기차로 선정하였고, 이들은 끊임없이 움직이는 존재이기 때문에, 소프트웨어적 관점에서 이들을 Agent라고 부르기로 하였다. 이러한 Agent들의 물리적 다양성과 한계에 대해 조사를 하였다. 이 과정에서 이들은 반드시 이동해야 하는데, 그때 만드는 궤적이 있다는 것을 중요하게 생각하였다.
Method
이에 따라 자연스럽게 얻어진 나의 통합적 디자인 언어는 Line과 Fillet 이었다. 이에 따라 나는 선들이 가질 수 있는 기하적 관계(Align, Tangent 등)에 대해 탐구하고, 그 분류를 세분화하였다. 또한 그들이 건축공간화될 수 있는 방법에 대해 생각해 보았다. 이들이 단순히 거대하고 순수한 기하적 형태에 뭉뚱그려져서 존재하는 것이 아니라, 그들 하나하나가 살아있고, 없어지더라도 흔적을 남기는 방식으로 존재하길 원했다. 이에 따라 다양한 공간의 단위가 도출될 수 있었다. 마지막으로 이것들을 조합하여 최종적 형태를 만들어내었다. 배치적 컨셉은 밑의 Axonometric에서 상부 측은 주택단지에 위치하고, 하부 측은 용산국제업무 단지에 위치함에 따라 상부 측은 레스토랑, 식료품점/창고형 마트와 같이 물류센터의 장점을 활용하면서도 주변 환경과 협을 할 수 있는 프로그램을 중심으로 배치하였고, 하부 측은 오피스, 물류센터, 아파트형 공장과 같이 물류가 집약되어 다양한 방식으로 배송이 가능하면서도 용산국제업무 단지와 어울리는 프로그램으로 배치하였다.
Modeling
나는 내 프로젝트들에 대한 적합한 표현 방식을 고려하였다. 컨셉이 매우 강한 프로젝트이기 때문에, 렌더링 자체를 컨셉츄얼하게 진행하였다. 이에 따라 나는 모형을 찍은 것 같은 느낌을 줄 수 있는 방식의 렌더링을 진행하였다. 또한 전체적인 프로젝트에서 Perspective View를 제외하였는데, 이는 매우 인간중심적인 판단을 위한 시점으로 생각되었기 때문이다. Perspective View는 원래 세상이 존재하는 방식이 아니라, 인간의 안구의 한계로 인해 인간의 관점에서 해석된 시점이다. 때문에 이는 공간감의 판단 기준이 되고, 이는 오직 인간만을 위한 표현방식이다. 이에 따라 나는 모든 표현 방법을 등각투상도로 제한하였다. 건축이 다양한 선과 그들의 병치와 교점에서의 Fillet 등으로 인해 만들어지고 있어, 다양한 Agent들의 움직임을 모두 선으로 표현하였다. 마지막으로 복잡한 내부를 이해할 수 있도록 Choisy 스타일로 Axonometric을 표현하였다.

















































