배움길
양주시 장사시설 계획
김서연 / Kim Yong Seung Studio
Introduction
위치 : 경기도 양주시 덕계동 산 10-12
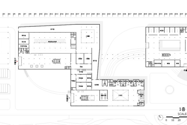
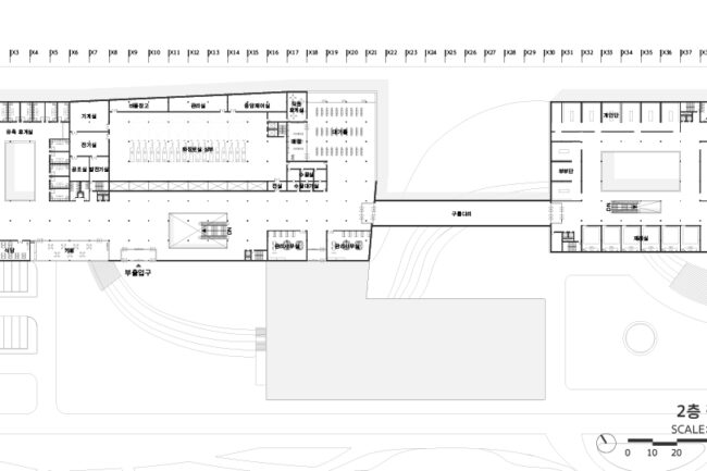
용도 : 장사시설
층수 : (ex/ B2 – 4F) B1-2F
대지면적 : (ex/ 4,840.5㎡) 10,5000㎡
건축면적 : (ex/ 2,600.5㎡) 20,518㎡
연면적 : (ex/ 7,100.0㎡) 37,793㎡
Agenda
초고령화 사회로 접어들며 사망자 수가 급격히 증가하고 있으나, 이를 감당할 수 있는 화장시설은 매우 부족한 실정이다.
이로 인해 3일장이 끝난 뒤에도 1~2일을 더 기다려야 하거나, 다른 지역으로 ‘원정 화장’을 떠나는 경우가 빈번하다.
그럼에도 불구하고 장사시설은 여전히 혐오시설로 인식되어 지역 내 유치에 대한 반발이 거세다.
최근 다양한 기능이 복합된 공간들이 늘어나고 있는 흐름을 반영하여, 장사시설 역시 공원이나 문화공간과 결합된 형태로 계획하고자 했다.
이는 장사시설을 일상과 완전히 분리된 공간이 아닌, 시민들에게 열린 장소로 재인식시키기 위한 전략이다.
 
					



































 
         
         
         
         
         
         
         
        