Kim Yong Seung Studio

Do CMYK!

김시윤 / Kim siyun

Do CMYK!

Printing & Paper Complex Cultural Facilities

김시윤 / Kim Yong Seung Studio

Introduction

위치 : 서울시 중구 필동 일대

용도 : 문화시설

층수 : 3F

대지면적 :  3,110 m2

건축면적 :  1,860 m2

연면적 : 5,600 m2

Agenda

디지털 기술이 일상화된 현대 사회에서 아날로그 인쇄와 종이 문화는 점차 사라지고 있지만, 감각적 경험과 물성을 지닌 매체로서 새로운 문화적 가치를 지닌다.

본 프로젝트는 이러한 가치 있는 매체들을 단순히 전시하는 것을 넘어, 직접 체험하고 교육받을 수 있는 복합 문화 공간으로 재구성하고자 한다.

Site

충무로는 서울 도심 속 오래된 인쇄 산업의 중심지였으나, 산업 변화와 함께 점차 쇠퇴하고 있다.
대상지는 다양한 인쇄업체와 인접해 있고, 충무로역과 가까워 접근성이 좋지만 도시적 흐름이 단절된 상태다.
본 프로젝트는 충무로의 과거와 현재 사이에 새로운 경험과 흐름을 삽입하여, 지역에 활력을 불어넣고자 한다.

Concept

프로젝트는 인쇄의 ‘과정’과 ‘협업 구조’를 개념의 출발점으로 삼았다.

인쇄는 하나의 결과물이 아닌, 다수의 공정이 순차적으로 이어지는 연속적인 작업이다.

각 공정은 독립적인 성격을 가지면서도 유기적으로 연결되어 하나의 완성물을 만들어낸다.

이 프로젝트는 그러한 인쇄의 구조를 공간 개념으로 치환하여 풀어냈다.

Program

프로그램은 전시, 체험, 교육으로 구성되며, 사용자가 인쇄 문화를 다양한 방식으로 경험할 수 있도록 설계되었다.
특히 체험 공간은 참여도에 따라 직접 체험, 간접 체험, 전시형 체험으로 세분화된다.

Design

각 공정을 하나의 원형 공간으로 상징화하고, 협업의 흐름에 따라 원들을 유기적으로 연결하였다.
결과 중심이 아닌 과정을 담는 공간 조합이 최종 매스를 형성한다.

Drawings

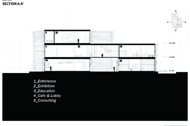
전시, 교육, 체험 세 동으로 나누어 각 동은 곡선 형태를 가지며, 외부 공간은 이동과 소통을 촉진하는 공공장소로 계획되었다.

체험동은 참여 강도에 따라 전시, 체험, 간접 체험 공간으로 나누어 자연스러운 프로그램 확장을 유도한다.

교육동과 체험동은 2층 브리지를 통해 연결되어 분리된 기능을 유지하면서도 유기적인 동선 흐름을 만든다.

Images

Location

Other Projects

답글 남기기

이메일 주소는 공개되지 않습니다. 필수 필드는 *로 표시됩니다