Media Art Core
Seoul Media Art Museum in Sinchon
이세진 / Kim Yong Seung Studio
Introduction
위치 : 서울특별시 서대문구 창천동 30-8 일대 정비구역
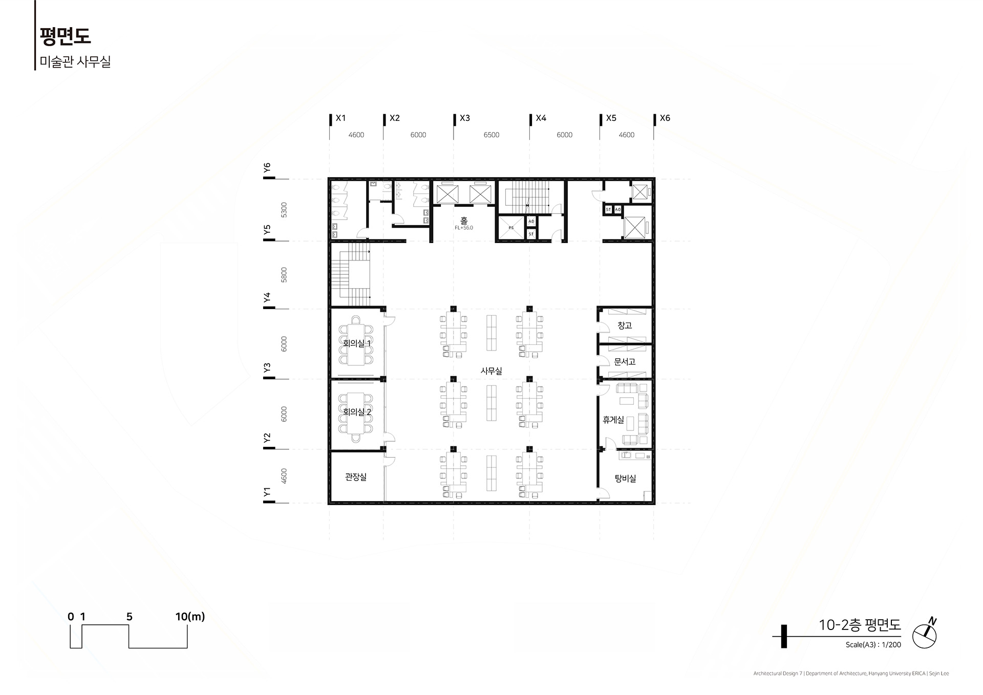
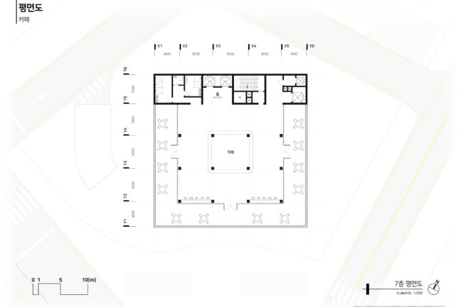
용도 : 미술관
층수 : B3 – 10F
대지면적 : 2,089.6㎡
건축면적 : 767.3㎡
연면적 : 8,683.28㎡
Agenda
서울 서북부 지역은 대형 시립미술관이 부족하고, 기존 SeMA 창고나 난지미술창작스튜디오는 실험성에 비해 규모와 공공성이 부족한 실정이다. 본 프로젝트는 이러한 지역적 문화 불균형을 해소하기 위해, 신촌역 인근 정비구역에 수직형 미디어아트 미술관을 제안한다. Donald Judd의 ‘Untitled’ 조형 원리를 바탕으로 Solid와 Void의 리듬 구조를 건축에 적용하여, 감각적이고 몰입적인 미디어아트 체험 공간을 제공하고자 한다.
Theme Background
서울시의 시립미술관은 대부분 도심 동부나 중부에 집중되어 있으며, 서북부는 상대적으로 소외되어 있다. 특히 마포·서대문·은평구는 젊은 창작자, 대학, 디지털미디어 인프라 등 예술적 잠재력이 풍부함에도 불구하고 이를 수용할 공공 문화시설이 미비한 실정이다. 또한 신촌은 20세기 중반부터 대학가와 청년문화의 중심지로 기능했으며, 최근에는 다양한 도시재생 프로젝트가 시도되고 있다. 따라서 신촌의 역사적, 문화적, 지리적 특성은 새로운 미술관이 지역 사회와 유기적으로 결합하고 청년 문화를 선도하는 거점이 될 무한한 잠재력을 가지고 있다.
Site
서울 서대문구 창천동 30-8 일대 정비구역에 위치하며, 지하철 2호선 신촌역의 1, 2번 출구 바로 앞에 위치한다. 경의중앙선, 공항철도, 수도권 광역버스와의 연결로 뛰어난 접근성을 가지고 있으며 인근에 연세대, 서강대, 이화여대, 홍익대 등 예술·디자인 기반 대학이 밀집되어 있어, 청년 창작자 및 문화소비층의 유입이 활발한 지역이다. 또한 신촌 상권의 중심지에 위치하여 주변 상업시설 및 백화점과 연계한 복합 문화 코스를 형성할 수 있으며, 유동인구가 풍부하여 미술관의 공공성을 극대화할 수 있는 입지적 강점을 가지고 있다.

































































