시동 : 상상시 파도동
New Type of Courthouse Proposal:
파도가 잇는 시간, 상상이 여는 공간 / 도시의 활력을 회복시킬 문화공간 제시
김연우 / Kim Yong Seung Studio
Introduction
위치 : 강원 동해시 묵호진동 일출로 92-11
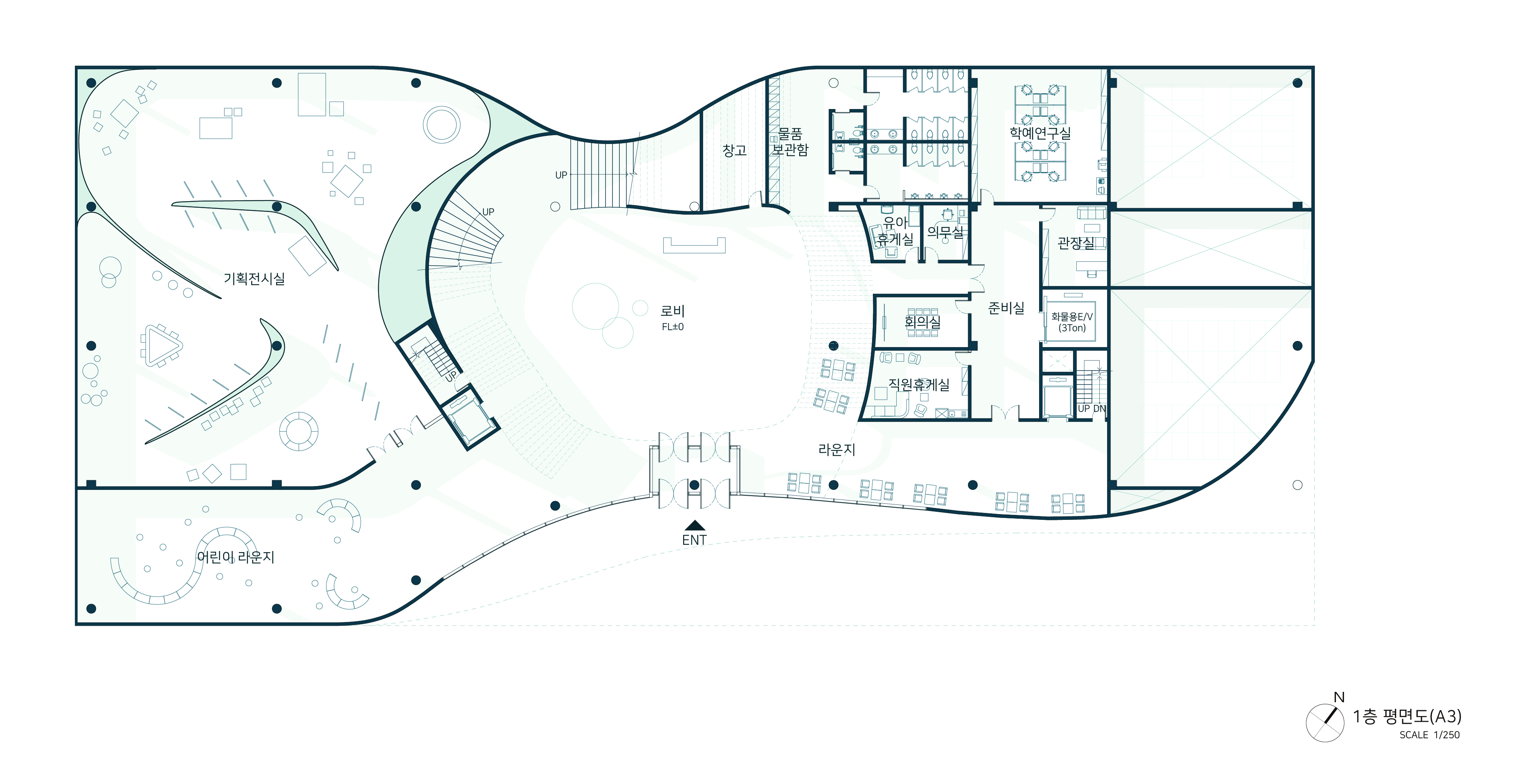
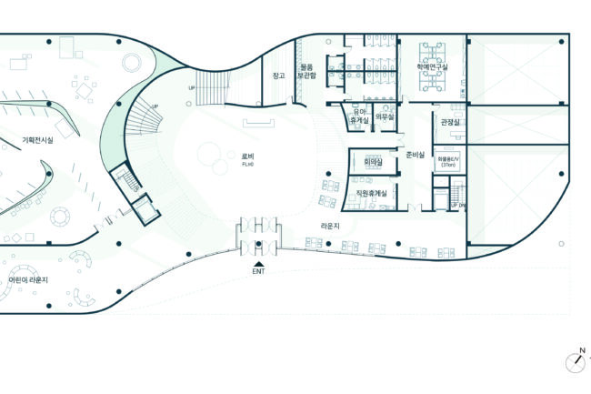
용도 : 과학관
층수 : B1 – 3F
대지면적 : 21,000㎡
건축면적 : 2,960㎡
연면적 : 6,914.1㎡
Agenda
동해시의 해양 인프라를 활용하면서도 지역 주민과 방문객 모두를 위한 교육·문화공간이 필요하다고 판단하였고,
수산유통의 중심지였던 묵호항의 역사와 현재 진행 중인 재창조 사업과 연계해 지역의 정체성을 보존하고 미래 가능성을 열고자 수산과학관을 제안하게 되었습니다.
Concept
컨셉은 Resonant Wave_공명하는 파도입니다. 동해안 수산물 유통의 중심지였던 과거가 단절되는 것이 아니라,
수산과학관이라는 문화·교육적 공간을 통해 다시 ‘공명’하며 되살아나길 바라는 의미에서 이 컨셉을 선정했습니다.
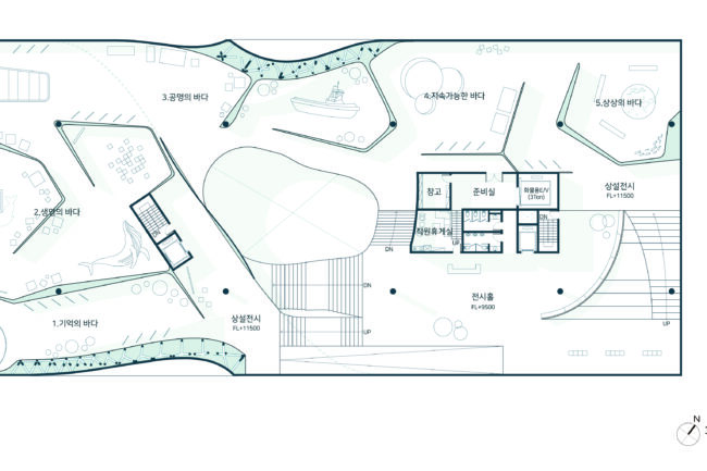
‘공명’을 단순한 개념에 머물지 않고 공간적으로 구현하고자, 묵호항의 월별 조위 관측 데이터를 바탕으로 곡선을 추출해 컨셉 라인으로 설정했습니다.
그 라인 중 곡선을 적용한 변동되는 지점, 즉 진폭이 극대화되는 한 지점을 기억이 울리고 되살아나는 ‘공명의 공간’으로 해석해 형태적 강조와 공간적 집중이 이루어지도록 했습니다.
 
					



























 
         
         
         
         
         
         
         
        