도담도담 재활병원
도담도담 재활병원
최지연 / Kim Yong Seung Studio
Introduction
위치 : 서울특별시 광진구 자양로 117 광진구청
용도 : 공공 어린이 재활병원, 문화체육센터
층수 : B2 – 5F
대지면적 : 17,070㎡
건축면적 : 6,500㎡
연면적 : 약 20,400㎡
Agenda
도담도담 재활병원은 서울시 공공 어린이 재활병원으로, 기존 구청 부지에 설립되어 주거지역 내 공공 어린이 병원이 갖추어야 할 프로그램과 공간을 고민하여 설계된 프로젝트입니다. 이 병원은 단순한 장애 아동 치료 시설을 넘어, 지역 주민들과 함께 누릴 수 있는 문화, 체육, 예술의 공간을 제공합니다. 모두가 어우러져 웃고 즐길 수 있는 복합 복지 시설로, 장애 관련 시설에 대한 편견을 없애고 공공 병원의 이미지를 새롭게 정의하였습니다. 주민들의 삶의 질을 높이고, 장애 아동과 지역 주민이 함께 성장하는 소중한 공간이 될 도담도담 어린이 재활병원은 세상의 모든 아이들을 위한 치유 공간이 될 것입니다.
Theme Background
[설계 배경]
현재 전국 인구는 2020년을 기점으로 감소하기 시작했지만, 장애인구는 2018년부터 꾸준히 증가하여 현재 265만 명에 이릅니다. 또한, 전국 소아청소년(19세 이하) 인구는 2018년 기준으로 감소하고 있지만, 전체 소아청소년 인구 대비 장애 소아청소년의 비율은 점차 증가하고 있습니다. 장애 아동의 유형을 살펴보면, 지적, 자폐성, 뇌병변 등 전체의 81%가 재활치료를 필요로 하는 유형임을 알 수 있습니다.
[문제 현황]
이러한 발달지연 장애를 가진 아동들은 주로 서울과 경기 지역에 거주하고 있습니다. 그러나 그래프에서 확인할 수 있듯이, 서울에 거주하는 발달지연 장애아동의 치료비율은 9위에 불과합니다. 이는 서울 내 재활병원의 현황과 관련이 있습니다. 어린이가 이용할 수 있는 재활병원의 수가 충분하지 않으며, 입원이 가능한 병원도 서울의 서북권에 집중되어 있어 대부분의 지역에서 접근이 어려운 상황입니다.
Site
정부의 지원이 필수적인 공공 어린이 재활병원의 부지는 두 가지 조건을 기준으로 선정되었습니다. 첫째, 공공성을 지닌 대지여야 하며, 둘째, 서울시에 거주하는 장애 아동들이 쉽게 접근할 수 있어야 합니다.
공공성을 지닌 대지로는 지역 주민들을 지원하는 구청의 대지가 적합합니다. 최근 구청들은 역세권이나 주거지역과 가까운 신청사로 이전하는 추세이므로, 이전 후 남는 대지를 활용할 수 있는 곳을 후보지로 고려하였습니다. 다음으로 서울에서 장애 아동이 많이 거주하는 지역을 조사한 결과, 동북권과 동남권에 많은 비율로 거주하고 있음을 확인했습니다. 후보지 중 광진구청의 대지는 동북권과 동남권 모두에 접근이 가능한 중심에 위치해 있으며, 가까운 지하철역과 버스 정류장이 있어 접근성이 뛰어나기 때문에 광진구청의 대지를 설계 대상지로 선정하였습니다.
Concept
[주민과 함께하는 재활병원]
1967년에 건설된 광진구청은 도로 포장, 지하철역 및 교량 건설의 영향을 받아 주변에 주거지역이 형성되었으며 약 60년 동안 주민들을 위한 지원과 복지, 돌봄의 역할을 수행해왔습니다. 2000년대 이후에는 고층건물, 아파트, 오피스텔 등이 들어서면서 상업건물이 증가하고 도로가 체계화되었습니다. 그런 구청의 신청사로의 이사 후, 그 자리에 들어설 재활병원은 단순히 장애 아동을 위한 치료 시설을 넘어, 지역에 부족한 문화시설, 체육시설, 공원 등 복지 시설을 함께 계획하여 모두에게 이로운 역할을 할 수 있어야 한다고 판단했습니다. 따라서 재활병원의 장애 아동을 위한 프로그램뿐만 아니라 지역 주민들과도 공유할 수 있는 문화, 체육, 예술의 공간을 계획하여 모두가 함께할 수 있는 병원이 되도록 컨셉을 설정했습니다.
Design
[건물 형태 형성 과정]
- 대지의 전면 공원화 및 매스 형성
– 대지의 앞부분을 공원으로 비워두고 사다리꼴 형태에 맞춘 매스를 형성.
- 병동부와 채광 확보
– 장애아동 병동부를 위에 배치하여 채광과 외부 정원 확보.
– 의료, 문화, 체육 프로그램은 낮은 레벨에 배치하여 접근성 강화.
- 경사 완화 및 건물 분절
– 경사 대지의 주진입로 경사를 완화하여 휠체어, 유모차, 도보 접근성 강화
– 주변 건물 스케일에 맞춰 체육, 문화, 의료 기능으로 건물 분절.
- 개방된 광장과 재활 중정
– 진입로에 열린 광장을 형성해 다양한 사용자들이 모일 수 있도록 계획.
– 테라스와 오픈 경사로를 함께 계획해 상호 인지 및 시선 교류.
– 재활 중정은 장애아동 및 보호자 전용으로 외부 방해 차단.
- 다양한 수직 이동 수단
– 엘리베이터, 계단, 경사로 등 다양한 수직 이동 수단 계획.
– 코어와 함께 중정, 휴식 난간, 열린 광장 등 중간 휴식 공간 마련.
- 경사지붕 디자인
– 네모반듯한 입면 대신 경사지붕 디자인으로 주변 주거 건물과 조화 유도.
– 친숙하고 안정적인 느낌을 주도록 형태 변형.
이러한 건물 형태를 형성하여 장애아동을 포함한 모든 사용자의 접근성과 편의성을 높이며, 자연과 조화를 이루는 친근한 공간을 형성할 수 있도록 계획했습니다.
Drawings
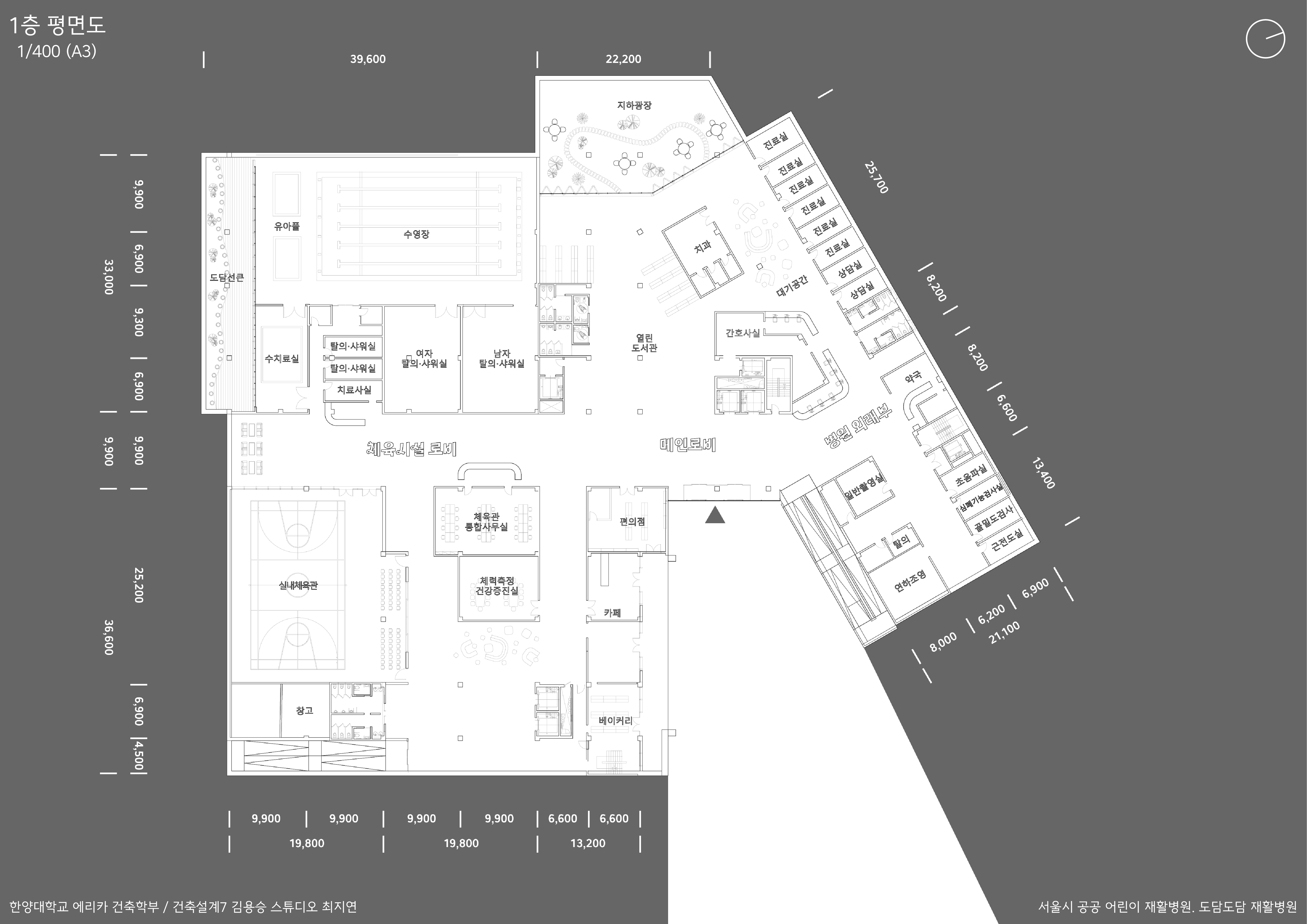
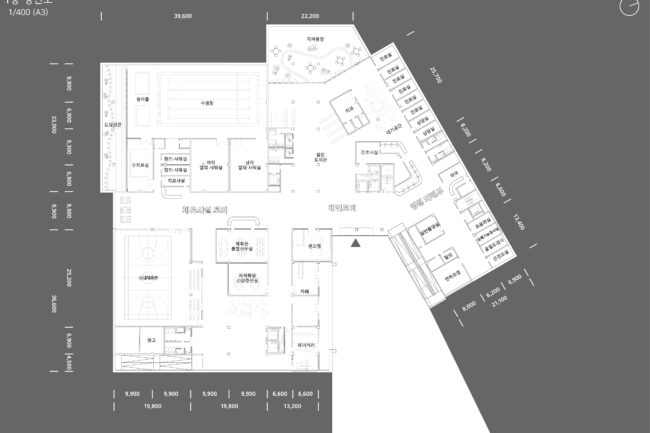
[1층 평면]
열린광장에서 메인로비로 진입하면 도서관을 중심으로 좌측엔 체육시설이, 우측엔 병원이 위치함
경사로 인한 레벨 차이를 고려해 체육시설은 2개층으로 계획하여 채광과 환기가 가능하도록 했으며, 지하광장(선큰)을 통해 도서관과 병원 대기공간의 채광 및 환기를 제공함. 또한, 휴식과 놀이 공간도 마련함.
각 매스마다 계단, 엘리베이터, 경사로를 2개 이상 배치하여 자유로운 이동이 가능하도록 했음. (재활치료를 제외한 모든 체육, 병원, 문화 시설은 지역 주민과 병원 방문자에게 열린 프로그램임)
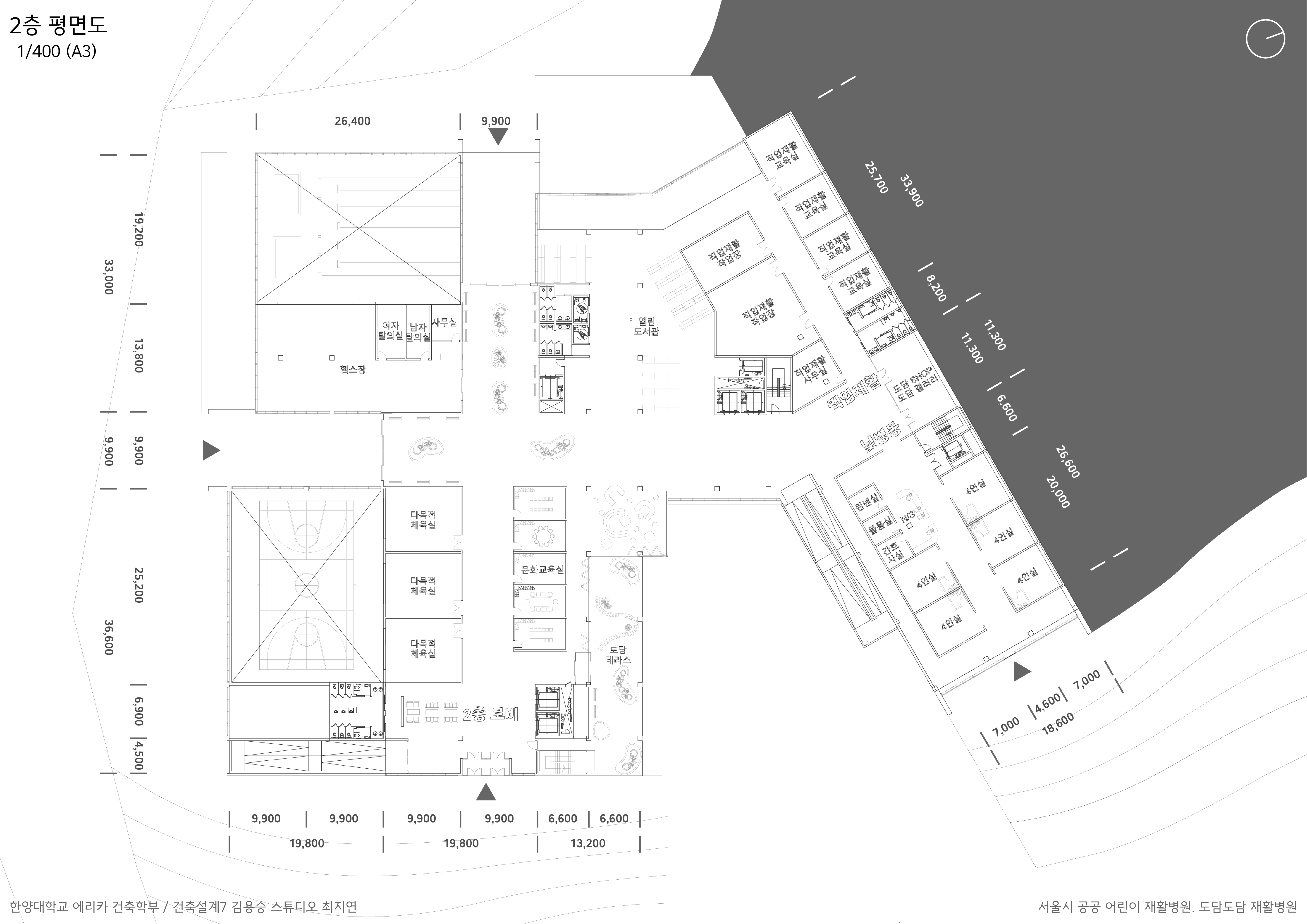
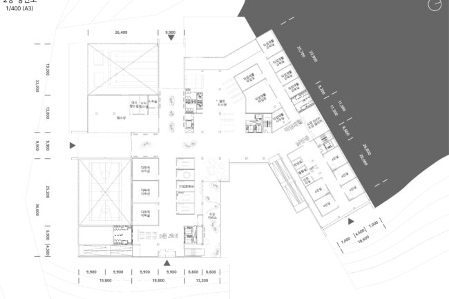
[2층 평면]
앞쪽 공원, 뒤쪽 소공원 등 여러 방향에서 체육, 문화 시설로 출입이 가능함.
혼잡한 병원 접수 없이 낮병동(외래)과 직업재활(성인기 장애아동 교육)로 바로 진입이 가능함.
경사로, 계단을 통한 이동 중에 테라스, 외부 정원, 내부 휴게공간에서 휴식 가능하도록 계획함.
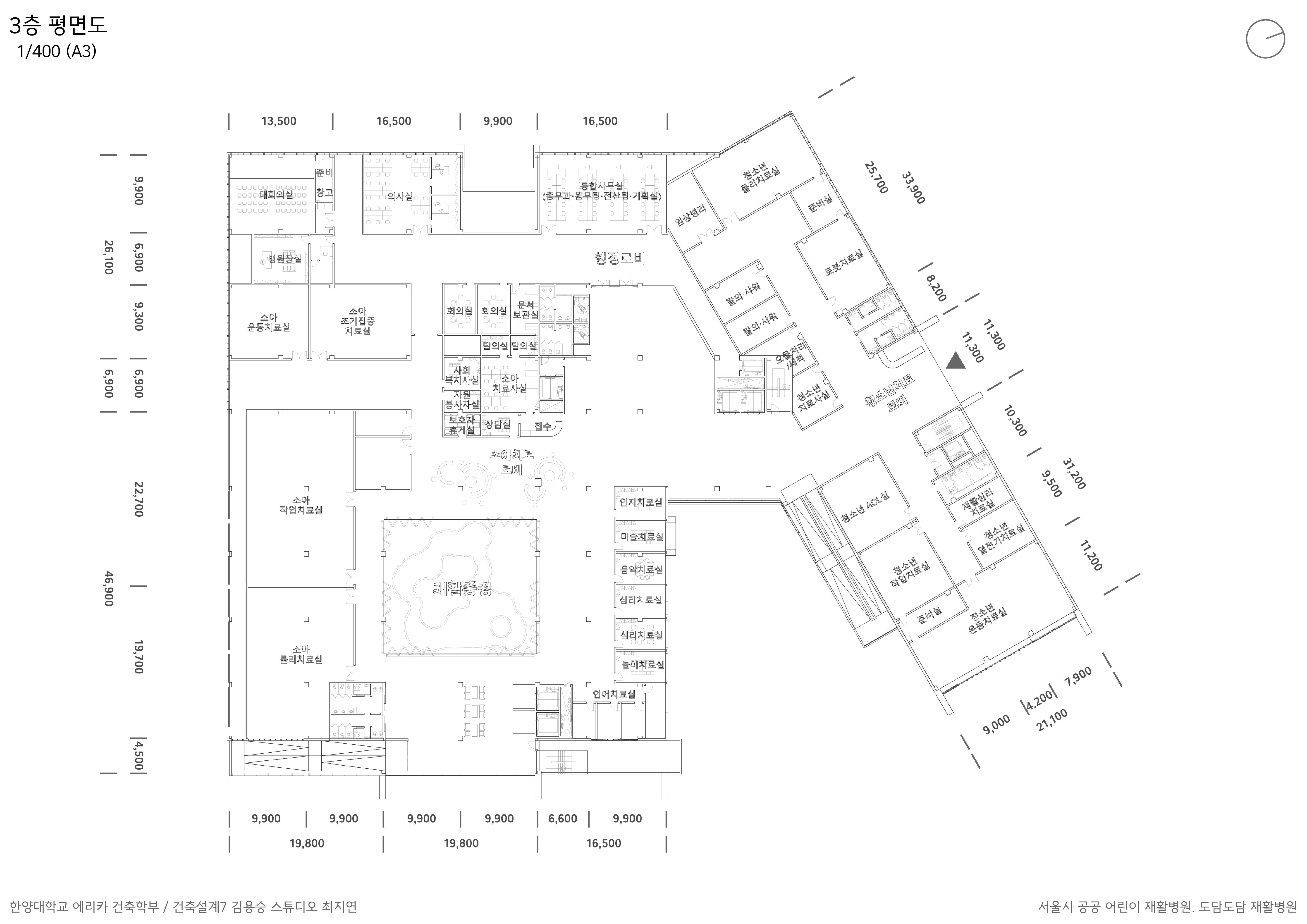
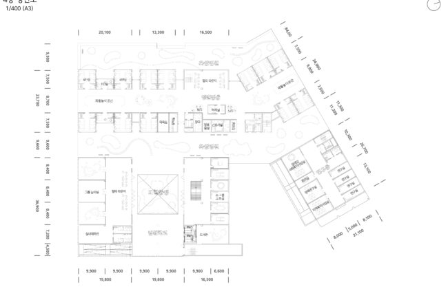
[3층 평면]
재활 중정을 기준으로 물리 치료실은 좌측에, 심리 및 인지 치료실은 우측에 위치시켜 중정이 다양한 프로그램을 융화시키는 역할을 함. 치료 후 쉬는 시간에는 병동으로 올라가지 않고도 중정에서 휴식을 취하며 다른 환아들과 친목을 다질 수 있도록 계획함.
청소년 치료는 소아 치료와 공간을 분리하여 외부에서 바로 진입할 수 있도록 설계함.
행정사무실, 의사실, 대회의실 등 행정업무 공간은 중앙 로비를 기준으로 위쪽에 배치하여 뒤쪽 소공원의 뷰를 가지며 환기와 채광이 가능하도록 계획함. 또한, 소아 치료 및 청소년 치료시설로의 접근이 용이하게 배치함.
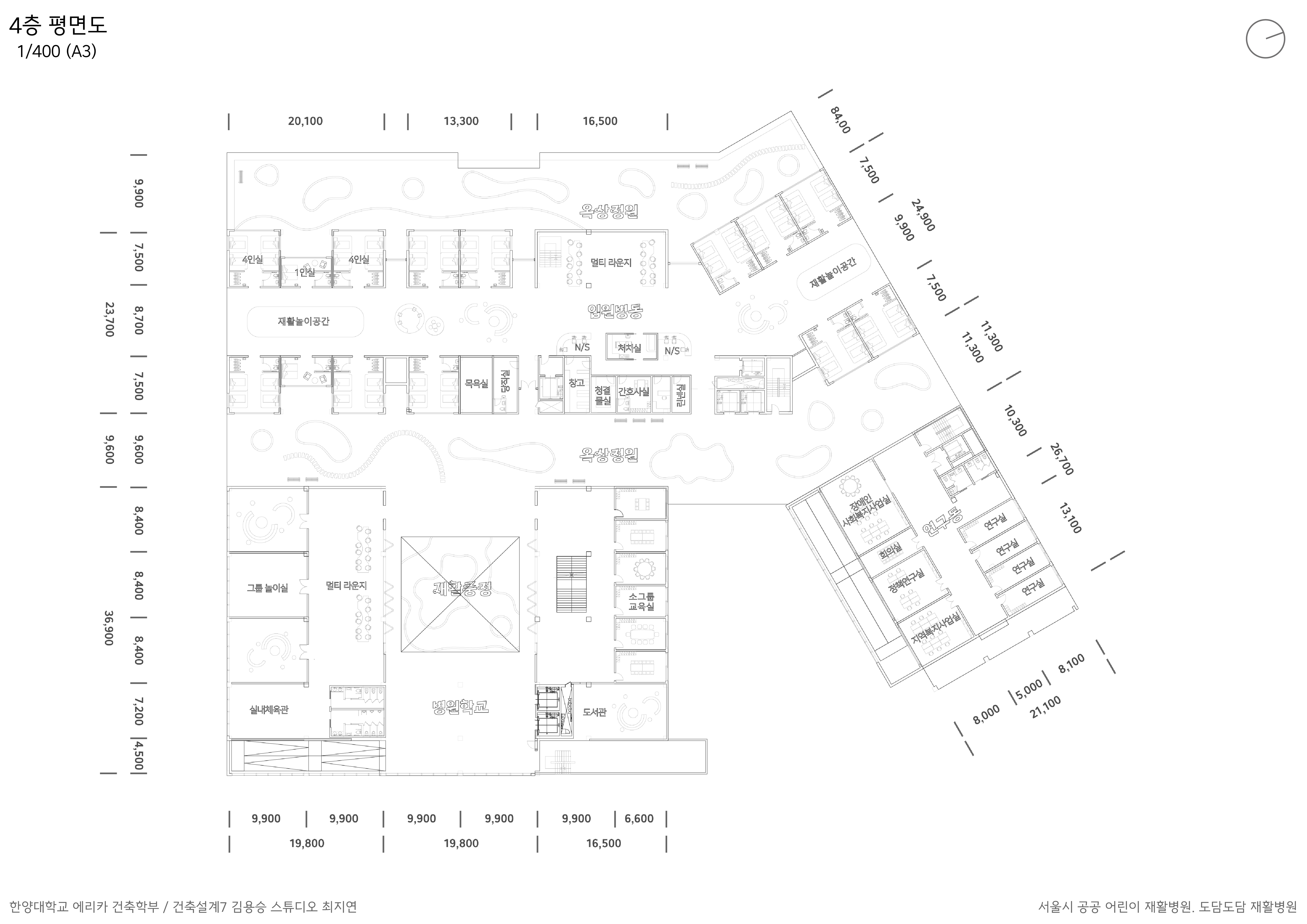
[4층 평면]
입원병동은 주변 주거 건물 크기와 조화를 이루기 위해 매스를 분절하였으며, 분절된 틈 사이에 조경을 배치하여 중앙 복도 및 병실 내부에서도 외부의 조경을 감상할 수 있도록 측창을 계획함.
N/S 앞쪽에 옥상정원과 연결된 멀티라운지를 위치시켜, 채광과 자연을 직접적으로 느낄 수 있도록 하여 업무 환경을 개선함. 우측으로는 병실을 배치하여 환자들을 쉽게 관찰할 수 있도록 함.
입원한 아동이 교육을 들을 수 있는 병원 학교를 계획함. 큰 활동 교육 교실은 좌측에, 소규모 개인 교육실은 우측에 배치함. 외부 공원에서는 휴식과 야외수업이 진행될 수 있음.
연구동에선 장애인 사회복지사업 및 정책 연구를 진행하며, 여러 연구실이 장애아동 재활치료에 관한 연구를 지속적으로 발전시킬 수 있도록 도모함.
Images
[조감도]
주거지역의 대로변에 건물이 위치함. 세 개의 박공지붕을 노란 경사로와 계단, 난간이 연결시키고 있음. 중앙에 열린 광장에서는 진입과 휴식이 이루어지며 중앙 경사로와 테라스에서 모두 서로를 인지하고 만남이 이루어질 수 있음.
[소공원과의 연계 예상도]
병동부 건물들은 소공원을 중심으로 주거지역과 마주보고 있음. 병동부의 외부 정원에서 소공원을 바라볼 수도 있고, 소공원에서 직접 지역 아동들과 입원 환아들은 서로 만나 놀이를 통해 친밀감을 쌓을 수 있음.
[재활 중정 예상도]
재활치료가 끝난 아동들은 중정으로 나와 보호자 또는 다른 환아들과 자연속에서 놀이 시간을 가질 수 있음. 재활 중정은 위층의 병원학교와 공용으로 사용되며 많은 아동과 보호자에게 외부의 시선에서 벗어나 방해 없는 자연 속 휴식을 제공함.




































