Blue – Collar
공업단지 내 교대근무 근로자들을 위한 S사 사택 제안
정진명 / Kim Yong Seung Studio
Introduction
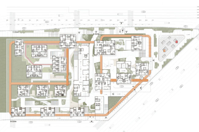
위치 : 울산광역시 남구 중앙로80 일원
용도 : 주거 및 숙박
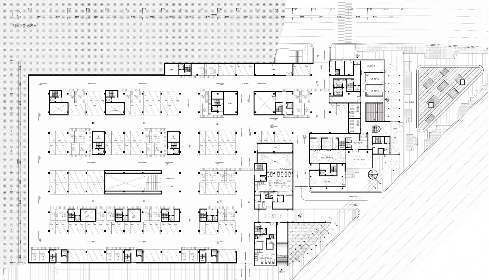
층수 : B2 – 11F
대지면적 : 16,773㎡
건축면적 : 11,741㎡
연면적 : 46,964㎡
Agenda
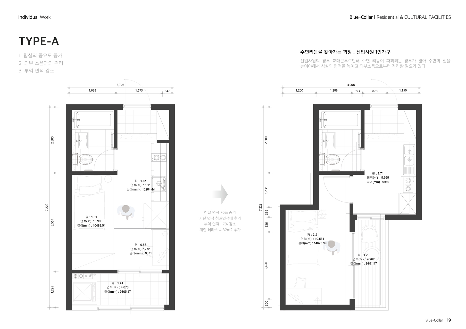
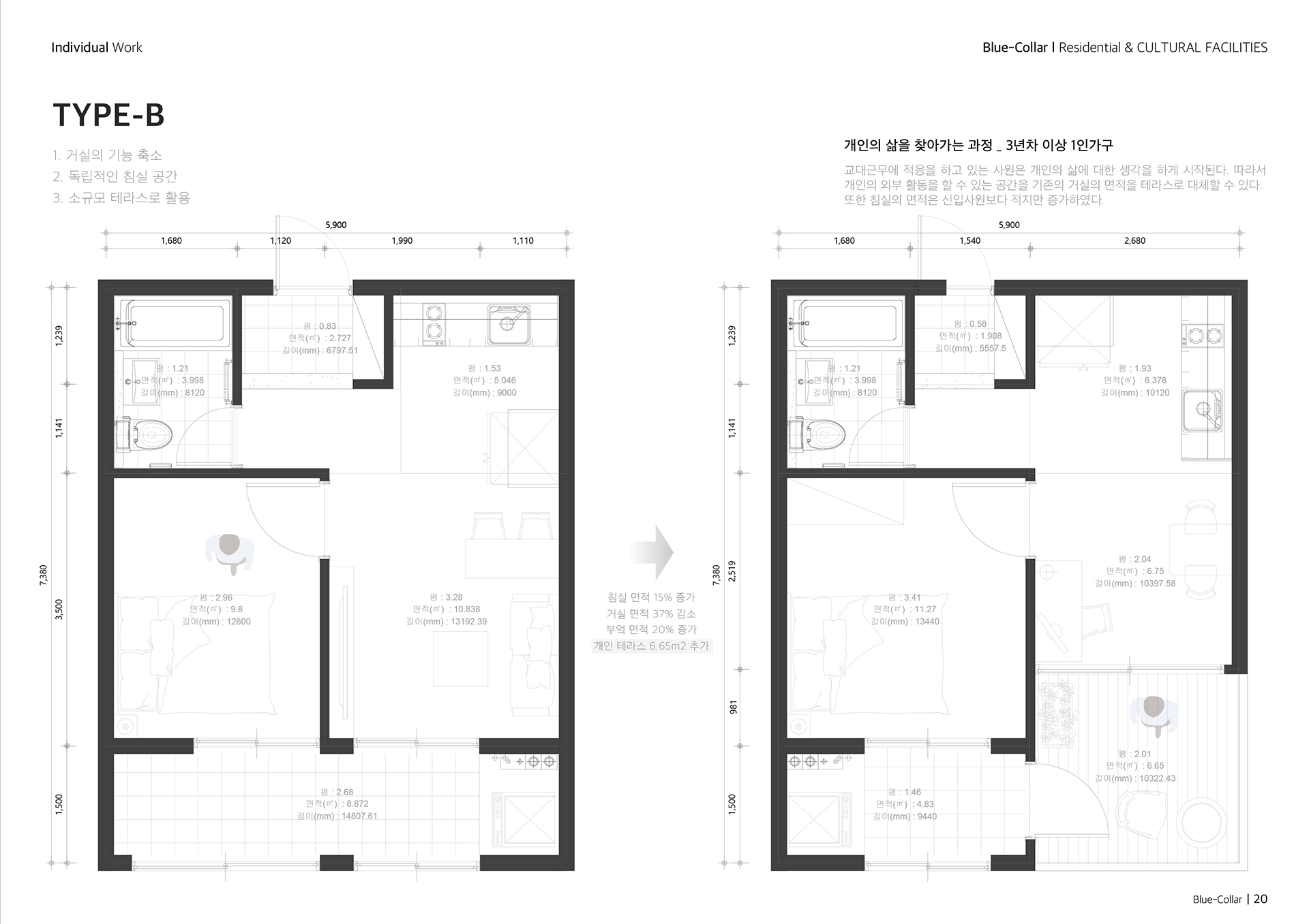
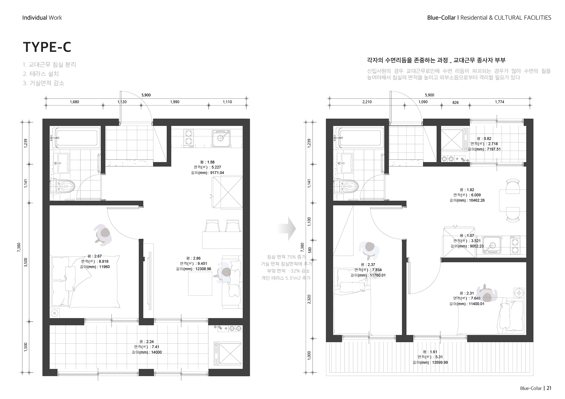
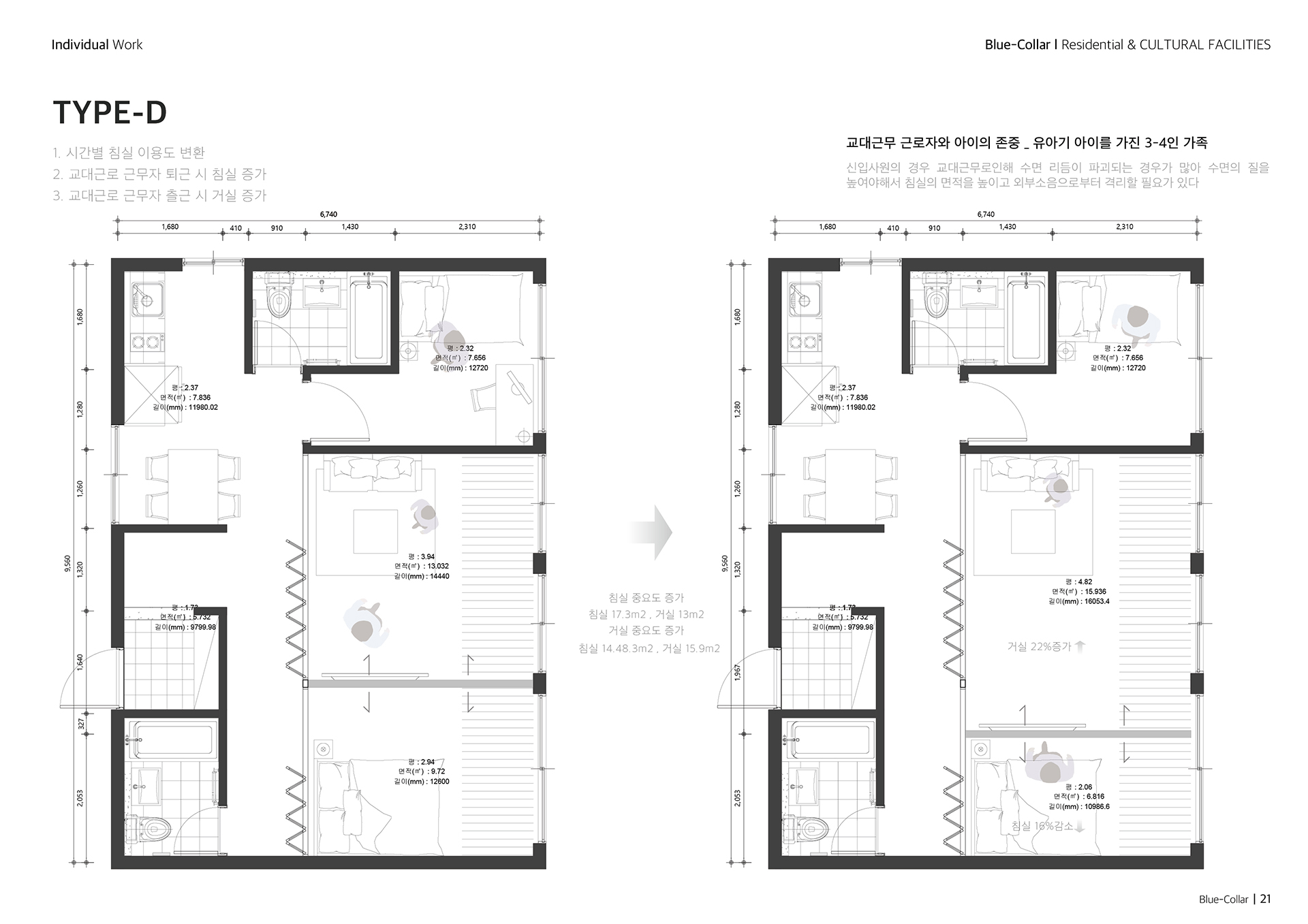
울산시의 산업구조는 24시간 돌아가는 공장들이 많아 교대근무근로자들의 비중이 높다.
이러한 산업을 위한 인력을 뒷받침하기 위해서 울산의 독특한 사택문화 발달하였다. 울산은 사택의 중심으로 도시개발이 시작되었으며 기존 도시와 다른 도시적 맥락이 만들어졌다.
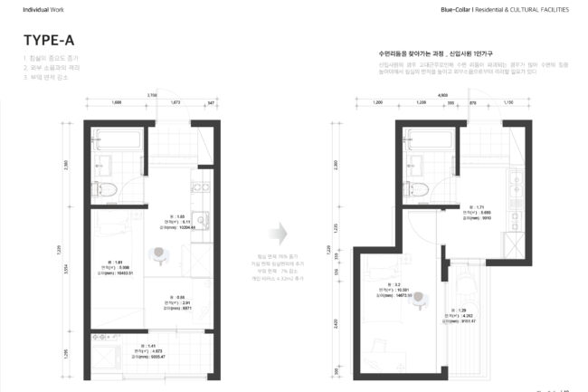
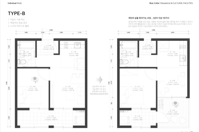
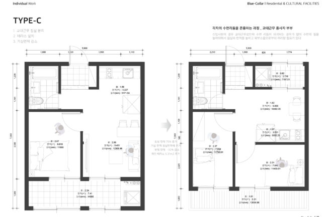
그 결과, 전국에서 가장 많은 약 50개의 사택이 존재한다. 남아 있는 사택은 근로자 수용을 위한 목적으로 지어져 교대근로자의 생활 횐경을 담아내지 못하여 근로자들이 많은 불편함을 표출하고있다.
결국 이러한 불편함은 질병으로 이어져 기업 입장에는 생산량에 타격을 받을 수 밖에 없다.
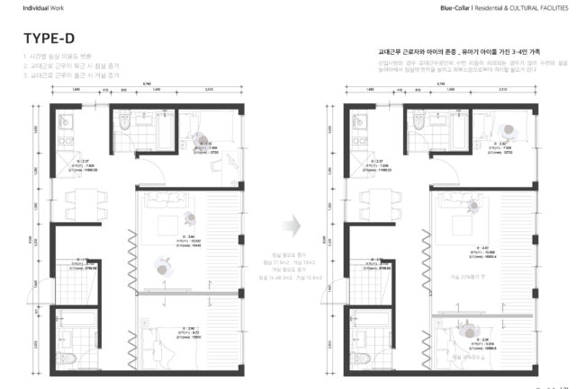
이를 해결하기 위한 교대근무 근로자들을 위한 사택을 제안하고자 한다.







































