FutureVista Yongsan
New type of Cultural Complex Proposal as a theme of ‘Future Technology’
김범주 / Kim Yong Seung Studio
Introduction
위치 : 서울 용산구 한강로3가 23-1
용도 : 문화 및 집회시설, 운수시설, 숙박시설
층수 : B3 – 8F
대지면적 : 5,644.5 ㎡
건축면적 : 3,451.1 ㎡
연면적 : 39,931.4 ㎡
Agenda
최근 한 가지 혹은 여러가지 주제로 다양한 경험을 제공해 주는 복합문화시설의 건축 수요가 늘어나고 있는데, 최근 저수요로 쇠퇴한 용산전자상가와 인근에 개발예정인 용산국제업무지구의 협력 관계 구축으로 미래 기술을 활용한 발전을 이룰 것이라는 청사진을 내놨다. 이 둘의 발전과 함께 미래 기술들에 대해 대중들에게 홍보하고 나아가 국제업무지구 및 전자상가와의 발전에 도움을 줄 복합문화공간을 제안하고자 한다. 또한 교통의 허브인 용산역 근방에 위치한 만큼 서울시 상위계획에 따른 UAM 노선망 확충의 일환으로 미래형 교통수단의 경유지로 용산역 인근을 삼고자 한다. 따라서 기존엔 없었던 새로운 운수시설을 추가하고, 이를 뒷받침해주는, 기존 드래곤시티 호텔과는 사뭇 다른 유형의, 단기체류형 숙박시설(비즈니스호텔)을 포함하여 ‘미래 기술’을 총체적으로 보여주고 느끼게 해 줄 수 있는 새로운 유형의 복합문화공간을 제안하고자 한다.
Theme Background
용산전자상가는 과거 김장시장에서 시작되어 국내 최대 전자제품 전문 상가군으로 성장하였으나 수요 감소 등으로 각 상점의 물류창고로 전락하였다. 그러나 한동안 방치 중이던 용산국제업무지구(구)용산정비창)의 개발계획이 확정됨에 따라 발전계획이 수립되었다. 국제업무지구에서 미래 기술들에 대한 연구가 이루어지면, 용산전자상가에서 이들을 시제품화하는 것인데, 즉 용산전자상가의 기존 성격에 생산적 기능이 추가되는 것이다. 이 두 지구는 상호 보완적으로 ‘미래 기술’을 활용하는데 갑작스레 변하는 미래 기술이 일반 대중들에게는 낮설 수도 있다. 이러한 요소를 보여주고 홍보하는 ‘쇼룸’과 같은 역할을 할 복합문화공간과 같은 시설을 제안하여 외부인들에게도 열린 공간을 만들어야 할 것이다. 이는 복합문화공간 건축 수요 증가와도 연관되어 있다.
Program & Design Process
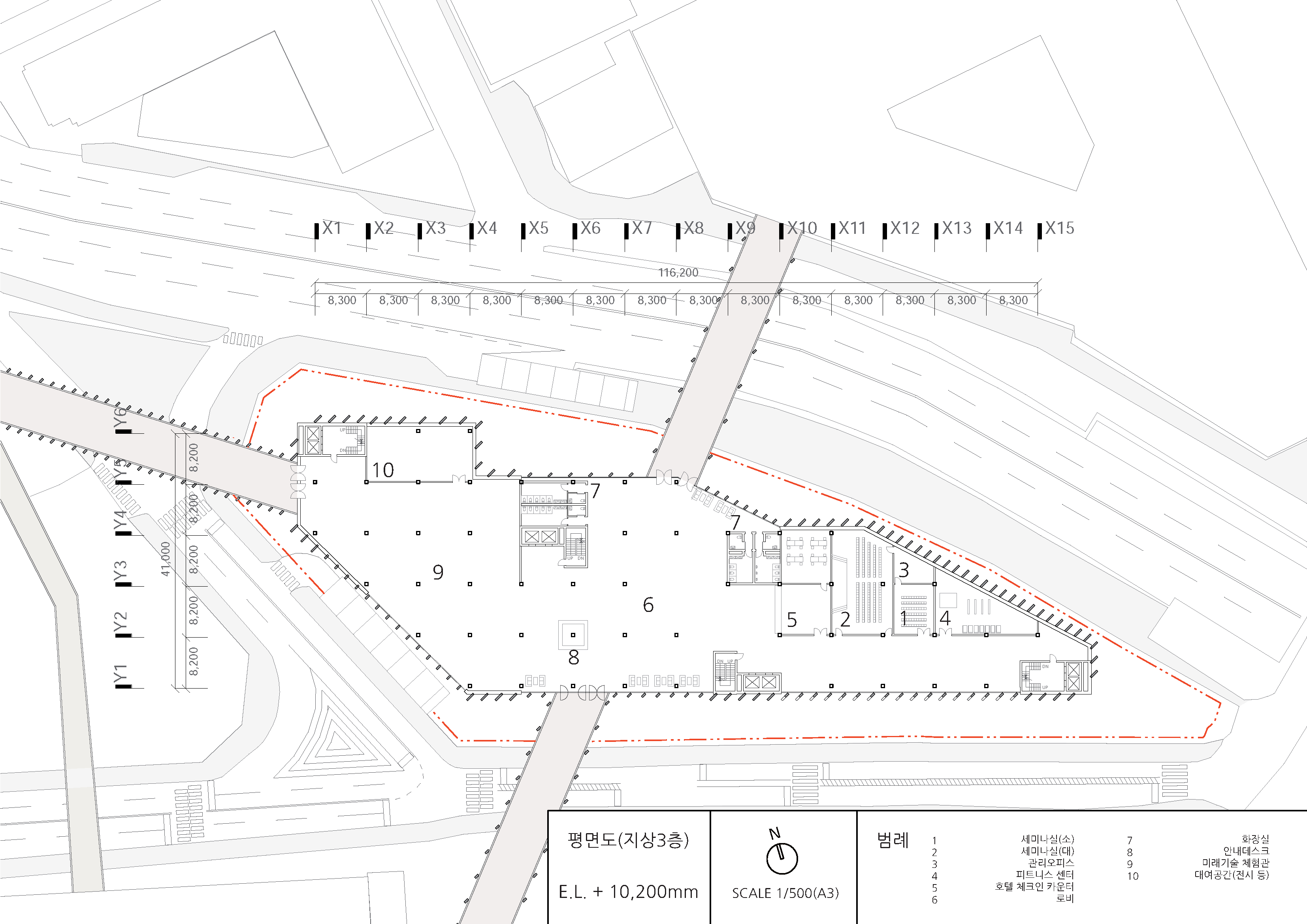
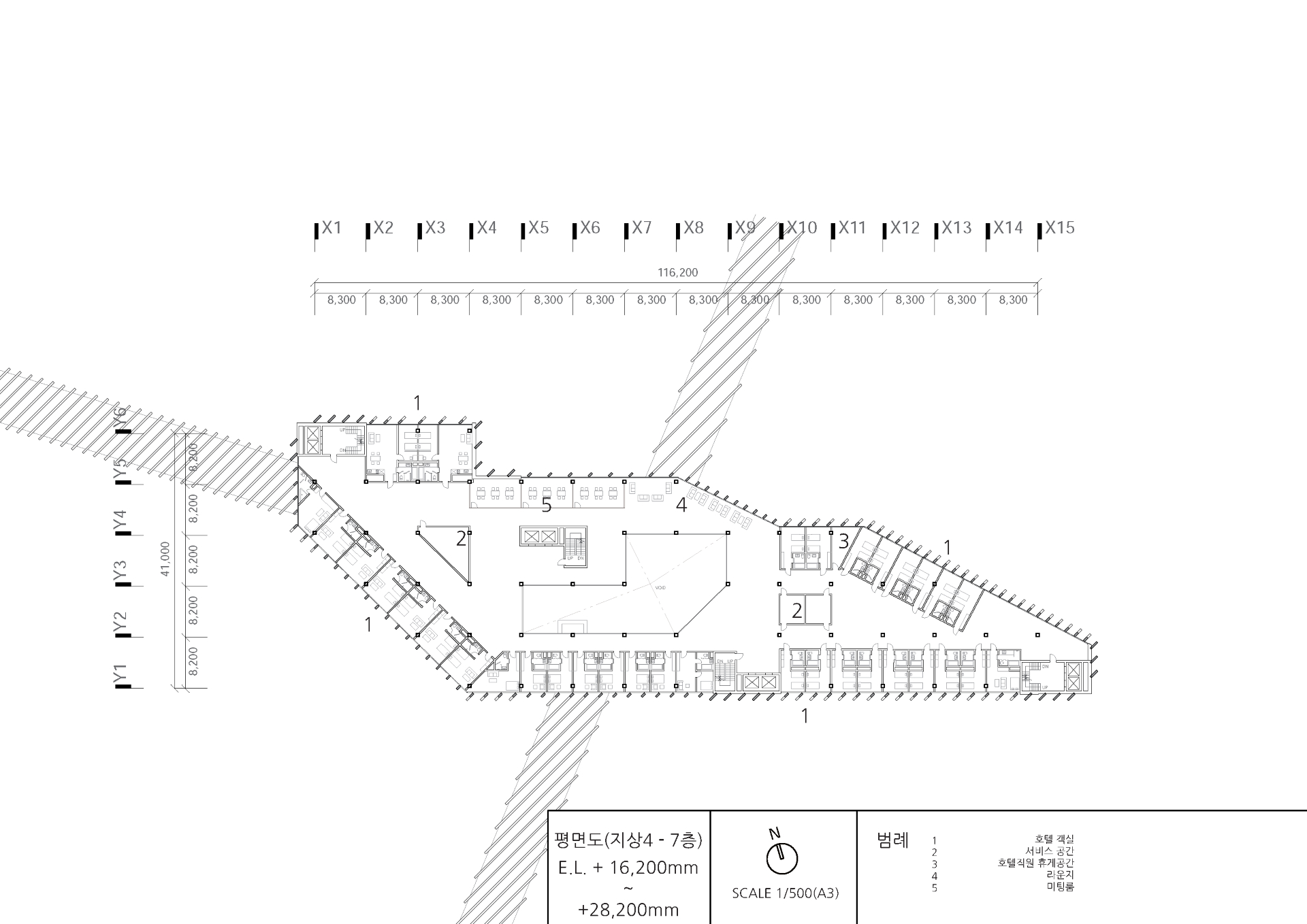
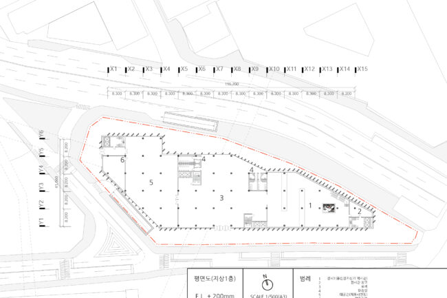
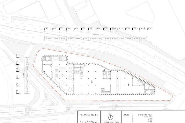
우선 Site 항목에서 언급한 장소를 1차적으로는, 용산 전자상가를 포함한 북측과 용산역 간의 물리적 거리감을 해소할 수 있는 중간공간으로서, 본인의 설계 사이트로 지정한다. 이후 국제업무지구나 인근 전자상가, 용산역 등과의 연계를 위해 새로운 공중보행교로 연결될 구간들을 지정하고 이들 동선들의 만남을 ‘중심공간’으로 설정하여 설계를 진행한다. 이때 중심공간은 가능하면 오픈시켜 여러가지 동선들의 만남의 장소임을 강조하고 주변으로 본격적인 용도가 있는 실(공간)들을 배치하는 방식으로 기본 배치 개념을 잡았다. 이는 1층 전시+교육 시설부터 7층 비즈니스호텔에 이르기까지 동일한 기조로 적용된다. 큰 컨셉은 ‘연결’, 그리고 ‘중심공간’ 이다.
프로그램은 기존 복합문화시설의 공통된 요소인 전시, 체험, 교육 공간을 필두로 UAM과 관련된 교통시설, 그리고 이를 보조하는 숙박시설(비즈니스호텔)과 부대시설들로 구성하였다. 단순히 몇 가지 요소가 추가된 것처럼 보일 수 있으나, ‘미래 기술’에 대해 좀 더 다양하게 보여주고 느끼게 하려는 의도가 담겨있다.
디자인으로 들어가자면, 중심공간과 주변공간의 관계로 기본 공간 개념을 풀어나갔고, 전반적인 매스의 형태는 비정형 대지의 형태를 어느 정도 보존한 형태가 되었다. 또한 주재료로 커튼월을 도입하였고 주변 건물들의 외관과의 차별화를 위해 ‘루버’를 디자인적 언어로 사용하였다. 이 루버는 기본 형태에서 비롯되어 실내 공간의 기능별로(중심공간이나 비즈니스호텔 등) 창처럼 일부 오픈시키는 등 형태 변형을 통해 각 공간의 기능을 은근히 드러냄과 동시에 직사광선 차양의 역할도 어느 정도 수행하도록 하였다. 이 루버 디자인을 주변으로 연결짓는 신규 보행교에도 적용하여 본인 건물로의 진입 단계에서 온몸으로 이러한 요소를 체감하게끔 하고자 했다.














































김동환
울 아들 멋짐~~~!
고지란
범주야 너무 멋지네. 작업하느라 고생했어~~~♡♡♡