Kim Yong Seung Studio

H사 Mo-Ability Museum

박은총 / PARK EUN CHONG

H사 Mo-Ability Museum

자동차 전문 박물관: 자동차산업도시에서 자동차문화산업도시로

박은총 / Kim Yong Seung Studio

Introduction

위치 : 울산광역시 북구 명촌동 현대자동차공장 앞 부지

용도 : 박물관

층수 : B3 – 6F

대지면적 : 44,187㎡

건축면적 : 9,283㎡

연면적 : 35,056㎡

건폐율 : 21%

용적률 : 79.3%

Agenda

한국 자동차 브랜드의 위상은 세계 속에서 날로 높아져 간다. 국내 자동차 내수 시장 점유율 70%를 차지하고 있는 현대자동차그룹의 글로벌 판매량 순위는 23년 기준 전 세계 3위이다.

그러나 1, 2위인 일본, 독일과 달리 국내에는 자동차 역사와 문화를 전시·보관·기록할 수 있는 자동차 전문 박물관이 부재하다. 한국의 핵심 산업 중 하나인 자동차 산업의 세계적 영향이 커진 만큼 이에 맞는 국내 자동차 박물관 건립이 필요하다.

Theme Background

일반적인 박물관과 달리 자동차 박물관의 공간적 특징과 전시체계에 대해 알아보고자 했다.

전 세계의 대표적인 자동차 박물관 14개의 공간구성에 대해 분석한 논문을 조사해 보았다. 결론적으로 시간의 흐름에 따라 자동차 박물관의 공간틀, 공간 오브제와 관람 동선이 복합적이고 자유롭게 변하고 있음을 알 수 있었다.

Site

현대자동차 울산공장의 명촌정문과 인접한 곳에 위치한 사이트는 자동차 박물관 건립을 위한 넓은 부지이다. 대한민국 자동차산업의 핵심 도시인 울산에 위치한 사이트는 자동차 박물관을 건립하기 위한 유리한 조건을 갖추고 있다. 자동차산업의 도시에서 자동차 문화산업의 도시로 변화하기 위해 자동차 박물관의 건립이 필요하며, 울산 지역과 연계한 프로그램을 통해 지역경제 활성화에도 긍정적인 효과를 가져올 수 있다.

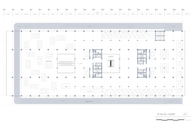
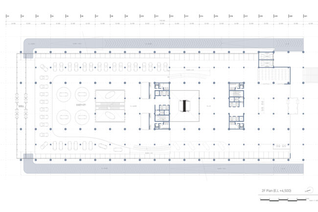
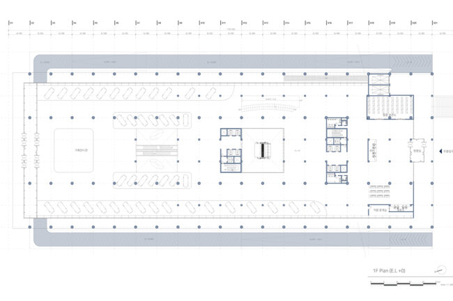
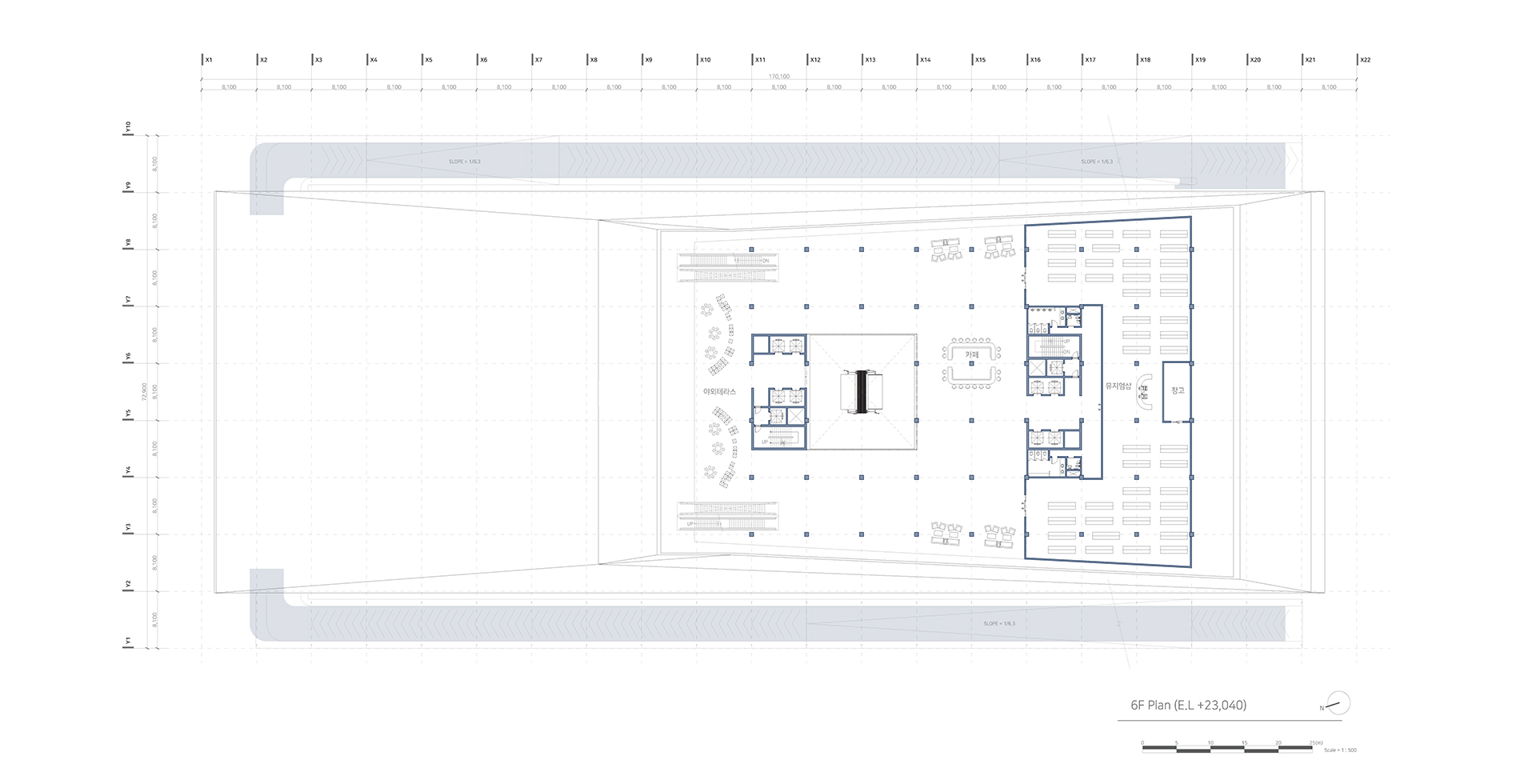
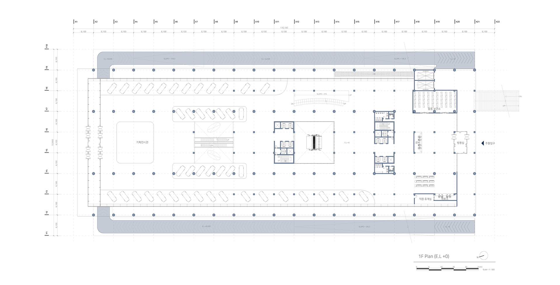
Drawings

기존의 자동차 박물관은 도보를 통한 관람이 전부였지만, 램프를 통해 자동차 안에서도 관람이 가능하게 만들었다.

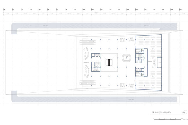
Axonometric

새로운 수직 전시장과 램프 전시공간을 보여준다. 또한 관람자의 동선과 일하는 사람의 동선 구분을 보여주는 다이어그램이다.

Render View

Location

Other Projects

답글 남기기

이메일 주소는 공개되지 않습니다. 필수 필드는 *로 표시됩니다