Library on Canvas
Architecture as a backdrop for existing buildings
김민성 / Kim Yong Seung Studio
Introduction
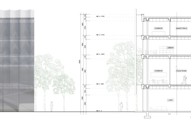
위치 : 부산 해운대구 해운대로 621
층수 : 1F -5F
대지면적 : 16,000㎡
연면적 : 15,565㎡
Agenda
‘Library on Canvas’ 프로젝트는 기존 역사의 의미를 간직한 채, 공간 속에서 과거와 현재, 지역 주민과 방문객의 연결을 중심으로 설계를 진행하였습니다. 기존의 철도 역사 건축물을 해치지 않고 공생관계를 형성한 이 프로제트는 ‘새로운 낡음’이라는 의미를 가지며, 사람들 속의 자연스래 옛 기억과 현재의 경험을 중첩 시킬 것입니다.
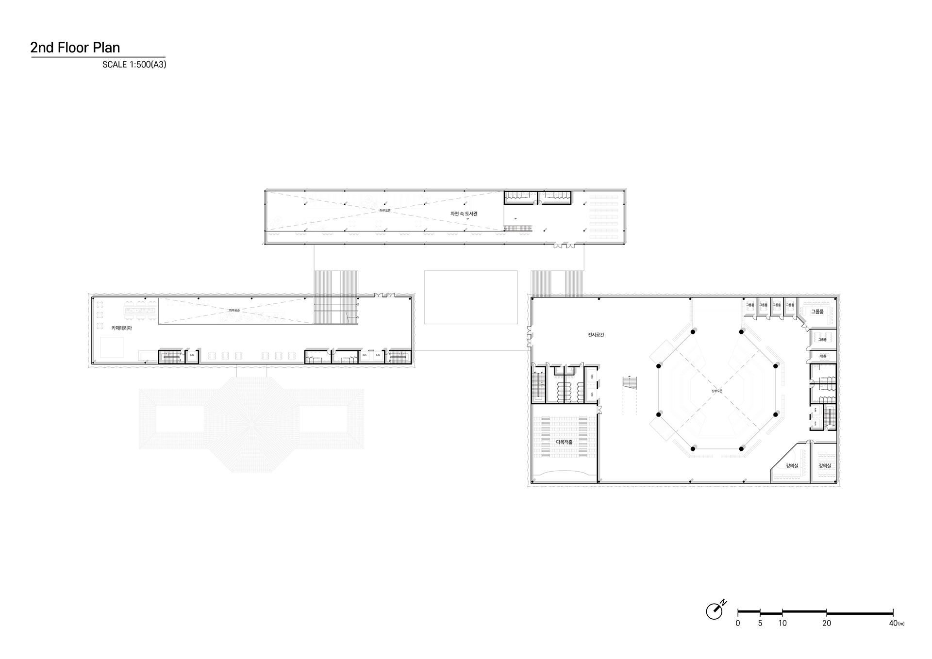
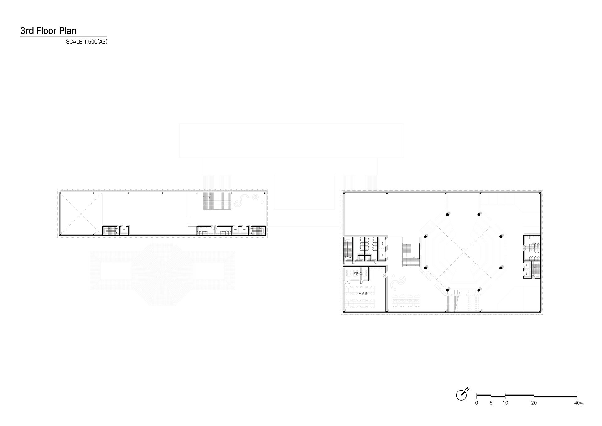
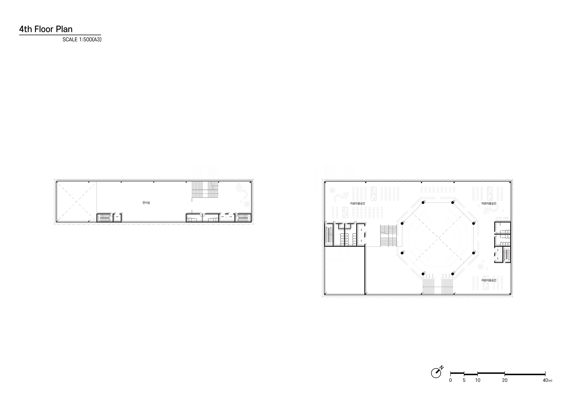
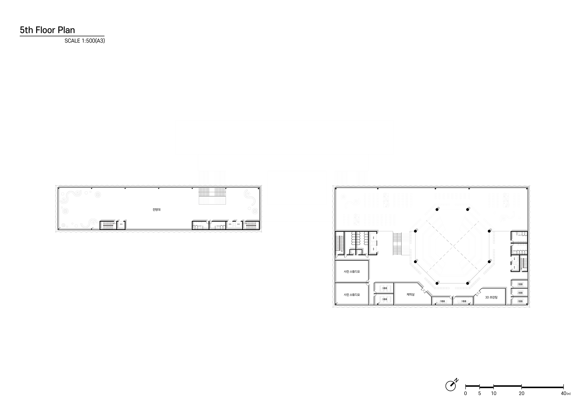
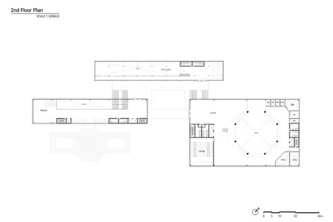
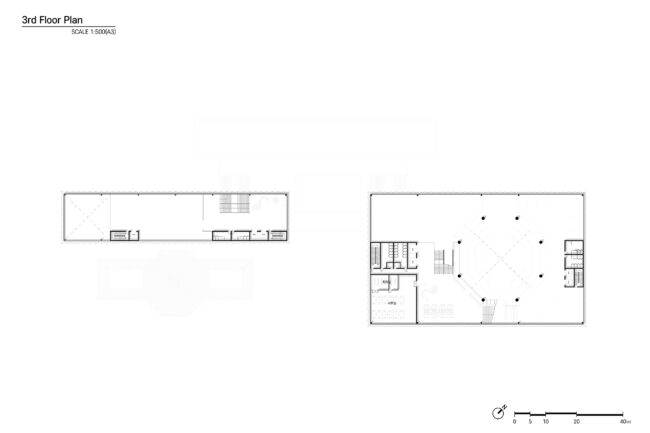
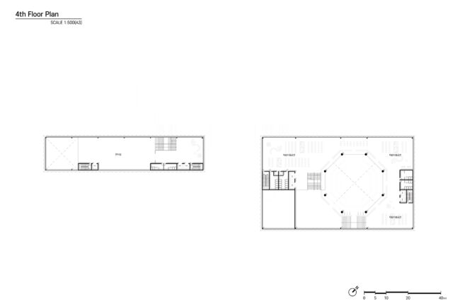
기존의 역사 건물을 강조할 수 있는 단순한 외피와 팔각정의 기하학을 담고 있는 내부를 중심으로 공간을 구성하였으며, 자료 이용의 목적형 도서관이 아닌, 문화과 예술의 결합을 통하여 사람들의 체류에 중점을 둔 체제형 도서관을 구성하려 하였습니다.
이 프로젝트는 역사적 건축물의 본질을 보존하면서 어떻게 현대적 맥락에서 재해석하여 새로운 시대에게 매력적으로 다가갈 수 있을까?라는 의문에서 시작하였습니다. 건축물이 하나의 캔버스가 되어 기존 건축물의 배경이 되어지고 내부적으로는 역사의 개념을 연결시켜 자연스럽게 공간안에서의 경험과 과거의 기억을 연결시키도록 하였습니다.




























